Table Of Content ☰
- Why 1BHK, 2BHK & 3BHK House Plans Are in High Demand
- 30X50 East Facing 2BHK Ground Floor House Plan | 1500 Sqft Plot Floor Plan
- 20X50 East Facing 2BHK Ground Floor House Plan | 1000 Sqft Plot Floor Plan
- 40X60 East Facing 3BHK Ground Floor House Plan | 2400 Sqft Plot Floor Plan
- 25X60 East Facing 2BHK Ground Floor House Plan | 1500 Sqft Plot Floor Plan
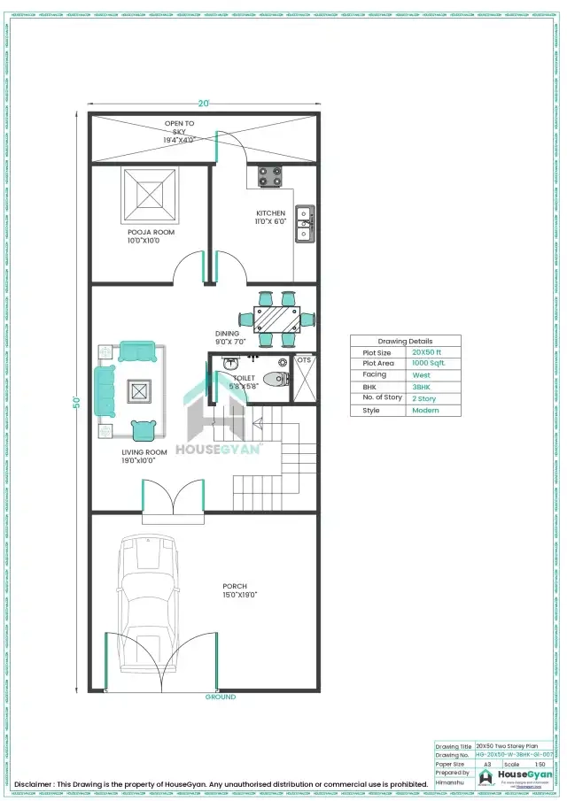
- 20X50 West Facing 3BHK First Floor House Plan | 1000 Sqft Plot Floor Plan
- 22X50 West Facing 3BHK First Floor House Plan | 1100 Sqft Plot Floor Plan
- 35X60 East Facing 3BHK Ground Floor House Plan | 2100 Sqft Plot Floor Plan
- 20X36 North Facing 2BHK Ground Floor House Plan | 720 Sqft Plot Floor Plan
- 11X40 North Facing 1BHK Ground Floor House Plan | 440 Sqft Plot Floor Plan
- 30X50 East Facing 1BHK Ground Floor House Plan | 1500 Sqft Plot Floor Plan
- FAQs – Top 10 Most Popular 1BHK, 2BHK & 3BHK House Plans in India
- Conclusion: Choosing the Right House Plan for Your Needs
With rising land prices and rapid urban development, homeowners in India are increasingly searching for smart, space-efficient homes. The Top 10 Most Popular 1BHK, 2BHK & 3BHK House Plans in India reflect modern lifestyles, Vastu preferences, and optimal use of plot sizes.
Whether you own a compact city plot or a spacious suburban site, these house plans offer functional layouts, good ventilation, and future-ready designs.
Why 1BHK, 2BHK & 3BHK House Plans Are in High Demand
Growing Urbanization and Smart Plot Utilization
Urban living demands compact yet comfortable homes. 1BHK house plans and 2BHK house plans are ideal for nuclear families, while 3BHK house plans suit growing families and long-term living.
Importance of Plot Size and Facing Direction
Plot dimensions and facing (east, west, or north) play a vital role in natural light, ventilation, and Vastu compliance—key factors for Indian homeowners.
1. 30X50 East Facing 2BHK Ground Floor House Plan | 1500 Sqft Plot Floor Plan

Layout Highlights and Ideal Usage
This plan is one of the most preferred choices for mid-sized families. It typically includes:
-
Spacious living room
-
Two well-ventilated bedrooms
-
Kitchen with utility space
-
Dining area and common bathroom
East-facing orientation allows ample morning sunlight and positive energy.
2. 20X50 East Facing 2BHK Ground Floor House Plan | 1000 Sqft Plot Floor Plan

Compact Design with Maximum Space Efficiency
Perfect for urban plots, this house plan focuses on:
-
Compact yet functional rooms
-
Open kitchen layout
-
Minimal corridors for better space usage
Ideal for small families or first-time homeowners.
3. 40X60 East Facing 3BHK Ground Floor House Plan | 2400 Sqft Plot Floor Plan

Luxury Living with Spacious Rooms
This premium house plan offers:
-
Large living and dining areas
-
Three bedrooms with attached bathrooms
-
Pooja room and store space
-
Excellent cross ventilation
A popular choice for luxury independent homes.
4. 25X60 East Facing 2BHK Ground Floor House Plan | 1500 Sqft Plot Floor Plan

Balanced Design for Mid-Sized Families
This layout provides:
-
Well-proportioned rooms
-
Separate dining area
-
Spacious kitchen
It balances affordability with comfort.
5. 20X50 West Facing 3BHK First Floor House Plan | 1000 Sqft Plot Floor Plan

Vertical Living and Modern Planning
Designed for urban areas where ground space is limited:
-
First-floor living area
-
Three compact bedrooms
-
Ideal for rental or multi-family use
West-facing homes work well with proper shading.
6. 22X50 West Facing 3BHK First Floor House Plan | 1100 Sqft Plot Floor Plan

Efficient Floor Distribution
This plan includes:
-
Smart stair placement
-
Open living-dining combo
-
Balanced room sizes
Great for duplex or independent floor homes.
7. 35X60 East Facing 3BHK Ground Floor House Plan | 2100 Sqft Plot Floor Plan

Premium Layout with Open Spaces
This house plan emphasizes:
-
Open living areas
-
Natural lighting
-
Large bedrooms
Suitable for families seeking comfort and elegance.
8. 20X36 North Facing 2BHK Ground Floor House Plan | 720 Sqft Plot Floor Plan

Budget-Friendly Urban Home
A highly popular compact plan featuring:
-
Two bedrooms
-
Open kitchen
-
Minimal construction cost
Ideal for small plots and budget homes.
9. 11X40 North Facing 1BHK Ground Floor House Plan | 440 Sqft Plot Floor Plan

Ideal for Singles and Rental Use
This ultra-compact plan is perfect for:
-
Single professionals
-
Rental properties
-
Guest houses
Low cost and high utility make it very popular.
10. 30X50 East Facing 1BHK Ground Floor House Plan | 1500 Sqft Plot Floor Plan

Spacious Single-Bedroom Living
This unique 1BHK plan offers:
-
Extra-large living spaces
-
Scope for future expansion
-
Ideal for senior citizens or couples
|
HouseGyan Offering | ||
FAQs – Top 10 Most Popular 1BHK, 2BHK & 3BHK House Plans in India
Q1. Which house plan is best for a small family in India?
A 2BHK house plan on a 20X50 or 25X60 plot is ideal for small families.
Q2. Is east-facing house plan better than west-facing?
East-facing homes are traditionally preferred, but west-facing plans also work well with good design.
Q3. Which plot size is best for a 3BHK house?
Plots like 40X60, 35X60, or 22X50 are ideal for 3BHK layouts.
Q4. Are north-facing house plans good as per Vastu?
Yes, north-facing homes are considered auspicious and good for prosperity.
Q5. Can I build a 3BHK on a 20X50 plot?
Yes, with smart planning and vertical design, a 3BHK is possible.
Q6. Which house plan is best for rental income?
Compact 1BHK or 2BHK plans on small plots are best for rentals.
Conclusion: Choosing the Right House Plan for Your Needs
The Top 10 Most Popular 1BHK, 2BHK & 3BHK House Plans in India showcase how smart planning can transform any plot into a comfortable home. By considering plot size, facing direction, family needs, and future expansion, you can choose a house plan that offers long-term value and comfort.














