Table Of Content ☰
- Why Simple House Map Designs Are Popular Today
- Key Factors to Consider Before Choosing a House Map
- X50 East Facing 2BHK Ground Floor House Plan | 1500 Sqft Plot
- X50 East Facing 2BHK Ground Floor House Plan | 1000 Sqft Plot
- X35 North Facing 2BHK Ground Floor House Plan | 700 Sqft Plot
- X60 East Facing 3BHK Ground Floor House Plan | 2400 Sqft Plot
- X50 East Facing 4BHK First Floor House Plan | 1250 Sqft Plot
- X60 East Facing 3BHK Ground Floor House Plan | 2100 Sqft Plot
- X60 East Facing 2BHK Ground Floor House Plan | 1500 Sqft Plot
- X50 West Facing 3BHK First Floor House Plan | 1000 Sqft Plot
- X36 North Facing 2BHK Ground Floor House Plan | 720 Sqft Plot
- X50 East Facing 4BHK First Floor House Plan | 1200 Sqft Plot
- FAQs About Simple House Map Designs
- Final Thoughts on Choosing the Right House Map Design
Designing a home starts with choosing the right layout. A well-planned house map ensures comfort, functionality, and efficient use of space. 10 Simple House Map Designs for Your Home can help homeowners find layouts that balance affordability, modern living, and practical design—whether you own a compact plot or a large site.
This guide explores thoughtfully designed house plans suitable for different plot sizes, directions, and family needs, making it easier to choose a layout that fits your lifestyle.
Why Simple House Map Designs Are Popular Today
Simple house map designs focus on clarity, usability, and cost-effectiveness. Instead of complex layouts, these designs emphasize:
Better ventilation and natural lighting
Lower construction and maintenance costs
Easier future modifications
Functional room placement
Modern homeowners prefer simplicity because it blends aesthetics with practicality, especially in urban and semi-urban areas.
Key Factors to Consider Before Choosing a House Map
Plot Size and Orientation
Plot dimensions and facing direction (East, West, North, or South) significantly influence room placement, lighting, and airflow.
Budget and Space Utilization
A smart layout maximizes usable space without increasing construction costs.
Vastu and Natural Ventilation
Many homeowners prefer Vastu-compliant layouts with proper sunlight and airflow for a healthy living environment.
30X50 East Facing 2BHK Ground Floor House Plan | 1500 Sqft Plot

This plan is ideal for small families seeking comfort and openness.
Highlights:
Spacious living and dining area
Two well-ventilated bedrooms
Functional kitchen with utility space
East-facing entrance for positive daylight
It offers a perfect balance between space and affordability.
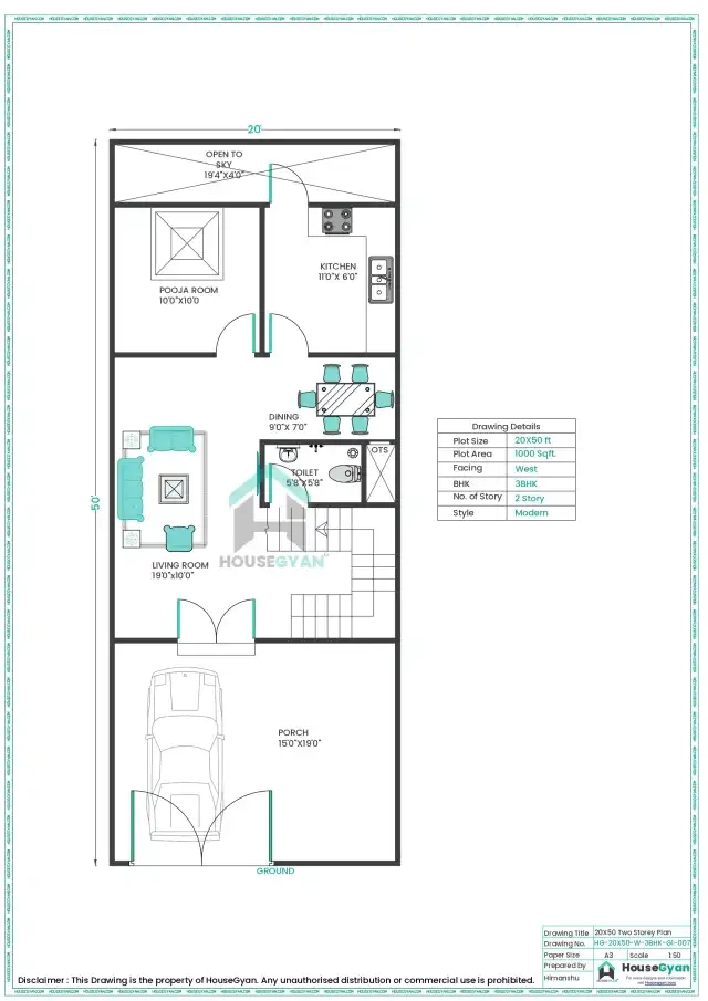
20X50 East Facing 2BHK Ground Floor House Plan | 1000 Sqft Plot

A compact yet efficient layout, suitable for urban plots.
Key features include:
Smartly designed living room
Two cozy bedrooms
Efficient kitchen placement
Minimal corridor space for better utilization
This design proves that smaller plots can still feel spacious.
20X35 North Facing 2BHK Ground Floor House Plan | 700 Sqft Plot

Designed for narrow plots, this layout focuses on practicality.
Benefits:
Compact living area
Two functional bedrooms
Proper ventilation despite limited space
Cost-effective construction
Ideal for first-time homeowners or rental properties.
40X60 East Facing 3BHK Ground Floor House Plan | 2400 Sqft Plot

Perfect for larger families who want comfort and luxury.
Design advantages:
Large living and family rooms
Three spacious bedrooms
Dedicated dining and kitchen areas
Excellent natural lighting
This plan suits premium residential needs.
25X50 East Facing 4BHK First Floor House Plan | 1250 Sqft Plot

An excellent choice for multi-generation families.
Notable features:
Four bedrooms for privacy
Well-defined common areas
Ideal for duplex or rental income planning
It balances space with long-term flexibility.
35X60 East Facing 3BHK Ground Floor House Plan | 2100 Sqft Plot

This plan offers modern comfort with generous room sizes.
Highlights include:
Spacious master bedroom
Open living and dining layout
Efficient circulation space
Suitable for families who prefer single-floor living.
25X60 East Facing 2BHK Ground Floor House Plan | 1500 Sqft Plot

A linear plot layout designed for functionality.
Key strengths:
Balanced room sizes
Ample ventilation
Easy accessibility
Ideal for practical and elegant living.
20X50 West Facing 3BHK First Floor House Plan | 1000 Sqft Plot

This plan works well for vertical expansion.
Features:
Three bedrooms with privacy
Compact yet comfortable design
Suitable for duplex construction
West-facing plots are optimized with smart shading and layout.
20X36 North Facing 2BHK Ground Floor House Plan | 720 Sqft Plot

A perfect solution for compact city living.
Advantages:
Efficient room placement
Low construction cost
Easy maintenance
Great for nuclear families.
24X50 East Facing 4BHK First Floor House Plan | 1200 Sqft Plot

This layout is designed for space optimization.
Key highlights:
Four bedrooms with smart circulation
Well-lit interiors
Ideal for joint families
It offers maximum utility on a mid-sized plot.
HouseGyan Offering | ||
FAQs About Simple House Map Designs
1. What is the best house map for small plots?
2BHK layouts with compact circulation work best for small plots.
2. Are east-facing house plans better?
East-facing homes are popular due to good morning sunlight.
3. Can simple house maps be modern?
Yes, simplicity and modern design go hand in hand.
4. Which plot size is ideal for a 3BHK house?
Plots above 1000–1200 sqft are generally suitable.
5. Are first-floor house plans good for rental income?
Yes, they are ideal for duplex and rental purposes.
6. How do I choose the right house map?
Consider plot size, budget, family size, and future needs.
Final Thoughts on Choosing the Right House Map Design
Selecting from these 10 Simple House Map Designs for Your Home ensures a thoughtful balance of comfort, functionality, and cost. Whether you have a compact plot or a spacious site, the right layout can transform your house into a practical and beautiful home.














