Table Of Content ☰
- 1. What Is a 30×50 House Plan?
- 2. Key Benefits of a 30×50 House Plan
- 3. Ideal Layout Planning for 30×50 House Designs
- 4. Room-Wise Planning for Better Comfort
- 5. 30x50 2BHK House Plan – Compact and Efficient
- 6. 30x50 3BHK House Plan – Most Popular Choice
- 7. 30×50 4 Bedroom House Plans – Spacious Family Living
-
8. Popular 30×50 House Plan Examples with Floor Drawings
- 8.1 30×50 North Facing 1BHK Ground Floor House Plan (1500 Sq Ft)
- 8.2 30×50 East Facing 2BHK Ground Floor House Plan (1500 Sq Ft)
- 8.3 30×50 South Facing 4BHK Ground Floor House Plan (1500 Sq Ft)
- 8.4 30×50 South-West Facing 3BHK Ground Floor House Plan (1500 Sq Ft)
- 8.5 30×50 East Facing 3BHK Ground Floor House Plan (1500 Sq Ft)
- 9. Vastu Tips for 30×50 House Plan
- 10. Common Mistakes to Avoid in 30×50 House Planning
- 11. Conclusion
- 12. Why HouseGyan ?
- 13. Frequently Asked Questions (FAQs)
A 30×50 house plan is one of the most preferred residential plot sizes for homeowners who want more space, flexibility, and future-ready design. With a total plot area of 1500 square feet, 30x50 house plans allow better room sizes, wider passages, improved ventilation, and multiple layout possibilities. Whether you are planning a compact 2BHK or a spacious multi-bedroom home, this plot size offers excellent design freedom.
What Is a 30×50 House Plan?
A 30x50 house plan refers to a residential layout designed on a plot measuring 30 feet wide and 50 feet long. This plot size is suitable for:
-
Independent houses
-
Duplex homes
-
Ground + first floor constructions
-
Rental or mixed-use homes
Because of its wider frontage, 30x50 house floor plans feel more open and luxurious compared to narrower plots.
Key Benefits of a 30×50 House Plan
Choosing a 30x50 house plan offers several advantages:
-
More spacious rooms and wider corridors
-
Better natural light and cross ventilation
-
Flexible design for 2BHK, 3BHK, or 4BHK layouts
-
Easier Vastu compliance
-
Parking space for car and two-wheelers
-
Scope for future expansion
This makes 30 * 50 house plan designs ideal for long-term living.
Ideal Layout Planning for 30×50 House Designs
Ground Floor Layout Options
Most ground floor layouts include:
-
Living room near the entrance
-
Dining area connected to the kitchen
-
One bedroom for elders or guests
-
Common bathroom
-
Staircase placed along a side wall
-
Parking area in front
First Floor Layout Options
The first floor may include:
-
Additional bedrooms
-
Family lounge
-
Balcony or sit-out area
-
Study or work-from-home space
This vertical planning enhances the usability of 30x50 house plan design.
Room-Wise Planning for Better Comfort
Living and Dining Area
The wider frontage allows a spacious living room. Combining living and dining areas improves openness and movement.
Kitchen and Utility Space
Kitchens are best placed in the southeast corner. A utility area behind the kitchen adds functionality without clutter.
Bedrooms and Bathrooms
Bedrooms can be planned larger, with attached bathrooms and wardrobes, especially in 30x50 3 bhk and 4BHK layouts.
30×50 2BHK House Plan – Compact and Efficient
A 30 * 50 2bhk house plan is ideal for small families or retirees. It typically includes:
-
Two comfortable bedrooms
-
Spacious living and dining area
-
One or two bathrooms
-
Functional kitchen with storage
This layout balances comfort and cost-effectiveness.
30×50 3BHK House Plan – Most Popular Choice
The 30 * 50 3bhk house plan is perfect for nuclear families. It offers:
-
Three well-sized bedrooms
-
Multiple bathrooms
-
Dedicated dining area
-
Balcony or pooja room
A 30x50 3 bhk layout provides enough space without overbuilding.
30×50 4 Bedroom House Plans – Spacious Family Living
30x50 4 bedroom house plans are ideal for joint families or those needing extra rooms. These layouts often include:
-
One bedroom on the ground floor
-
Three bedrooms on upper floors
-
Family lounge and balconies
-
Storage and utility spaces
This design ensures privacy and comfort for all family members.
Popular 30×50 House Plan Examples with Floor Drawings
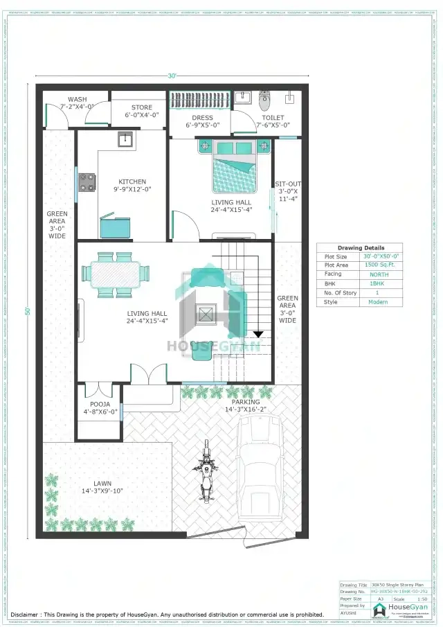
1. 30×50 North Facing 1BHK Ground Floor House Plan (1500 Sq Ft)

This simple and well-organized ground floor layout includes:
-
1 spacious bedroom with proper ventilation.
-
Comfortable living area placed near the entrance.
-
Functional kitchen designed for daily cooking needs.
-
Well-positioned bathroom for easy access.
-
Good natural light and airflow throughout the house.
Why it’s great: A practical north-facing 1BHK design that offers efficient space utilization, balanced lighting, and easy maintenance—ideal for single occupants, elderly homeowners, or rental purposes on a 1500 sq ft plot.
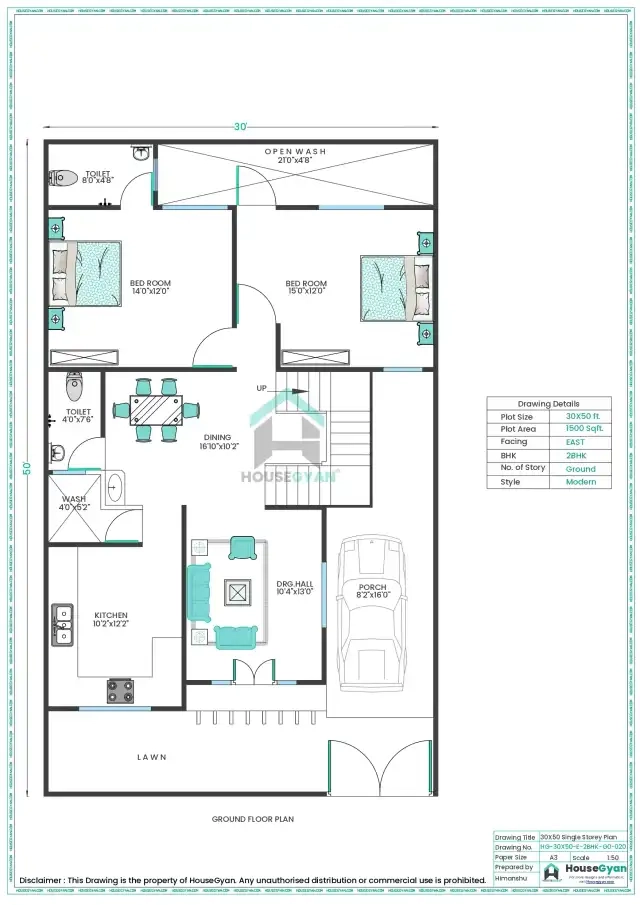
2. 30×50 East Facing 2BHK Ground Floor House Plan (1500 Sq Ft)

This well-planned and spacious ground floor layout includes:
-
2 comfortable bedrooms with good ventilation.
-
Spacious living area that welcomes morning sunlight.
-
Functional kitchen with easy access to the dining space.
-
Well-placed bathroom for family convenience.
-
Open areas that improve natural light and airflow.
Why it’s great: An east-facing 2BHK design that ensures bright interiors, positive energy, and efficient space planning—ideal for small to medium-sized families on a 1500 sq ft plot.
3. 30×50 South Facing 4BHK Ground Floor House Plan (1500 Sq Ft)

This spacious and thoughtfully designed ground floor layout includes:
-
4 well-sized bedrooms suitable for large or joint families.
-
Comfortable living and dining areas with smooth movement space.
-
Functional kitchen planned for daily convenience.
-
Multiple bathrooms for family and guest use.
-
Proper ventilation and natural light throughout the house.
Why it’s great: A well-balanced south-facing 4BHK design that offers ample space, practical planning, and comfortable ground floor living—ideal for families seeking a complete home on a 1500 sq ft plot.
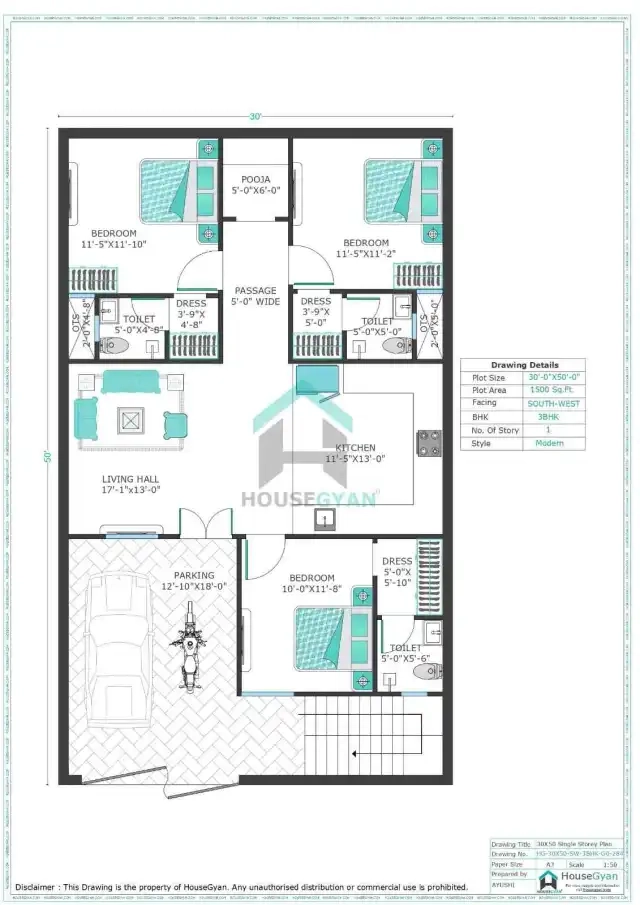
4. 30×50 South-West Facing 3BHK Ground Floor House Plan (1500 Sq Ft)

This well-balanced and efficiently planned ground floor layout includes:
-
3 spacious bedrooms designed for family comfort.
-
Welcoming living and dining areas with smooth circulation.
-
Practical kitchen layout for everyday use.
-
Multiple bathrooms for convenience and privacy.
-
Good ventilation and natural light across all rooms.
Why it’s great: A thoughtfully designed south-west facing 3BHK plan that offers strong zoning, comfortable room sizes, and efficient space utilization—ideal for families seeking a complete ground floor home on a 1500 sq ft plot.
5. 30×50 East Facing 3BHK Ground Floor House Plan (1500 Sq Ft)

This spacious and thoughtfully planned ground floor layout includes:
-
3 well-sized bedrooms with proper ventilation.
-
Bright living and dining areas that receive ample morning sunlight.
-
Functional kitchen positioned for smooth daily workflow.
-
Multiple bathrooms for family and guest convenience.
-
Open spaces that enhance natural light and airflow.
Why it’s great: An east-facing 3BHK design that promotes bright interiors, positive energy, and comfortable ground floor living—ideal for families seeking a Vastu-friendly home on a 1500 sq ft plot.
Vastu Tips for 30×50 House Plan
Entrance and Living Room Vastu
-
Main entrance in north or east direction
-
Living room in northeast or north
Kitchen and Bedroom Vastu
-
Kitchen in southeast
-
Master bedroom in southwest
-
Children’s bedroom in west or north
Staircase and Toilet Vastu
-
Staircase in south, west, or southwest
-
Toilets in northwest or southeast
Following Vastu principles improves energy flow in your 30x50 house plan.
Common Mistakes to Avoid in 30×50 House Planning
-
Ignoring ventilation and sunlight
-
Overcrowding rooms
-
Poor staircase placement
-
Lack of storage space
-
No planning for future expansion
Avoiding these mistakes ensures your 30x50 house floor plans remain practical and comfortable.
Conclusion
A well-designed 30×50 house plan offers the perfect combination of space, comfort, and future flexibility. Whether you choose a 30 * 50 2bhk house plan, a 30 * 50 3bhk house plan, or spacious 30x50 4 bedroom house plans, thoughtful layout planning and Vastu compliance can help you build a home that truly supports modern living. With the right design approach, 30x50 house plans can meet both present needs and future aspirations.
Why HouseGyan ?
HouseGyan is a reliable platform for homeowners looking for practical, well-designed, and Vastu-friendly house plans. It offers a wide range of ready-made floor plans for different plot sizes, including popular dimensions like 30×50. With detailed drawings, expert planning, and easy customization options, HouseGyan helps users make informed decisions and turn their home ideas into reality with confidence.
|
HouseGyan Offering | ||
Frequently Asked Questions (FAQs)
1. Is a 30×50 plot good for a 3BHK house?
Yes, it is one of the best sizes for a spacious 3BHK.
2. Can I build a 4-bedroom house on a 30×50 plot?
Yes, with proper vertical planning.
3. Is parking possible in a 30×50 house plan?
Yes, car parking is easily accommodated.
4. Which facing is best for a 30×50 house?
North and east-facing plots are considered ideal.
5. Can a 30×50 house be Vastu compliant?
Absolutely, the size allows easy Vastu alignment.
6. Is a 2BHK suitable on a 30×50 plot?
Yes, a 2 bhk house plans 30x50 layout offers extra space and comfort.














