30X50 South West Facing 3BHK Ground Floor House Plan | 1500 Sqft Plot Floor Plan
Description
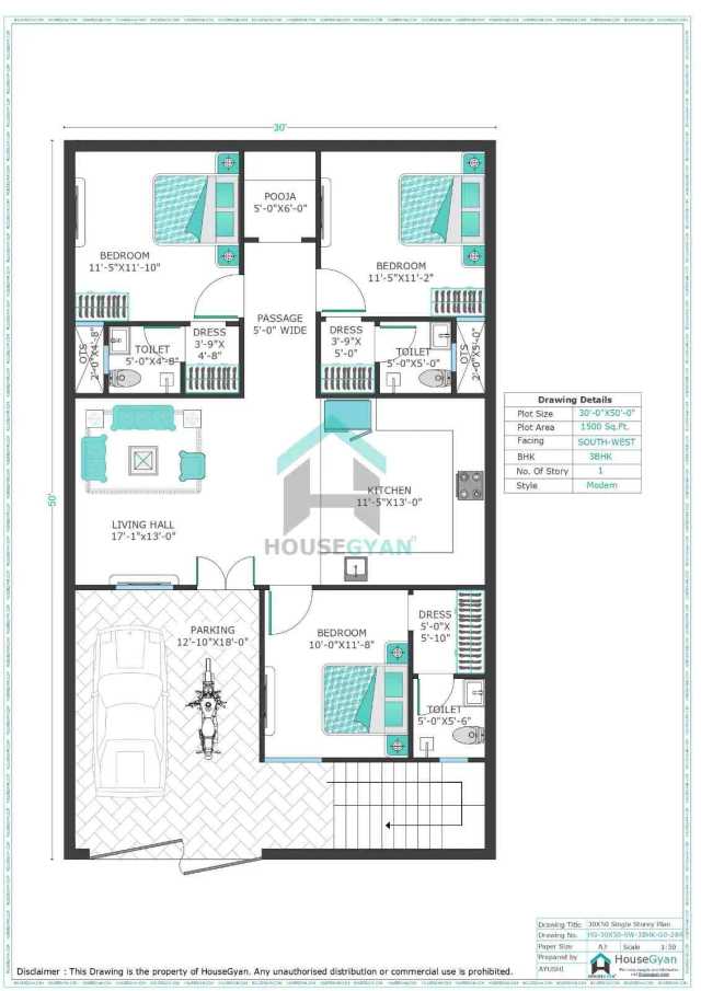
This 30x50 south west facing 3BHK ground floor house plan is carefully designed to make the most of a 1500 sqft plot. It includes 3 spacious bedrooms, 1 hall, and 3 bathrooms, providing an efficient and comfortable layout.
At HouseGyan Architects, we specialize in Custom House Drawings for 30x50 plot sizes—whether you prefer a traditional multi-storey home or a sleek, modern single-floor design. If you’re planning your dream home, this 1500 sqft south west facing plan is an excellent choice. To estimate construction costs in advance, try our House Construction Price Calculator for accurate budget planning.
Ratings & Reviews
House Gyan all services
Loading...30X50 House Plan | 1500 Sqft Plot House Plan | 3BHK South West Facing Ground Floor Plan
This 30X50 southwest-facing 3BHK ground floor house plan is thoughtfully designed on a 1500 sq ft plot, offering a perfect balance of comfort, functionality, and a Vastu-friendly layout. The house plan is ideal for families looking for a spacious single-floor home with well-defined living areas and parking convenience.
30X50 House Plan – South West Facing Layout
The layout includes 3 well-sized bedrooms, each planned for privacy and comfort. A spacious living room welcomes guests, while the kitchen is placed for easy access and efficient workflow. The house also features 3 attached/common toilets, ensuring convenience for family members and visitors. Dedicated parking space and a peaceful pooja room enhance daily living and spiritual comfort.
Key Features:
3 Bedrooms
Living Room
Kitchen
3 Toilets
Pooja Room
Parking Area
South West Facing Design
Why Choose a 30X50 House Plan?
A 30X50 house plan is one of the most popular plot sizes because it allows smart space utilization without feeling congested. It offers enough area for multiple bedrooms, proper ventilation, and future flexibility, making it perfect for urban and semi-urban homes.
More 30X50 House Plan Options
At HouseGyan, you can explore multiple 30X50 house plans, including 1BHK, 2BHK, 3BHK, and duplex layouts in different facing options like East, North, West, and South, customized to suit your lifestyle and budget.
Find More House Plans at HouseGyan
Discover a wide range of the latest house plans, floor plans, and home designs at HouseGyan. From compact homes to luxury layouts, we provide expert-designed plans that match modern living needs.
Get Your Custom 30X50 House Plan Today!
Need changes in room size, Vastu alignment, or additional spaces? Get a 30X50 30X50 custom house plan designed by professional architects exclusively for your requirements.
Final Thoughts
This 30X50 South West Facing 3BHK Ground Floor House Plan is an excellent choice for families seeking comfort, functionality, and smart planning within a 1500 sq ft plot. With balanced spaces and essential amenities, it ensures a practical and peaceful living experience.

The information contained on Housegyan.com is provided for general informational purposes only. While we strive to ensure that the content on our website is accurate and current, we make no warranties or representations of any kind, express or implied, about the completeness, accuracy, reliability, suitability, or availability with respect to the website or the information, products, services, or related graphics contained on the website for any purpose. Housegyan.com will not be liable for any loss or damage including, without limitation, indirect or consequential loss or damage, or any loss or damage whatsoever arising from loss of data or profits arising out of, or in connection with, the use of this website.
Third party logos and marks are registered trademarks of their respective owners. All rights reserved.













