30X50 North Facing 1BHK Ground Floor House Plan | 1500 Sqft Plot Floor Plan
Description
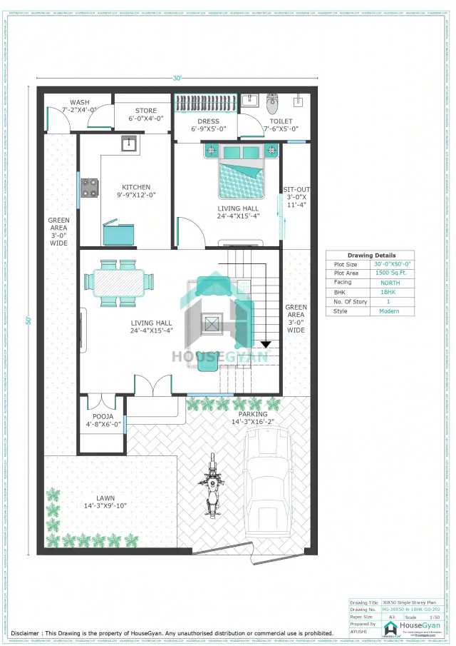
This 30x50 north-facing 1BHK ground floor house plan is carefully designed to make the most of a 1500 sqft plot. It includes 1 spacious bedrooms, 1 hall, and 1 bathrooms, providing an efficient and comfortable layout.
At HouseGyan Architects, we specialize in Custom House Drawings for 30x50 plot sizes—whether you prefer a traditional multi-storey home or a sleek, modern single-floor design. If you’re planning your dream home, this 1500 sqft north-facing plan is an excellent choice. To estimate construction costs in advance, try our House Construction Price Calculator for accurate budget planning.
Ratings & Reviews
House Gyan all services
Loading...30X50 House Plan | 1500 Sqft Plot House Plan | 1BHK North Facing Ground Floor Plan
This 30X50 North facing 1BHK ground floor house plan is designed on a 1500 sq ft plot, making it an excellent option for individuals, couples, or small families who want a spacious, green, and vastu-friendly home. The house plan layout focuses on open spaces, natural light, and comfortable daily living.
30X50 House Plan – North Facing Ground Floor Layout
The North-facing layout is considered highly auspicious and ensures good daylight and ventilation. This thoughtfully planned ground floor includes:
Dedicated Parking Area for car/bike safety
Beautiful Lawn & Green Area for freshness and outdoor relaxation
Sit-Out Space for evening leisure and guest interaction
Spacious Living Hall for daily activities
Dining Area connected seamlessly with the kitchen
1 Comfortable Bedroom with privacy
Well-Planned Toilet for daily convenience
Functional Kitchen with easy workflow
Store Room for organized storage
Wash Area for utility purposes
The design ensures a perfect balance between indoor comfort and outdoor greenery.
Why Choose a 30X50 House Plan?
A 30X50 plot size is one of the most preferred residential plot dimensions in India. Key advantages include:
Ample space for parking, lawn, and sit-out
Ideal for luxury 1BHK or compact 2BHK layouts
Easy inclusion of green areas and open spaces
Excellent ventilation and natural light
Suitable for vastu-compliant North-facing homes
This plot size allows flexibility for future expansion as well.
More 30X50 House Plan Options
At HouseGyan, you can explore multiple 30X50 house plan designs, such as:
1BHK, 2BHK, and 3BHK layouts
Ground floor and duplex house plans
North, East, West, and South facing designs
Modern, traditional, and budget-friendly options
Each plan is designed keeping Indian lifestyle needs in mind.
Find More House Plans at HouseGyan
HouseGyan provides a wide collection of:
Ready-to-build house plans
Custom house plan services
Vastu-based floor plans
Expert architectural guidance
All plans are optimized for space efficiency and comfort.
Get Your Custom 30X50 House Plan Today!
Want to modify room sizes, add a pooja room, or redesign the lawn and sit-out area?
HouseGyan offers custom house plan solutions tailored to your plot size, facing direction, and personal requirements.
Final Thoughts
This 30X50 North Facing 1BHK Ground Floor House Plan on a 1500 sq ft plot is perfect for those who prefer open spaces, greenery, and peaceful living. With features like parking, lawn, sit-out, and a spacious interior, it offers a premium yet practical living experience.
Explore more 30X50 house plans with HouseGyan and turn your dream home into reality!

The information contained on Housegyan.com is provided for general informational purposes only. While we strive to ensure that the content on our website is accurate and current, we make no warranties or representations of any kind, express or implied, about the completeness, accuracy, reliability, suitability, or availability with respect to the website or the information, products, services, or related graphics contained on the website for any purpose. Housegyan.com will not be liable for any loss or damage including, without limitation, indirect or consequential loss or damage, or any loss or damage whatsoever arising from loss of data or profits arising out of, or in connection with, the use of this website.
Third party logos and marks are registered trademarks of their respective owners. All rights reserved.













