Table Of Content ☰
- 1. What Makes a Single Floor Plan Ideal for Delhi NCR Homes?
- 2. Key Things to Check Before Choosing a Single Floor Plan
-
3. Top Single Floor House Plans for Delhi NCR 2026
- 3.1. 20x30 East Facing 2BHK Ground Floor House Plan
- 3.2. 20x30 East Facing 1BHK Ground Floor House Plan
- 3.3. 20x30 North Facing 1BHK Ground Floor House Plan
- 3.4. 15x40 East Facing 1BHK Ground Floor House Plan
- 3.5. 15x40 North Facing 1BHK Ground Floor House Plan
- 3.6. 20x50 East Facing 2BHK Ground Floor House Plan
- 3.7. 20x50 North Facing 3BHK Ground Floor House Plan
- 3.8. 20x40 North Facing 3BHK Ground Floor House Plan
- 3.9. 30x40 North Facing 2BHK Ground Floor House Plan
- 4. How Much Will It Cost to Build a Single Floor Home in 2026?
- 5. Why HouseGyan?
- 6. Conclusion
- 7. FAQs
Buying or building a home in Delhi NCR needs careful planning. Land cost is high, family needs are changing, and people now prefer simple and practical homes. Because of this, single floor homes are becoming very popular in 2026. They are easy to live in, cost-effective, and suitable for all age groups.
This blog explains the Best Single Floor Plans in Delhi NCR for 2026. It follows the same format and style used in other HouseGyan plan guides. You will learn why single floor homes are useful, what plan sizes work best, and how to choose the right layout for your plot.
If you are planning to build your home, explore ready-to-use House Plans that match Delhi NCR plot sizes and local needs.
What Makes a Single Floor Plan Ideal for Delhi NCR Homes?
Single floor homes are designed on one level, without stairs. This makes daily life simple and safe. In Delhi NCR, many families prefer this type of home because plots are limited and joint families still exist.
A well-planned single floor layout helps you use every square foot wisely. It gives better ventilation, easy movement, and lower construction cost compared to multi-floor houses.
Key reasons people prefer single floor plans in 2026:
Easy access for kids and elders
Lower construction and maintenance cost
Faster construction time
Better use of small to medium plots
Simple vastu-friendly layouts
Key Things to Check Before Choosing a Single Floor Plan
Before selecting any plan, it is important to understand your needs. This helps avoid changes later and saves money.
Plot Size and Shape
Know the exact plot size, facing, and local bylaws. This helps in selecting the right layout.
Family Size
Choose between 1BHK, 2BHK, or 3BHK based on current and future needs.
Vastu Direction
East and north-facing plans are popular in Delhi NCR. Many buyers prefer vastu-based layouts.
Budget
Single floor homes are cost-friendly, but layout choices still affect cost.
Top Single Floor House Plans for Delhi NCR 2026
Below are some of the Best Single Floor Plans suitable for Delhi NCR. Each plan is practical, vastu-friendly, and designed for real plot sizes commonly found in the region.
1.20x30 East Facing 2BHK Ground Floor House Plan

This plan is ideal for small families living on a 600 sq ft plot. It includes two bedrooms, a living area, kitchen, and bathrooms.
Why it works well:
Compact yet comfortable layout
Good natural light from east direction
Suitable for urban Delhi plots
2. 20x30 East Facing 1BHK Ground Floor House Plan

This is a smart option for couples or rental homes. The layout focuses on open living and easy movement.
Best for:
Small families
First-time home builders
Low construction budget
3. 20x30 North Facing 1BHK Ground Floor House Plan

North-facing homes are popular in Delhi NCR. This plan offers a balanced layout with proper ventilation.
Highlights:
Vastu-friendly direction
Simple and functional design
Easy to maintain
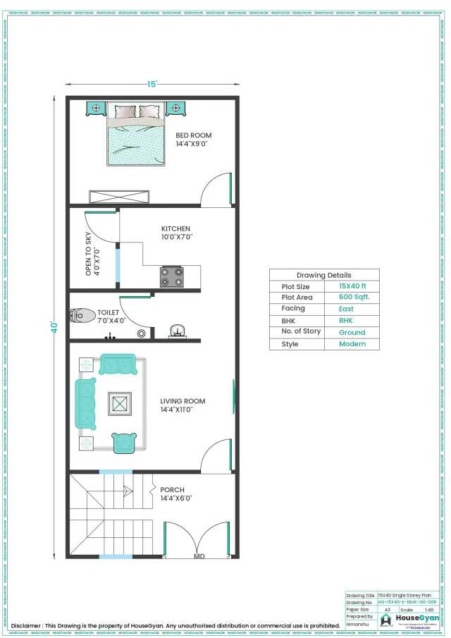
4. 15x40 East Facing 1BHK Ground Floor House Plan

This plan is suitable for narrow plots. It uses length wisely to create comfortable spaces.
Why choose this plan:
Ideal for narrow plots
Good room separation
Budget-friendly layout
5. 15x40 North Facing 1BHK Ground Floor House Plan

Designed for compact living, this plan focuses on airflow and privacy.
Key benefits:
Efficient use of long plot
North-facing advantage
Easy construction
HouseGyan Offering | ||
6. 20x50 East Facing 2BHK Ground Floor House Plan

This is one of the Best Single Floor Plans in Delhi for medium-sized families.
Plan features:
Spacious rooms
Separate dining area
Good front setback
7. 20x50 North Facing 3BHK Ground Floor House Plan

A perfect choice for joint families. This plan offers three bedrooms with proper privacy.
Why it stands out:
Large living space
Ideal for families of 5 to 6 members
Strong vastu alignment
8. 20x40 North Facing 3BHK Ground Floor House Plan

This plan fits urban plots where space is limited but comfort is needed.
Advantages:
Smart room placement
Good natural ventilation
Suitable for city areas
9. 30x40 North Facing 2BHK Ground Floor House Plan

This is one of the most popular Single Floor Plans in Delhi NCR.
Best features:
Large living and bedroom sizes
Ideal for premium plots
Easy future modification
Know More: 30x40 House Plan : Benefits, Vastu and Expert Tips for Homeowners
How Much Will It Cost to Build a Single Floor Home in 2026?
Construction cost depends on plot size, material quality, and location. Before finalizing any plan, it is important to estimate your budget.
You can use the construction cost calculator to get an idea of the total construction cost based on current 2026 rates. This helps in better planning and avoids budget issues later.
Why HouseGyan?
HouseGyan helps homeowners make informed decisions when planning or building a house. From choosing the right layout to understanding costs, HouseGyan simplifies the process.
How HouseGyan helps you:
Ready-made house plans for Indian plots
Easy-to-understand guides and tips
Tools to estimate construction cost
Practical advice based on real needs
If you are planning a home in Delhi NCR, HouseGyan guides you at every step, from plan selection to budgeting.
Conclusion
Single floor homes are a smart choice for Delhi NCR in 2026. They are simple, affordable, and comfortable for modern families. With the right layout, even small plots can offer spacious living.
The Best Single Floor Plans in Delhi NCR focus on smart space use, easy living, and future-ready design. By choosing a suitable plan and estimating your budget early, you can build a home that meets your needs without stress.
FAQs
1. Which is the best single floor plan size for Delhi NCR?
Ans. For most families, 20x40, 20x50, and 30x40 plots work well. The best size depends on family needs and budget.
2. Are single floor homes cheaper to build?
Ans. Yes, single floor homes usually cost less than multi-floor houses because they need less structure and material.
3. Is a single floor house good for future needs?
Ans. Yes, they are easy to modify and suitable for all age groups.
4. Which facing is best for single floor homes in Delhi?
Ans. East and north-facing homes are commonly preferred due to vastu and better daylight.
5. Can I build a 3BHK single floor house on a small plot?
Ans. Yes, with smart planning, even 20x40 or 20x50 plots can have a 3BHK layout.














