20X30 North Facing 1BHK Ground Floor House Plan | 600 Sqft Plot Floor Plan
Description
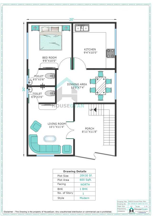
This 20X30 north-facing 1BHK ground floor house plan is designed to maximize space efficiently within a 600 sqft plot. This house plan consists of 1 bedrooms,1 Hall and 1 bathrooms within 600 square feet. If you're looking for a 20X30 house plan, you've come to the right place. Here at HouseGyan architects, we specialize in designing and creating floor plans for all types of 20X30 plot size houses. Whether you're looking for a traditional single-story home or a more modern ranch-style home, we can help you create the perfect 20*30 floor plan for your needs.
Whether you're looking to build your dream home with a Custom House Drawing or want a compact, modern layout, this 600 sqft floor plan is an excellent choice for a north-facing plot. To get an rough idea of the expenses, use our House Construction Price Calculator to estimate your costs effectively.
Ratings & Reviews
House Gyan all services
Loading...20X30 House Plan | 600 Sqft Plot House Plan | 1BHK North Facing Ground Floor Plan
20X30 House Plan – North Facing Layout
This 20X30 North Facing 1BHK Ground Floor House Plan is designed for a 600 sqft plot, making it a perfect compact home for small families, couples, or rental purposes.
The house plan layout includes 1 bedroom, living room, kitchen, 2 toilets, staircase, and a porch, ensuring maximum utility in limited space.
A North-facing entrance ensures balanced daylight, good ventilation, and positive energy throughout the home.
Why Choose a 20X30 House Plan?
Ideal for small plots in urban and semi-urban areas
Perfect for 1BHK small family homes or rental investment units
Smart placement of living + private spaces
Porch included for two-wheeler or compact car parking
Best use of 600 sqft without compromising comfort
Easy to extend in the future (first floor / duplex)
Vastu-friendly orientation with North-facing main door
Key Features of This 1BHK House Drawing
1 Bedroom – Well-ventilated and private
Living Room – Central space for family interactions
Kitchen – Efficient and easy-to-use layout
2 Toilets – One attached + one common for convenience
Staircase – Positioned for future expansion
Porch Area – Useful for parking or sit-out space
More 20X30 House Plan Options
Explore different layout choices based on your needs:
20X30 1BHK, 2BHK, and rental-friendly designs
Ground floor + first floor + duplex styles
2D floor plans & 3D elevation designs
North, East, West & South facing house plans
Vastu-oriented compact home layouts
Find More House Plans at HouseGyan
HouseGyan offers hundreds of plot-size-based plans, including:
20X30, 20X40, 25X40, 30X50, 30X60
Modern front elevations
2D/3D house drawings
Construction cost calculators
Vastu tips & architectural guidance
Get Your Custom 20X30 House Plan Today!
At HouseGyan, we provide custom house plan maps & 3D designs as per your needs.:
Personalized 2D & 3D house plans
Quick PDF/CAD delivery
Vastu-friendly home design
Custom space planning as per your lifestyle
Affordable architectural support
Final Thoughts
This 20X30 North Facing 1BHK Ground Floor House Plan is simple, efficient, and designed to give maximum comfort within 600 sqft.
With a bedroom, living room, kitchen, two toilets, porch, and staircase, it’s a complete and practical home for small families or rental purposes.
Explore more 20X30 house plans, 1BHK designs, and custom layouts only on HouseGyan!

The information contained on Housegyan.com is provided for general informational purposes only. While we strive to ensure that the content on our website is accurate and current, we make no warranties or representations of any kind, express or implied, about the completeness, accuracy, reliability, suitability, or availability with respect to the website or the information, products, services, or related graphics contained on the website for any purpose. Housegyan.com will not be liable for any loss or damage including, without limitation, indirect or consequential loss or damage, or any loss or damage whatsoever arising from loss of data or profits arising out of, or in connection with, the use of this website.
Third party logos and marks are registered trademarks of their respective owners. All rights reserved.













