15X40 East Facing 1BHK Ground Floor House Plan | 600 Sqft Plot Floor Plan
Description
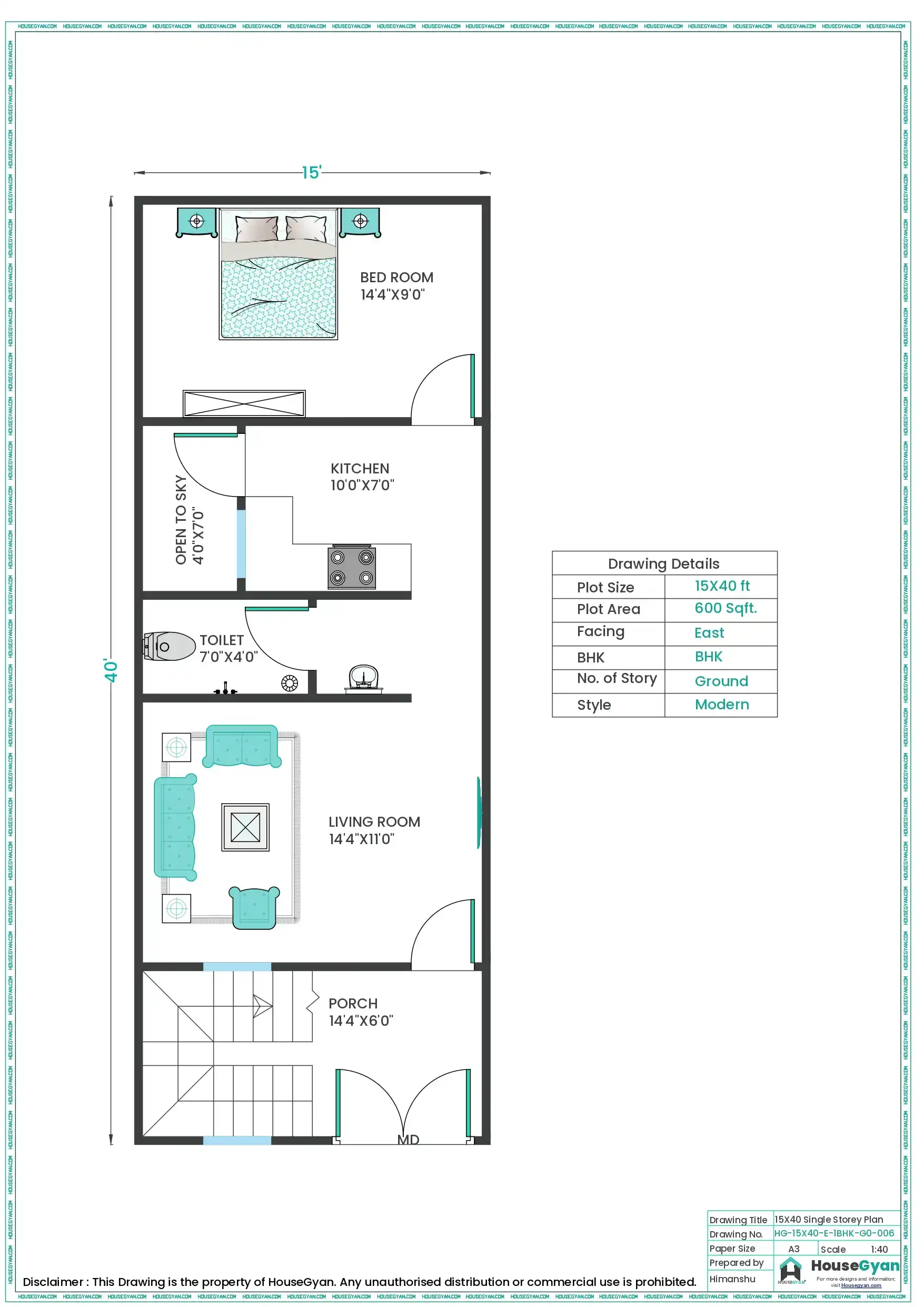
This 15X40 East-facing 1BHK ground floor house plan is designed to maximize space efficiently within a 600 sqft plot. This house plan consists of 1 bedrooms,1 Hall and 1 bathrooms within 600 square feet. If you're looking for a 15X40 house plan, you've come to the right place. Here at HouseGyan architects, we specialize in designing and creating floor plans for all types of 15X40 plot size houses. Whether you're looking for a traditional two-story home or a more modern ranch-style home, we can help you create the perfect 15*40 floor plan for your needs.
Whether you're looking to build your dream home with a Custom House Drawing or want a compact, modern layout, this 600 sqft floor plan is an excellent choice for a East-facing plot. To get an rough idea of the expenses, use our House Construction Price Calculator to estimate your costs effectively.
Ratings & Reviews
House Gyan all services
Loading...15X40 House Plan | 600 Sqft Plot Floor Plan | 1BHK East Facing Ground Floor Plan
This 15X40 East Facing 1BHK Ground Floor House Plan is designed for a 600 Sqft narrow plot, ensuring smart space utilization and comfortable living for small families, individuals, or rental purposes. Despite the compact size, the house plan layout includes a bedroom, living room, kitchen, toilets, porch area, and staircase for future expansion.
15X40 House Plan – East Facing Layout
This thoughtfully arranged 1BHK plan includes:
1 Bedroom – Well-planned and ventilated for privacy
Living Room – Central welcoming space for family and guests
Kitchen – Functional layout with proper workspace and storage
2 Toilets – Attached + common or combined, depending on need
Porch Area – Compact front space suitable for parking a two-wheeler
Staircase – Smartly positioned for easy access to future floors or terrace
Efficient Layout – Perfectly optimized for a narrow 15-foot wide plot
The East-facing entrance brings in natural morning light, supporting positivity and energy flow throughout the home.
Why Choose a 15X40 House Plan?
Perfect for 600 Sqft compact plots
Ideal for singles, couples, or rental units
Space-efficient planning for narrow dimensions
Easy to expand with upper floors in the future
East-facing layout supports good daylight & Vastu alignment
Budget-friendly construction option
More 15X40 House Plan Options
Explore additional layouts such as:
1BHK & 2BHK plans
Rental-friendly designs
Vastu-focused layouts
Modern 2D and 3D elevation designs
Ground floor + duplex options
Find More House Plans at HouseGyan
HouseGyan offers:
High-quality 2D & 3D drawings
CAD/PDF delivery
Elevation designs for small plots
Customized revisions
Expert planning for small and narrow plots
Get Your Custom 15X40 House Plan Today!
Need changes like a study corner, pooja room, extra storage, or bigger kitchen?
We create fully personalized house plans as per your plot and requirements.
Final Thoughts
This 15X40 East Facing 1BHK Ground Floor House Plan is a compact, efficient, and well-balanced layout designed for 600 Sqft plots. Simple, functional, and future-ready — ideal for modern small homes or rental constructions.

The information contained on Housegyan.com is provided for general informational purposes only. While we strive to ensure that the content on our website is accurate and current, we make no warranties or representations of any kind, express or implied, about the completeness, accuracy, reliability, suitability, or availability with respect to the website or the information, products, services, or related graphics contained on the website for any purpose. Housegyan.com will not be liable for any loss or damage including, without limitation, indirect or consequential loss or damage, or any loss or damage whatsoever arising from loss of data or profits arising out of, or in connection with, the use of this website.
Third party logos and marks are registered trademarks of their respective owners. All rights reserved.













