
3rd, Mar, 2026
Top 10 Low-Cost Best House Plans in Maharashtra 2026
Building a home in Maharashtra—whether in Pune, Mumbai outskirts, Nashik, Nagpur, Aurangabad, or Kolhapur—requires smart planning, cost-effective material choices, and efficient space design. The Top 10 Low-Cost Best House Plans in Maharashtra 2026 come with modern layouts, proper ventilation, and scalable structures to support future extensions. This house plan article provides expert insights, architectural guidance, and optimized designs for different plot sizes ranging from 440 sqft to 2400 sqft.
Understanding Low-Cost House Plans in Maharashtra
Affordable house designs don’t mean compromising on quality. Instead, they focus on using space efficiently, selecting economical materials, and creating layouts that work for Maharashtra’s climate and compact city plots.
Key Features of Budget-Friendly Home Designs
Smart room placement for privacy
Maximum natural ventilation
Use of cost-effective materials like fly-ash bricks
Minimalist exterior design
Planned plumbing and electrical pathways
Why House Planning Matters for Maharashtra Homes
With rising land costs and compact urban plots, proper planning lowers construction waste, saves money, and increases the overall value of your home.
10 Best Low-Cost House Plans in Maharashtra 2026
Below is a comprehensive breakdown of each house plan.
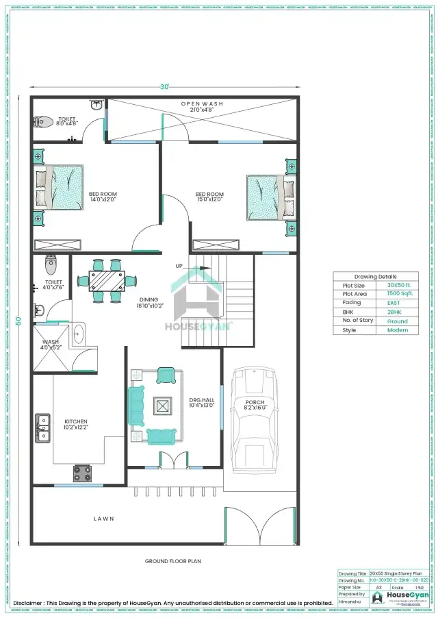
1. 30x50 East Facing 2BHK Ground Floor House Plan (1500 Sqft Plot)

Layout, Rooms & Best Space Utilization
A perfect design for medium-sized families, this plan typically includes:
Spacious living room
Two bedrooms with attached/common bathroom
Large kitchen with dining space
Utility area
Parking space for a car
The east-facing entrance ensures natural sunlight throughout the day.
Vastu Considerations & Budget Insights
Kitchen SE corner
Master bedroom SW
Entrance NE
Cost-efficient with simple structure and no unnecessary extensions
2. 20x50 East Facing 2BHK Ground Floor House Plan (1000 Sqft Plot)

Design Breakdown & Space Efficiency
Ideal for families seeking affordability on a compact plot:
2 bedrooms
Living room
Compact kitchen
1 bathroom
Small sit-out area
Cost-Effective Construction Choices
Use single-layer exterior plaster
Choose vitrified tiles for flooring
Keep room dimensions minimal to reduce slab costs
3. 20x50 West Facing 3BHK First Floor House Plan (1000 Sqft Plot)

Structural Planning & Staircase Placement
A first-floor design on a small plot makes excellent use of vertical space.
Recommended features:
3 bedrooms
Small balcony
Efficient staircase design
Well-lit living area
Best Materials for Low-Cost Build
Steel staircase railing
Fly-ash blocks
Pre-cast slabs to reduce labor costs
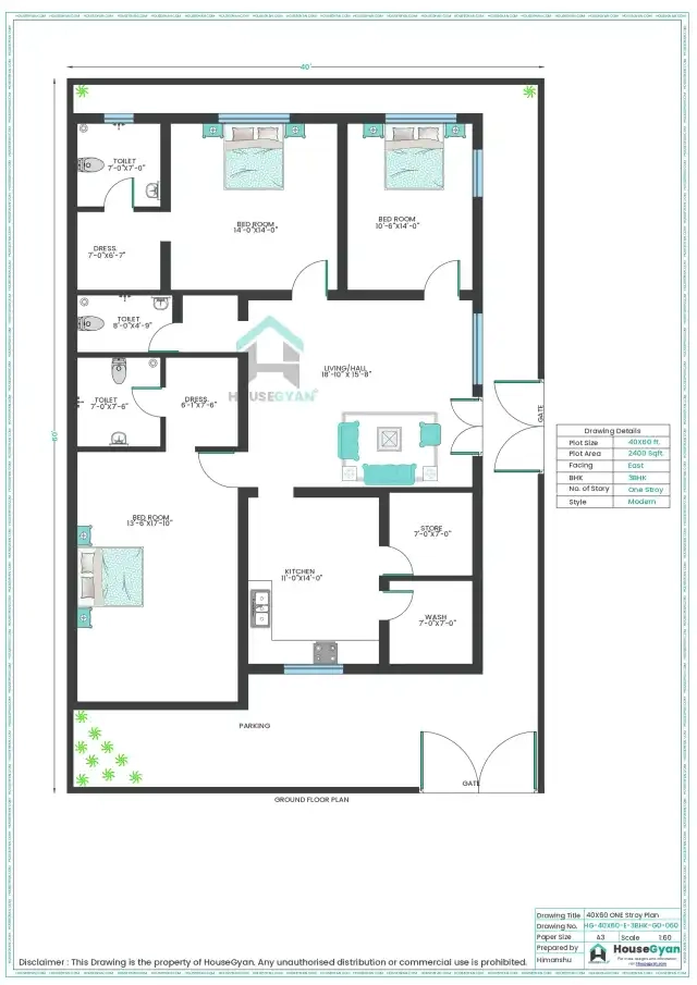
4. 40x60 East Facing 3BHK Ground Floor House Plan (2400 Sqft Plot)

Modern Layout With Garden & Parking
Large plots allow extensive planning:
Spacious bedrooms
Separate dining room
Sit-out verandah
Garden space
Double parking
Budget-Friendly Space Enhancements
Use simple compound walls
Avoid heavy decorative elevations
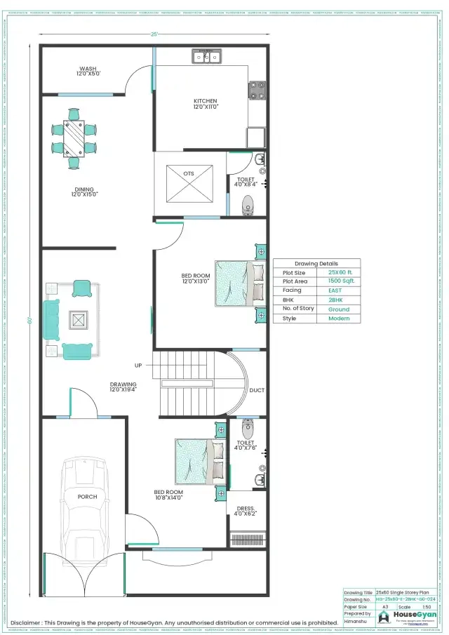
5. 25x60 East Facing 2BHK Ground Floor House Plan (1500 Sqft Plot)

Smart Zoning & Open Living Concepts
Open kitchen
Combined dining & living room
2 well-lit bedrooms
Backyard space for utilities
Cost Comparison for Similar Plot Sizes
This design costs less due to fewer walls and more open planning.
6. 35x60 East Facing 3BHK Ground Floor House Plan (2100 Sqft Plot)

Ideal for Joint Family Settings
This plan supports:
3 well-sized bedrooms
Puja room
Central hall
Kitchen + storage
Ways to Reduce Build Cost
Use modular carpentry
Select cost-effective exterior paint
7. 22x50 West Facing 3BHK First Floor House Plan (1100 Sqft Plot)

Best First-Floor Utilization
Perfect for urban areas with limited ground space.
Vastu + Natural Light Optimization
West-facing layouts need careful window placement for heat reduction.
8. 20x36 North Facing 2BHK Ground Floor House Plan (720 Sqft Plot)

Compact Plan for Small Families
Even a 720 sqft plot can fit:
2 bedrooms
Kitchen
Living room
Single bathroom
Economical Construction Tips
Opt for lightweight doors
Use simple slab design
9. 30x70 West Facing 3BHK Ground Floor House Plan (2100 Sqft Plot)

Spacious Layout for Urban Locations
Suitable for bungalow-style homes.
Low-Cost Finishing Options
Matte finish tiles
Simple roofing
10. 11x40 North Facing 1BHK Ground Floor House Plan (440 Sqft Plot)

Ultra-Small, Smart Functional Design
Perfect for bachelor living or rental units.
Essentials for Micro-Homes
Open kitchen concept
Loft storage
Smart ventilation
Cost Analysis of House Plans in Maharashtra
How to Choose the Best Low-Cost House Plan
Evaluating Plot Dimensions, Orientation & Vastu
Always check Vastu for better light and ventilation
Choose a design that fits your plot shape
Keep future extension possibilities in mind
Frequently Asked Questions
1. Which house plan is best for a 1000 sqft plot?
A 20x50 2BHK east-facing plan is one of the most efficient choices.
2. What is the minimum budget to build a 2BHK house in Maharashtra?
Around ₹12–17 lakhs depending on materials and labor.
3. Is Vastu important for house plans?
While optional, Vastu helps in natural ventilation and daylight optimization.
4. Can I build a 3BHK on a 1000 sqft plot?
Yes, using a first-floor or vertical design.
5. What is the cheapest type of construction material?
Fly-ash bricks and pre-cast slabs reduce overall costs.
6. Where can I see more house plan ideas?
You can explore professional design inspirations on architecture sites like housegyan.com.
Conclusion
The Top 10 Low-Cost Best House Plans in Maharashtra 2026 provide diverse, practical, and efficient layouts suitable for all plot sizes and budgets. Whether you're building in a metro or a rural part of Maharashtra, these plans help you save money while maximizing utility and comfort.
House Gyan all services
Loading...HouseGyan is your trusted platform for everything related to home design, construction, and planning. We offer a complete range of services to help you build your dream home with ease and confidence.
Our Services
- Price Calculators: Plan your budget with our tools like Home Loan EMI Calculator, Tile Price Calculator, Brick Cost Calculator, and more.
- House Drawings & Plans: Explore ready-made house plans or get custom house drawings designed to fit your needs perfectly.
- Elevation Designs: Choose from modern elevation designs or request a custom elevation design for a unique look.
- Accurate Estimates: Get clear and accurate construction cost estimates to plan better.
- Shubh Muhurat & Vastu Tips: Follow our Shubh Muhurat and Vastu guidelines to bring positive energy and harmony to your home.
- DIY Home Repair Guides: Learn easy DIY tips to fix and maintain your home efficiently.
- Interior Design Ideas: Discover creative ideas for living rooms, bedrooms, kitchens, balconies, and more.
Why Choose HouseGyan?
- All-in-One Platform: From house plans to price calculators, we cover it all.
- Custom Solutions: Get personalized designs and estimates for your home.
- Expert Guidance: Access professional tips on Vastu, Shubh Muhurat, and construction materials.
- User-Friendly: Our tools and content are designed to simplify home building for everyone.

The information contained on Housegyan.com is provided for general informational purposes only. While we strive to ensure that the content on our website is accurate and current, we make no warranties or representations of any kind, express or implied, about the completeness, accuracy, reliability, suitability, or availability with respect to the website or the information, products, services, or related graphics contained on the website for any purpose. Housegyan.com will not be liable for any loss or damage including, without limitation, indirect or consequential loss or damage, or any loss or damage whatsoever arising from loss of data or profits arising out of, or in connection with, the use of this website.
Third party logos and marks are registered trademarks of their respective owners. All rights reserved.










