
22nd, Nov, 2025
Top 10 Best House Plans in Madhya Pradesh 2025
Designing a perfect home can be challenging, especially when you're searching for the Top 10 Best House Plans in Madhya Pradesh 2025. With rising urban growth, diverse plot sizes, and increasing awareness of Vastu, homeowners in Madhya Pradesh want well-planned spaces that offer comfort, beauty, and functionality. In this article, we explore the top house plans—from compact 2BHK layouts to spacious 4BHK first-floor setups—ideal for cities like Bhopal, Indore, Gwalior, Jabalpur, and Ujjain.
Understanding the Demand for Modern House Plans in Madhya Pradesh
Madhya Pradesh has witnessed rapid modernization in residential architecture. Families today seek homes that balance aesthetics with practicality. Whether it’s a compact 20x36 plot or a premium 40x60 layout, homeowners prefer designs that maximize space, airflow, and natural light. Vastu-compliant house plans remain a top priority, especially in East- and North-facing plots.
Key Features of the Best House Plans in 2025
Modern house plans in MP come with features like:
Open-layout living rooms
Modular kitchens with utility areas
Spacious bedrooms with attached washrooms
Ample parking space
Eco-friendly ventilation
Smart water and electrical planning
These features ensure a comfortable lifestyle while keeping the construction budget reasonable.
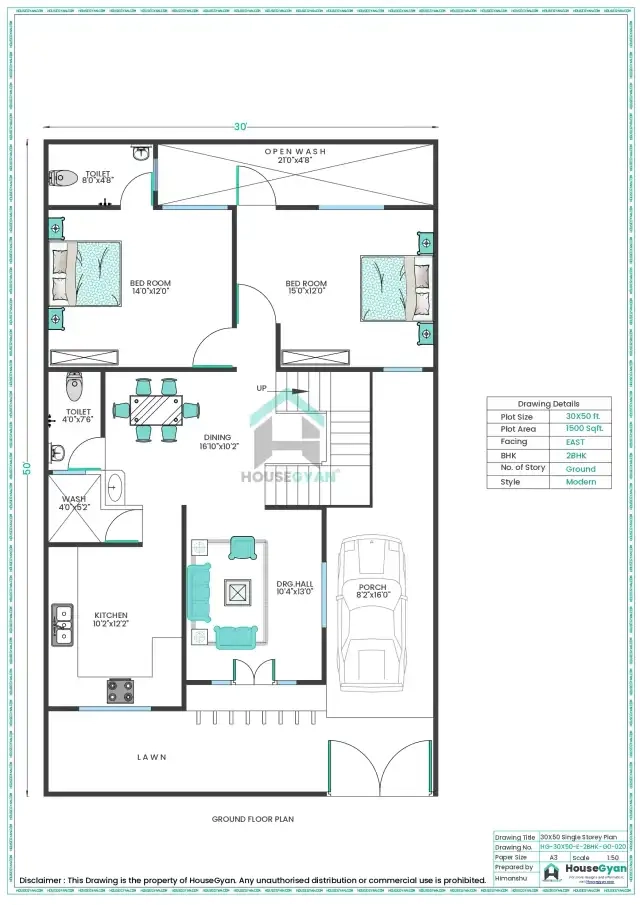
30x50 East Facing 2BHK Ground Floor House Plan (1500 Sqft Plot)

This layout is ideal for families wanting balanced space without overbuilding. The design generally includes:
Spacious living room
2 large bedrooms
Central dining area
Functional kitchen
Open parking area
Backyard garden
Advantages of 30x50 Plot Size in MP Homes
A 30x50 plot allows future expansion—whether you want to add a first floor later or extend the kitchen. Such plots are common in Indore, Ujjain, and Bhopal’s new colonies.
20x50 East Facing 2BHK Ground Floor House Plan (1000 Sqft Plot)

Compact yet smartly planned, this house plan uses every inch efficiently. The layout usually features:
A cosy living hall
2 well-placed bedrooms
Linear kitchen
Shared washroom
Front porch
Ideal for Nuclear Families
This cost-friendly plan suits small families looking for functionality without sacrificing comfort.
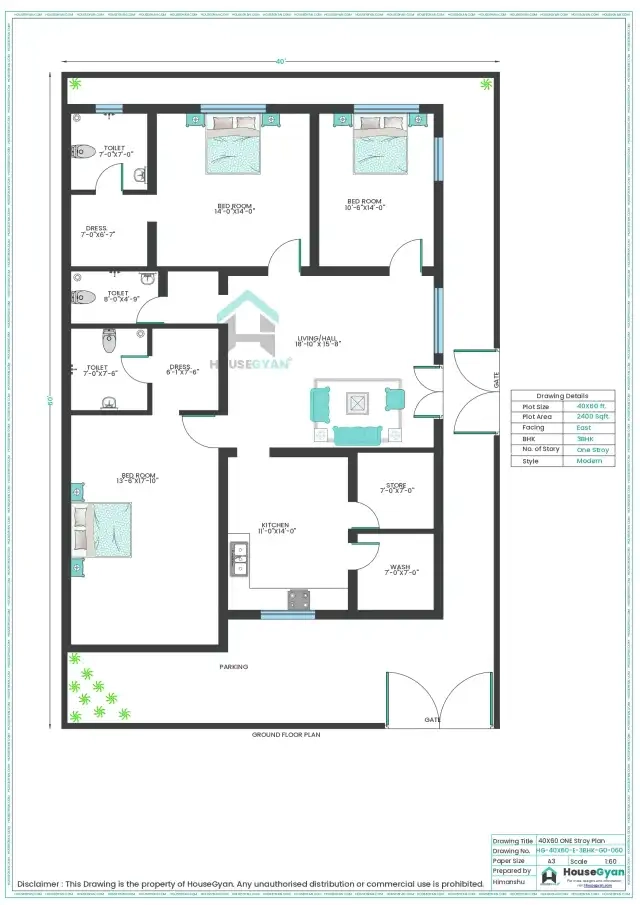
40x60 East Facing 3BHK Ground Floor House Plan (2400 Sqft Plot)

A 40x60 plot offers premium space. This East-facing layout includes:
Grand entrance foyer
3 spacious bedrooms
Open kitchen with breakfast counter
Landscaping areas
Extended car parking
Best for Joint Families
The spacious design makes it perfect for large or joint families seeking privacy while staying connected.
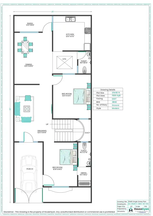
25x60 East Facing 2BHK Ground Floor House Plan (1500 Sqft Plot)

This elongated plot design offers excellent ventilation and natural light. It typically includes a long corridor layout, modern living spaces, and an extended backyard.
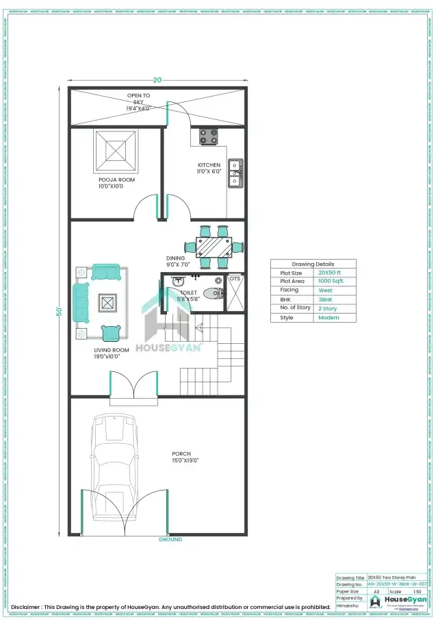
20x50 West Facing 3BHK First Floor House Plan (1000 Sqft Plot)

First-floor living is becoming popular in MP’s growing cities due to privacy and noise reduction.
Benefits of First-Floor Living in MP
Better airflow
Lower dust levels
Enhanced privacy
Ideal for rental income
35x60 East Facing 3BHK Ground Floor House Plan (2100 Sqft Plot)

This layout includes an L-shaped living+dining area, spacious bedrooms, and a side garden—perfect for families who enjoy greenery at home.
22x50 West Facing 3BHK First Floor House Plan (1100 Sqft Plot)

This plan manages to fit 3 bedrooms comfortably on a compact plot, with special focus on balcony placement and ventilation.
20x36 North Facing 2BHK Ground Floor House Plan (720 Sqft Plot)

Micro plots like 20x36 are common in urban MP. These layouts include:
Minimalist living room
2 small bedrooms
Efficient kitchen
Zero space wastage
Ideal for budget-conscious homeowners or rental projects.
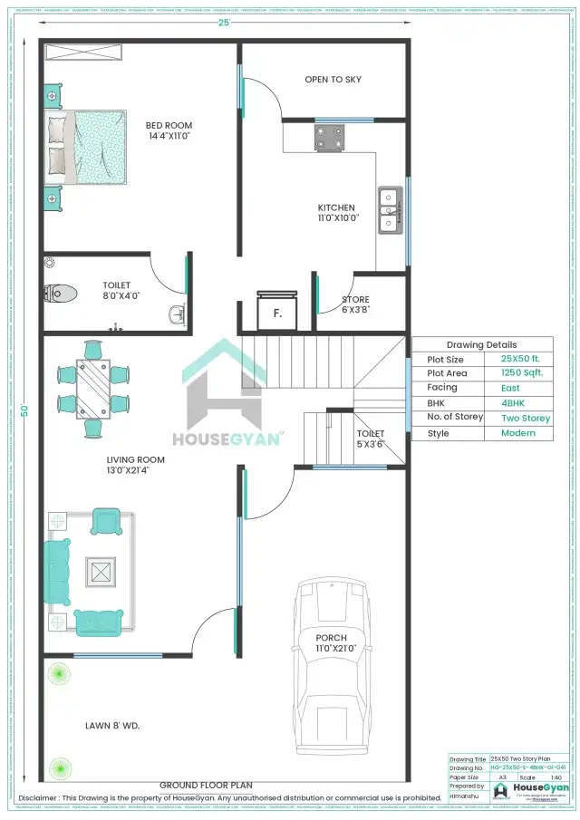
25x50 East Facing 4BHK First Floor House Plan (1250 Sqft Plot)

A perfect option for larger families needing more rooms without expanding plot size. Includes a guest room and multi-purpose hall.
24x50 East Facing 4BHK First Floor House Plan (1200 Sqft Plot)

This layout maximizes vertical space, ensuring ventilation and natural light across all rooms.
Cost of Building These House Plans in Madhya Pradesh
While costs vary, the average construction rate ranges from ₹1,400 to ₹1,900 per sq ft depending on material quality.
For reference, you can explore construction cost calculator on websites like HouseGyan.
How to Choose the Best House Plan for Your Plot Size
Consider these factors:
Family size
Plot facing
Budget
Future expansion needs
Vastu preferences
FAQs About the Top 10 Best House Plans in Madhya Pradesh 2025
1. Which house plan is best for a small plot in MP?
The 20x36 North-facing 2BHK plan is excellent for small plots.
2. Are East-facing plots better in Madhya Pradesh?
Yes, East-facing plots are highly preferred for Vastu benefits and natural light.
3. Can I convert a 2BHK plan into a 3BHK?
Yes, if your plot size allows, future expansion is possible.
4. What is the ideal plot size for a joint family?
40x60 or 35x60 plots are best suited.
5. Do first-floor house plans cost more?
Yes, due to staircase and slab work, they cost slightly more.
6. Is Vastu necessary when choosing a house plan?
While optional, most families in MP prefer Vastu-aligned layouts.
Conclusion
The Top 10 Best House Plans in Madhya Pradesh 2025 offer something for every family size, budget, and plot dimension. Whether you’re building a compact 2BHK or a luxurious 4BHK, each layout ensures comfort, Vastu alignment, and modern design principles to create a home that lasts for generations.
House Gyan all services
Loading...HouseGyan is your trusted platform for everything related to home design, construction, and planning. We offer a complete range of services to help you build your dream home with ease and confidence.
Our Services
- Price Calculators: Plan your budget with our tools like Home Loan EMI Calculator, Tile Price Calculator, Brick Cost Calculator, and more.
- House Drawings & Plans: Explore ready-made house plans or get custom house drawings designed to fit your needs perfectly.
- Elevation Designs: Choose from modern elevation designs or request a custom elevation design for a unique look.
- Accurate Estimates: Get clear and accurate construction cost estimates to plan better.
- Shubh Muhurat & Vastu Tips: Follow our Shubh Muhurat and Vastu guidelines to bring positive energy and harmony to your home.
- DIY Home Repair Guides: Learn easy DIY tips to fix and maintain your home efficiently.
- Interior Design Ideas: Discover creative ideas for living rooms, bedrooms, kitchens, balconies, and more.
Why Choose HouseGyan?
- All-in-One Platform: From house plans to price calculators, we cover it all.
- Custom Solutions: Get personalized designs and estimates for your home.
- Expert Guidance: Access professional tips on Vastu, Shubh Muhurat, and construction materials.
- User-Friendly: Our tools and content are designed to simplify home building for everyone.

The information contained on Housegyan.com is provided for general informational purposes only. While we strive to ensure that the content on our website is accurate and current, we make no warranties or representations of any kind, express or implied, about the completeness, accuracy, reliability, suitability, or availability with respect to the website or the information, products, services, or related graphics contained on the website for any purpose. Housegyan.com will not be liable for any loss or damage including, without limitation, indirect or consequential loss or damage, or any loss or damage whatsoever arising from loss of data or profits arising out of, or in connection with, the use of this website.
Third party logos and marks are registered trademarks of their respective owners. All rights reserved.










