house drawings area 500 to 1000 sqft
All Filter
Filters by Area
Filters by Story
Bedroom Filters
Direction Filters
Popular
New
Trending
Popular
Most Viewed
Popular
Trending
New
Popular
Trending
House Gyan all services
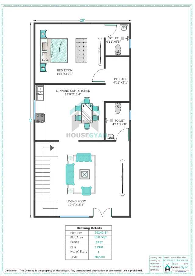
Loading...House Drawings for 500 to 1000 Sqft Area
When planning a house design for 500 to 1000 sqft, you can create a cozy and functional home that maximizes available space without compromising comfort. Whether you're considering a small family home, a compact urban residence, or a vacation house, smart planning ensures you make the most out of every square foot. Here’s everything you need to know about house drawings for areas between 500 and 1000 sqft.
Key Features of 500 to 1000 Sqft House Plans:
Efficient Layouts: Homes in this size range focus on smart space management. Open floor plans are common, seamlessly blending living, dining, and kitchen areas to make the interior feel more spacious.
Well-Defined Rooms: You can have separate rooms for living, dining, bedrooms, and bathrooms. In a 500 to 1000 sqft home, a two-bedroom layout or a single spacious bedroom is possible. These homes often include a compact kitchen and a comfortable living area.
Multifunctional Spaces: For better space utilization, multifunctional furniture like storage beds, foldable dining tables, and convertible sofa beds are often included. This enhances flexibility and ensures each room serves multiple purposes.
Simple Design with Smart Storage: Simple yet effective designs ensure optimal use of space. Built-in shelves, cabinets, and vertical storage solutions keep the home clutter-free while adding style to the interior.
Outdoor Spaces: In some designs, if the area allows, you can incorporate small porches or balconies that extend your living space outdoors, offering extra room for relaxation.
Benefits of a 500 to 1000 Sqft Home:
Affordable Construction: Homes in this size range are cost-effective to build, offering an ideal solution for individuals, small families, or budget-conscious homeowners.
Energy Efficiency: These homes require less energy to heat, cool, and maintain, making them an environmentally friendly and cost-saving choice.
Low Maintenance: Smaller homes are easier and faster to clean and maintain. They provide just enough space for comfortable living without overwhelming upkeep demands.
Cozy and Comfortable Living: A 500 to 1000 sqft home can feel cozy without being cramped. With well-planned designs, you can achieve a warm, inviting atmosphere that makes the home both functional and comfortable.
Who Can Benefit From These Plans?
Small Families: For small families looking for a cozy and functional home, a 500 to 1000 sqft house can offer the perfect balance of comfort and practicality.
Urban Dwellers: In urban areas where space is limited, these compact house plans are ideal for those wanting a comfortable home without needing a large footprint.
Vacation or Second Homes: For those seeking a vacation home or a second property, a smaller house in this range is an affordable and easy-to-maintain option.
Retirees: Retired individuals looking to downsize from a larger home can find great comfort in a smaller, easier-to-maintain home in this size range.
HouseGyan – Your Partner for 500 to 1000 Sqft House Drawings
At HouseGyan, we understand the need for practical, beautiful, and well-planned homes within limited space. Our team of experts specializes in creating customized house drawings for areas ranging from 500 to 1000 sqft. Whether you desire a modern minimalist home or a traditional small house design, we provide tailored solutions that meet your exact requirements. Feel free to reach out to us for more information on house drawings for 500 to 1000 sqft. Let’s bring your vision of the perfect compact home to life today!

The information contained on Housegyan.com is provided for general informational purposes only. While we strive to ensure that the content on our website is accurate and current, we make no warranties or representations of any kind, express or implied, about the completeness, accuracy, reliability, suitability, or availability with respect to the website or the information, products, services, or related graphics contained on the website for any purpose. Housegyan.com will not be liable for any loss or damage including, without limitation, indirect or consequential loss or damage, or any loss or damage whatsoever arising from loss of data or profits arising out of, or in connection with, the use of this website.
Third party logos and marks are registered trademarks of their respective owners. All rights reserved.










