4BHK House Plan Designs - Floors, Drawin...
All Filter
Filters by Area
Filters by Story
Bedroom Filters
Direction Filters
Popular
Popular
New
New
Trending
Most Viewed
New
Popular
New
Trending
House Gyan all services
Loading...4 BHK House Plans Designs and Drawings | HouseGyan
At HouseGyan, we specialize in crafting well-planned and aesthetically appealing 4 BHK house plans that cater to larger families or individuals who value extra space. Our 4 BHK (4 Bedrooms, Hall, Kitchen) house designs are created to provide maximum comfort, privacy, and functionality. Whether you are looking for a modern or traditional layout, our expert team will ensure that your 4 BHK home is tailored to your lifestyle.
Why Choose a 4 BHK House Plan?
Spacious Living: A 4 BHK home offers ample space for large families, ensuring that everyone has their own private area while also maintaining spacious common areas for social gatherings and family time.
Enhanced Privacy: With four separate bedrooms, there is enough room to accommodate guests, create a home office, or provide separate spaces for children, ensuring that everyone can enjoy their own privacy.
Multi-Functional Space: Extra bedrooms can be transformed into guest rooms, home offices, or study rooms, making a 4 BHK home versatile and adaptable to your needs.
Future-Proof: As your family grows or your lifestyle changes, a 4 BHK home provides the flexibility to evolve with you, offering the space and layout for years to come.
Key Features of Our 4 BHK House Plans
Open and Well-Defined Layouts: Our 4 BHK designs are thoughtfully crafted to balance open living areas with private spaces. The living room, dining area, and kitchen are often designed in an open-concept layout to maximize the feeling of space and promote family interaction.
Separate Master Suite: A well-designed master bedroom with an en-suite bathroom offers a private retreat within the home. The master suite typically features larger windows, ample storage space, and a luxurious bathroom.
Efficient Use of Space: Even with four bedrooms, our house plans ensure that every square foot is used wisely. Storage solutions like built-in wardrobes, kitchen cabinets, and utility spaces keep your home organized and clutter-free.
Natural Light and Ventilation: Our designs incorporate large windows and balconies, ensuring plenty of natural light and cross ventilation throughout the home, creating a fresh and airy environment.
Customizable Designs: We offer customization options to suit your style and preferences, whether you prefer a modern, minimalistic design or a more traditional layout.
Benefits of Choosing HouseGyan for 4 BHK House Plans
Expert Consultation: Our team of skilled architects and designers will work with you to create a 4 BHK house plan that meets your specific needs, ensuring every detail is considered.
High-Quality Designs: We focus on delivering high-quality designs that combine beauty with functionality, creating homes that are not only aesthetically pleasing but also highly practical.
Affordable Solutions: Our 4 BHK house plans are designed to be budget-friendly without compromising on style or quality. You can get your dream home at a cost-effective price.
Timely Delivery: At HouseGyan, we understand the importance of time in construction projects. That’s why we ensure timely delivery of your house plans so that you can start your building process without delay.
Start Building Your 4 BHK Dream Home Today!
Ready to design your perfect 4 BHK home? At HouseGyan, we’re dedicated to helping you create a spacious, comfortable, and beautiful house plan that reflects your unique lifestyle. Whether you’re looking for a luxurious layout or a practical family home, we’ve got you covered.
Contact us today to get started on your custom 4 BHK house plan or to schedule a consultation with our expert team. Let’s bring your dream home to life!
FAQs
Q1: What is the best size for a 4BHK house plan?
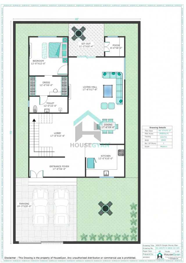
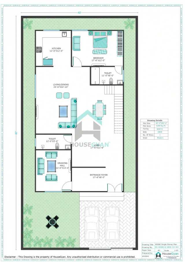
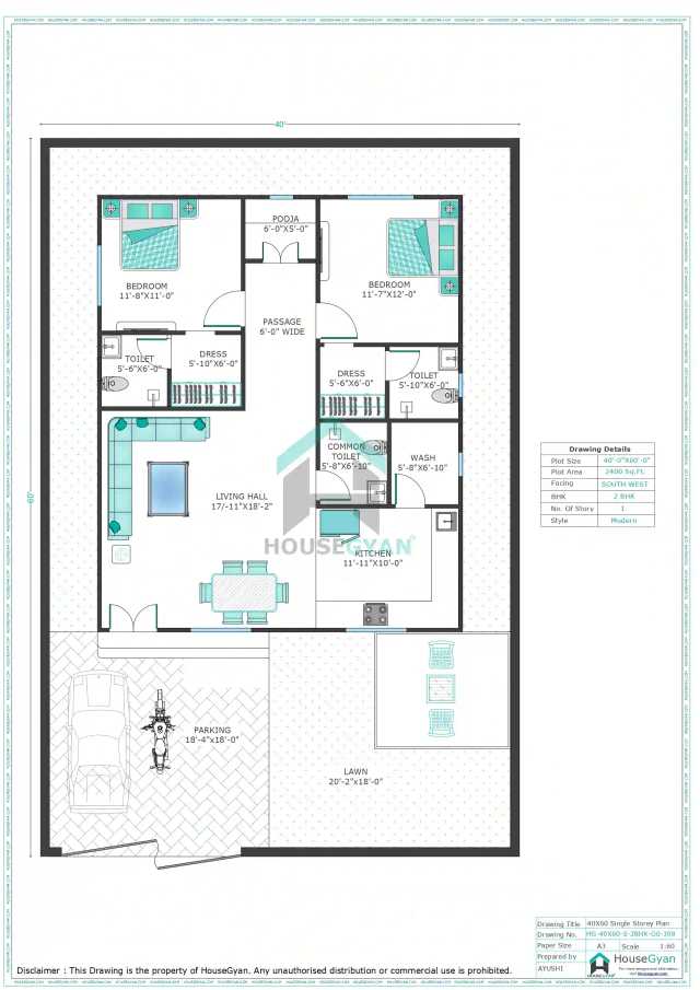
Ans. The most popular 4BHK house plan size is 1200 sq ft, which fits on a 30x40 feet plot. This size works well for Indian families and includes four bedrooms, a hall, kitchen, and two bathrooms. For larger families, 1500 to 2000 sq ft 4BHK house plans offer more space with attached bathrooms, balconies, and car parking. The best size depends on your plot dimensions, budget, and family needs. Single floor 4BHK house plans work for plots up to 1500 sq ft, while multi-story designs fit on smaller plots.
Q2: Can I get a 4BHK house plan with pooja room?
Ans. Yes, we offer many 4BHK house plans with dedicated pooja rooms. The pooja room is typically placed in the northeast corner following vastu guidelines. Our 4BHK luxury house plans include separate pooja spaces with proper ventilation and lighting. You can also request custom changes to add a pooja room to any 4BHK house plan design. The pooja room size usually ranges from 50 to 100 sq ft depending on the total house area. We design these spaces with correct door placements and lighting for daily prayers.
Q3: Are your 4BHK house plans vastu-compliant?
Ans. Most of our 4BHK house plans follow vastu principles for main entrance direction, bedroom placement, and kitchen location. We offer specific north facing 4BHK house plans, south facing layouts, and east/west facing designs that meet vastu standards. Each plan shows the recommended direction for pooja room, master bedroom, and children's bedrooms. If you need strict vastu compliance, filter our collection by facing direction or request a custom vastu-compliant 4BHK house plan. Our architects understand traditional Indian vastu rules and modern building needs.
Q4: What is included in a 4BHK house plan PDF?
Ans. Our 4BHK house plan PDF files include complete floor layouts with room measurements, wall dimensions, and door/window positions. Each PDF shows bedroom sizes, bathroom layouts, kitchen area, hall dimensions, and parking space. The plans also mark vastu directions (north, south, east, west) and show standard door sizes (3 feet, 4 feet) and window sizes. You get a print-ready file that builders and masons can use for construction. The PDF is free to download and includes all details needed for building permit applications.
Q5: Can I use a 4BHK house plan for a 30x40 plot?
Ans. Yes, several 4BHK house plans work perfectly for 30x40 feet plots (1200 sq ft). These are compact single floor 4BHK designs or two-story layouts that maximize space efficiently. A 30x40 4BHK house plan typically includes four bedrooms of 10x10 or 10x12 feet, a hall, kitchen, and two bathrooms. Some designs also fit car parking in the front. Browse our 1200 sq ft 4BHK house plan collection to find options for 30x40 plots. We can also customize any plan to match your exact plot dimensions.

The information contained on Housegyan.com is provided for general informational purposes only. While we strive to ensure that the content on our website is accurate and current, we make no warranties or representations of any kind, express or implied, about the completeness, accuracy, reliability, suitability, or availability with respect to the website or the information, products, services, or related graphics contained on the website for any purpose. Housegyan.com will not be liable for any loss or damage including, without limitation, indirect or consequential loss or damage, or any loss or damage whatsoever arising from loss of data or profits arising out of, or in connection with, the use of this website.
Third party logos and marks are registered trademarks of their respective owners. All rights reserved.












