Table Of Content ☰
- 30x50 East Facing 2BHK Ground Floor House Plan – 1500 Sqft
- 25x60 East Facing 2BHK Ground Floor House Plan – 1500 Sqft
- 30x50 North Facing 3BHK Ground Floor House Plan – 1500 Sqft
- 26x60 East Facing 2BHK Ground Floor House Plan – 1560 Sqft
- 30x50 East Facing 1BHK Ground Floor House Plan – 1500 Sqft
- 30x55 East Facing 4BHK First Floor House Plan – 1650 Sqft
- 36x45 East Facing 3BHK Ground Floor House Plan – 1620 Sqft
- 40x40 North Facing 2BHK Ground Floor House Plan – 1600 Sqft
- 35x45 West Facing 3BHK Ground Floor House Plan – 1575 Sqft
- 40x48 East Facing 4BHK First Floor House Plan – 1920 Sqft
- Best House Plans Under ₹20 Lakh in India
- Why Choose HouseGyan for Budget House Plans?
- Final Thoughts
- FAQs
Build Your Dream house plan Within Budget — Explore Smart, Affordable Designs
Building your dream home doesn’t always require a massive budget. With smart planning, a beautiful and spacious house can easily be built under ₹20 lakh in India.
From 1BHK compact homes to 3BHK family-friendly designs, HouseGyan offers multiple ready-made house plans perfectly suited for your budget, plot size, and facing direction.
Let’s explore the Top 10 House Plans under ₹20 Lakh in India (2026) with layouts, features, and design details you can actually build!
1. 30x50 East Facing 2BHK Ground Floor House Plan – 1500 Sqft

Plot Size: 30x50 (1500 Sqft)
Configuration: 2BHK
Design Type: Ground Floor
Budget Estimate: ₹18–19 Lakh
Highlights:
Perfect for small to medium-sized families.
Includes spacious bedrooms, modular kitchen, and front sit-out area.
East-facing entrance for good morning sunlight — as per Vastu.
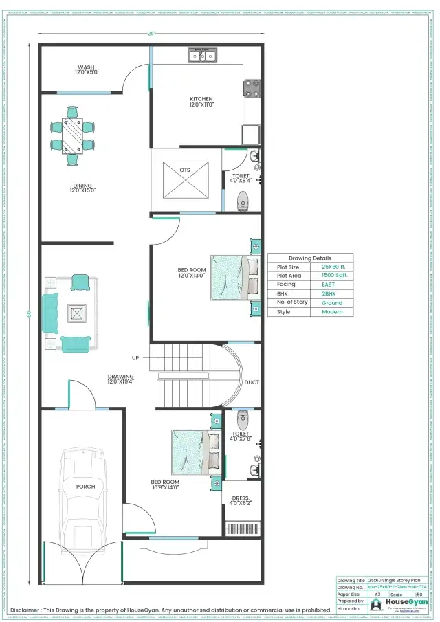
2. 25x60 East Facing 2BHK Ground Floor House Plan – 1500 Sqft

Plot Size: 25x60 (1500 Sqft)
Configuration: 2BHK
Budget Estimate: ₹17–18 Lakh
Highlights:
Efficient space planning ensures no wasted area.
Includes living area, dining, kitchen, and 2 attached baths.
Ideal for narrow plots with front-facing ventilation.
3. 30x50 North Facing 3BHK Ground Floor House Plan – 1500 Sqft

Plot Size: 30x50 (1500 Sqft)
Configuration: 3BHK
Budget Estimate: ₹19–20 Lakh
Highlights:
Modern 3BHK design suitable for families.
North-facing entrance brings balanced light and energy.
Proper separation of kitchen and pooja space as per Vastu Shastra.
4. 26x60 East Facing 2BHK Ground Floor House Plan – 1560 Sqft

Plot Size: 26x60 (1560 Sqft)
Configuration: 2BHK
Budget Estimate: ₹18–19 Lakh
Highlights:
Wide layout with open living and dining space.
Perfect air circulation and sunlight.
Great choice for small-town or suburban plots.
5. 30x50 East Facing 1BHK Ground Floor House Plan – 1500 Sqft

Plot Size: 30x50 (1500 Sqft)
Configuration: 1BHK
Budget Estimate: ₹12–14 Lakh
Highlights:
Ideal for bachelors, couples, or small families.
Minimalist layout with scope to expand later.
Highly energy-efficient and low maintenance.
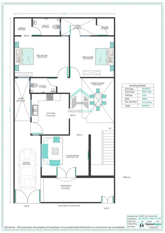
6. 30x55 East Facing 4BHK First Floor House Plan – 1650 Sqft

Plot Size: 30x55 (1650 Sqft)
Configuration: 4BHK
Budget Estimate: ₹19–20 Lakh
Highlights:
Best design for large families on a tight budget.
Spacious rooms, balcony, and storage areas.
East-facing entrance with well-planned interiors.
7. 36x45 East Facing 3BHK Ground Floor House Plan – 1620 Sqft

Plot Size: 36x45 (1620 Sqft)
Configuration: 3BHK
Budget Estimate: ₹19 Lakh
Highlights:
Balanced design with large hall and kitchen.
East-facing direction ensures morning sunlight.
Premium look within affordable cost.
8. 40x40 North Facing 2BHK Ground Floor House Plan – 1600 Sqft

Plot Size: 40x40 (1600 Sqft)
Configuration: 2BHK
Budget Estimate: ₹18.5 Lakh
Highlights:
Modern design with front porch and large hall.
North-facing Vastu-compliant entrance.
Ideal for families who value open living space.
9. 35x45 West Facing 3BHK Ground Floor House Plan – 1575 Sqft

Plot Size: 35x45 (1575 Sqft)
Configuration: 3BHK
Budget Estimate: ₹19 Lakh
Highlights:
Modern front elevation design with west-facing entrance.
Excellent space management for bedrooms and living areas.
Suitable for both urban and semi-urban homes.
10. 40x48 East Facing 4BHK First Floor House Plan – 1920 Sqft

Plot Size: 40x48 (1920 Sqft)
Configuration: 4BHK
Budget Estimate: ₹20 Lakh
Highlights:
Spacious design with balcony, study, and family hall.
East-facing for prosperity and light.
Best for large families seeking affordable luxury.
10 Best House Plans Under ₹20 Lakh in India
Rank | Plot Size | Facing | BHK | Area (Sqft) | Estimated Cost | Link |
1 | 30x50 | East | 2BHK | 1500 | ₹18–19 Lakh | |
2 | 25x60 | East | 2BHK | 1500 | ₹17–18 Lakh | |
3 | 30x50 | North | 3BHK | 1500 | ₹19–20 Lakh | |
4 | 26x60 | East | 2BHK | 1560 | ₹18–19 Lakh | |
5 | 30x50 | East | 1BHK | 1500 | ₹12–14 Lakh | |
6 | 30x55 | East | 4BHK | 1650 | ₹19–20 Lakh | |
7 | 36x45 | East | 3BHK | 1620 | ₹19 Lakh | |
8 | 40x40 | North | 2BHK | 1600 | ₹18.5 Lakh | |
9 | 35x45 | West | 3BHK | 1575 | ₹19 Lakh | |
10 | 40x48 | East | 4BHK | 1920 | ₹20 Lakh |
Why Choose HouseGyan for Budget House Plans?
100% Vastu-Compliant House Drawings
Customizable Designs Under ₹20 Lakh
Includes Floor Plans, Dimensions & Furniture Layouts
Expert Support for 1BHK, 2BHK, 3BHK & 4BHK Homes
Affordable Pricing with Ready-to-Build Blueprints
HouseGyan Offering | ||
Final Thoughts
If you’re planning to build a home under ₹20 lakh, these HouseGyan designs are practical, stylish, and affordable.
Each plan is created by professional designers keeping Vastu, ventilation, and modern living in mind.
Explore more such budget-friendly designs at HouseGyan.com and start your dream home journey today!
FAQs
1. Can a house be built under ₹20 lakh in India?
Yes, with smart planning and efficient design, you can build a 1BHK, 2BHK, or even a compact 3BHK house under ₹20 lakh in India, especially on plots around 1200–1600 sqft.
2. Which house size is best for a ₹20 lakh budget?
A 1BHK or 2BHK house between 1200–1500 sqft is usually the most practical option to build comfortably within a ₹20 lakh budget.
3. What factors affect the cost of building a house under ₹20 lakh?
The total cost depends on plot size, construction materials, labor cost, house design, number of floors, and location.
4. Is it possible to build a 3BHK house under ₹20 lakh?
Yes, a compact 3BHK house can be built under ₹20 lakh with efficient space planning and a simple ground-floor layout.
5. Are Vastu-compliant house plans available under ₹20 lakh?
Yes, many affordable house plans are designed according to Vastu principles, such as east or north-facing entrances and proper room placement.
6. Which plot sizes are ideal for budget house plans?
Popular plot sizes for affordable homes include 30x50, 25x60, 40x40, and 36x45 plots, which allow efficient layouts within budget.
7. Where can I find ready-made house plans under ₹20 lakh?
You can explore ready-to-build designs with layouts, dimensions, and Vastu guidance on platforms like HouseGyan, which offer multiple budget-friendly house plans.














