
14th, Mar, 2026
Top 10 Best East Facing House Plans in Jharkhand 2026
Table Of Content ☰
-
1. Top 10 East Facing House Plans in Jharkhand 2026
- 1.18×35 East Facing 2BHK Ground Floor House Plan (630 Sq Ft)
- 2. 20×35 East Facing 2BHK Ground Floor House Plan (700 Sq Ft)
- 3. 30×45 East Facing 2BHK Ground Floor House Plan (1350 Sq Ft)
- 4. 30×55 East Facing 4BHK First Floor House Plan (1650 Sq Ft)
- 5. 30×50 East Facing 1BHK Ground Floor House Plan (1500 Sq Ft)
- 6. 25×25 East Facing 2BHK Ground Floor House Plan (625 Sq Ft)
- 7. 21×55 East Facing 2BHK Ground Floor House Plan (1155 Sq Ft)
- 8. 25×47 East Facing 3BHK First Floor House Plan (1175 Sq Ft)
- 9. 23×50 East Facing 4BHK Ground Floor House Plan (1150 Sq Ft)
- 10. 19×35 East Facing 2BHK Ground Floor House Plan (665 Sq Ft)
-
2. Popular East Facing House Plans in Jharkhand 2026
- 2.1 BHK East Facing House Plan
- 2.2 Modern East Facing Duplex House Plans
- 2.3 30x40 East Facing Plan
- 3.4 Ground Floor East Facing House
- 3.5 30 50 House Plan 3BHK East Facing
- 3.6 40X60 East Facing Plan
- 2.7 19 * 35 House Plan East Facing
- 2.8 East Facing House Vastu Plan
- 2.9 Contemporary East Facing House Design
- 2.10 Best East Facing House Plan for Future Expansion
- 3. Conclusion
- 4. Why HouseGyan?
- 5. FAQs
The people of India prefer to build their homes with east facing house plan which they consider to be the best architectural orientation. The residents of Jharkhand prefer to build their homes with east-facing designs because this orientation lets them receive morning sunlight which people believe brings good energy and economic success.
Modern homeowners today combine traditional Vastu principles with modern architecture to create homes that are functional, comfortable, and stylish. The year 2026 provides numerous intelligent design choices for your 2bhk house plan east facing design and modern duplex and 30x40 east facing plan layouts.
Top 10 East Facing House Plans in Jharkhand 2026
1. 18×35 East Facing 2BHK Ground Floor House Plan (630 Sq Ft)

This compact yet functional house layout is perfect for small families who want a practical home on a narrow plot.
Layout includes:
-
2 well-planned bedrooms
-
Comfortable east-facing living room
-
Compact dining space
-
Vastu-friendly southeast kitchen
-
Common bathroom
-
Small front sit-out area
Why it’s great:
This 18×35 east facing 2BHK plan efficiently uses limited space while ensuring good airflow and natural light, making it ideal for urban residential plots.
2. 20×35 East Facing 2BHK Ground Floor House Plan (700 Sq Ft)

This thoughtfully designed floor plan offers a perfect combination of comfort and smart space planning for modern families.
Layout includes:
-
2 spacious bedrooms
-
Bright east-facing living hall
-
Dining area near the kitchen
-
Functional southeast kitchen
-
Attached and common bathrooms
-
Small parking or sit-out space
Why it’s great:
The 20×35 east facing 2BHK plan is perfect for compact plots while maintaining privacy and proper ventilation.
3. 30×45 East Facing 2BHK Ground Floor House Plan (1350 Sq Ft)

This spacious layout is ideal for families looking for a comfortable home with modern design and vastu-friendly planning.
Layout includes:
-
2 large bedrooms
-
Spacious east-facing living room
-
Dedicated dining area
-
Modern southeast kitchen
-
Two bathrooms
-
Front parking space
Why it’s great:
The 30×45 east facing house plan offers ample living space and efficient layout planning for comfortable family living.
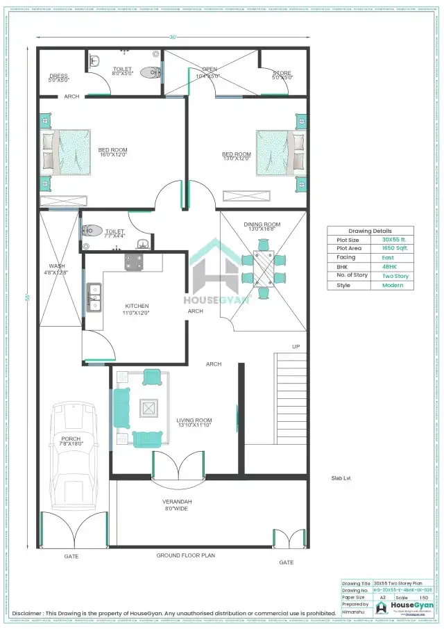
4. 30×55 East Facing 4BHK First Floor House Plan (1650 Sq Ft)

This large family home layout is designed for people who want multiple bedrooms and spacious living areas.
Layout includes:
-
4 well-designed bedrooms
-
Large east-facing living hall
-
Spacious dining area
-
Modern kitchen with utility space
-
Multiple bathrooms
-
Balcony facing east
Why it’s great:
The 30×55 east facing 4BHK plan is perfect for joint families and provides plenty of space for comfortable living.
5. 30×50 East Facing 1BHK Ground Floor House Plan (1500 Sq Ft)

This simple yet elegant layout is perfect for couples or small families who want a budget-friendly house.
Layout includes:
-
1 spacious bedroom
-
East-facing living room
-
Dining space connected to kitchen
-
Vastu-compliant southeast kitchen
-
Common bathroom
-
Parking space in front
Why it’s great:
The 30×50 east facing 1BHK plan offers a spacious layout with the possibility of future expansion.
6. 25×25 East Facing 2BHK Ground Floor House Plan (625 Sq Ft)

This compact design is ideal for small plots and urban housing needs.
Layout includes:
-
2 compact bedrooms
-
East-facing living hall
-
Small dining space
-
Efficient southeast kitchen
-
Common bathroom
-
Compact entrance area
Why it’s great:
The 25×25 east facing house plan maximizes every square foot, making it ideal for budget-friendly homes.
7. 21×55 East Facing 2BHK Ground Floor House Plan (1155 Sq Ft)

This long-plot design is suitable for narrow plots with extended depth.
Layout includes:
-
2 spacious bedrooms
-
Comfortable east-facing living room
-
Dining area in center
-
Modern southeast kitchen
-
Two bathrooms
-
Rear utility area
Why it’s great:
The 21×55 east facing 2BHK plan uses plot depth effectively while maintaining privacy and ventilation.
8. 25×47 East Facing 3BHK First Floor House Plan (1175 Sq Ft)

This well-designed first-floor layout is ideal for medium-sized families seeking extra bedroom space.
Layout includes:
-
3 comfortable bedrooms
-
East-facing living area
-
Dining space
-
Modern kitchen setup
-
Two bathrooms
-
Balcony or terrace space
Why it’s great:
The 25×47 east facing 3BHK plan provides a balanced layout with ample room for family living.
9. 23×50 East Facing 4BHK Ground Floor House Plan (1150 Sq Ft)

This layout is ideal for large families who need multiple bedrooms in a single-floor home.
Layout includes:
-
4 functional bedrooms
-
Spacious east-facing living room
-
Dining area in center
-
Modern kitchen layout
-
Multiple bathrooms
-
Front parking space
Why it’s great:
The 23×50 east facing 4BHK plan offers maximum bedroom capacity while maintaining proper space utilization.
10. 19×35 East Facing 2BHK Ground Floor House Plan (665 Sq Ft)

This compact yet practical house layout is suitable for small residential plots.
Layout includes:
-
2 bedrooms
-
East-facing living room
-
Dining area near kitchen
-
Vastu-friendly southeast kitchen
-
Common bathroom
-
Small front entrance area
Why it’s great:
The 19×35 east facing 2BHK plan is perfect for homeowners looking for a functional and affordable house design.
10 Popular East Facing House Plans in Jharkhand 2026
1. 2BHK East Facing House Plan
A 2bhk house plan east facing is ideal for nuclear families who want a compact and efficient home layout.
Key Layout Features
-
Entrance facing east direction
-
Living room placed in the northeast
-
Kitchen located in the southeast corner
-
Two bedrooms with proper ventilation
-
Bathroom in the northwest area
Why It Works Well
This type of east facing house design is perfect for urban areas where plot sizes are limited. It provides comfort while keeping construction costs manageable.
2. Modern East Facing Duplex House Plans
An east facing duplex house plans layout is suitable for families who want a multi-floor home with modern facilities.
Ground Floor Layout
-
Living hall near entrance
-
Dining area in the center
-
Guest bedroom
-
Kitchen in southeast
First Floor Layout
-
Master bedroom
-
Kids bedroom
-
Balcony facing east
-
Family lounge
Duplex homes provide better privacy and space for growing families.
3. 30x40 East Facing Plan
The 30x40 east facing plan is one of the most popular house layouts in India.
Typical Design
-
Car parking in front
-
Spacious living room
-
Two bedrooms
-
Kitchen with dining area
-
Utility space at the back
Benefits of This Plan
-
Budget friendly construction
-
Perfect for small to medium families
-
Efficient use of space
4. Ground Floor East Facing House
A ground floor east facing house is a good option for families who prefer single-floor living.
Key Design Elements
-
Large east-facing entrance
-
Living room in the front
-
Kitchen in southeast direction
-
Bedrooms in southwest and northwest
Advantages
-
Easy accessibility
-
Lower construction cost
-
Ideal for elderly family members
5. 30 50 House Plan 3BHK East Facing
The 30 50 house plan 3bhk east facing is perfect for medium-sized families who want extra space.
Layout Features
-
Spacious living hall
-
Three bedrooms
-
Dining space in the center
-
Kitchen with utility area
-
Two bathrooms
This layout allows comfortable living while maintaining proper ventilation.
6. 40X60 East Facing Plan
A 40X60 East Facing Plan is ideal for luxury houses or villas.
Design Highlights
-
Large front garden
-
Parking area for multiple cars
-
Four bedrooms
-
Modern modular kitchen
-
Home office or study room
Best For
Families who want spacious homes with premium amenities.
7. 19 * 35 House Plan East Facing
A 19 * 35 house plan east facing works well for compact residential plots.
Layout Idea
-
Small living room
-
Two bedrooms
-
Open kitchen
-
One bathroom
-
Space for staircase
Why Choose This Plan
-
Suitable for small urban plots
-
Budget-friendly construction
-
Smart use of limited space
8. East Facing House Vastu Plan
An east facing house vastu plan follows traditional architectural guidelines to maintain harmony and positive energy.
Important Vastu Tips
-
Main door should be in east or northeast
-
Kitchen should be in southeast
-
Master bedroom in southwest
-
Pooja room in northeast
9. Contemporary East Facing House Design
Modern homeowners prefer stylish east facing house design that focuses on aesthetics and natural lighting.
Modern Design Elements
-
Open living and dining layout
-
Large glass windows
-
Skylights for natural light
-
Minimalist interior design
This type of house design is trending in 2026.
10. Best East Facing House Plan for Future Expansion
The best east facing house plan should allow flexibility for future construction.
Smart Planning Tips
-
Leave space for staircase
-
Plan terrace for additional floors
-
Keep open area for ventilation
-
Provide parking space in front
This helps homeowners expand their house later if needed.
Conclusion
The optimal east facing house plan selection process requires evaluation of three factors which include property dimensions and household requirements and anticipated development needs. From compact homes like 19 * 35 house plan east facing to spacious layouts like 40X60 East Facing Plan, there are many design options available for homeowners in Jharkhand.
The combination of traditional Vastu principles and modern architectural design in contemporary house planning creates energy-efficient homes with attractive visual aesthetics and comfortable living spaces. The 2026 home construction process will benefit from your planning efforts whether you choose a 2bhk house plan east facing or a 30x40 east facing plan or a luxury duplex.
Why HouseGyan?
HouseGyan is a trusted platform for practical, vastu-compliant, and modern house planning solutions. It offers detailed east facing house plan, duplex layouts, and customized designs tailored for Indian plots. Whether you need a 2BHK, 3BHK layout or a complete east facing house vastu plan, HouseGyan provides expert guidance, clear floor plans, and budget-friendly ideas—making your home building journey simple, smart, and stress-free.
FAQs
1. Why is an east facing house plan considered good?
An east facing house plan allows sunlight to enter the house in the morning, which is believed to bring positive energy and good health.
2. Which direction should the kitchen be in an east facing house?
The kitchen should ideally be placed in the southeast direction.
3. Is a 30x40 east facing plan good for a 2BHK house?
Yes, a 30x40 east facing plan is perfect for building a comfortable 2BHK house with parking and open space.
4. Can I build a duplex on a 30x50 east facing plot?
Yes, a 30 50 house plan 3bhk east facing can easily support a duplex house with multiple bedrooms.
5. Is a 19×35 east facing house plan practical?
Yes, a 19 * 35 house plan east facing works well for compact homes with efficient space usage.
6. What is the best bedroom direction in an east facing house?
The master bedroom should ideally be located in the southwest direction according to Vastu.
House Gyan all services
Loading...HouseGyan is your trusted platform for everything related to home design, construction, and planning. We offer a complete range of services to help you build your dream home with ease and confidence.
Our Services
- Price Calculators: Plan your budget with our tools like Home Loan EMI Calculator, Tile Price Calculator, Brick Cost Calculator, and more.
- House Drawings & Plans: Explore ready-made house plans or get custom house drawings designed to fit your needs perfectly.
- Elevation Designs: Choose from modern elevation designs or request a custom elevation design for a unique look.
- Accurate Estimates: Get clear and accurate construction cost estimates to plan better.
- Shubh Muhurat & Vastu Tips: Follow our Shubh Muhurat and Vastu guidelines to bring positive energy and harmony to your home.
- DIY Home Repair Guides: Learn easy DIY tips to fix and maintain your home efficiently.
- Interior Design Ideas: Discover creative ideas for living rooms, bedrooms, kitchens, balconies, and more.
Why Choose HouseGyan?
- All-in-One Platform: From house plans to price calculators, we cover it all.
- Custom Solutions: Get personalized designs and estimates for your home.
- Expert Guidance: Access professional tips on Vastu, Shubh Muhurat, and construction materials.
- User-Friendly: Our tools and content are designed to simplify home building for everyone.

The information contained on Housegyan.com is provided for general informational purposes only. While we strive to ensure that the content on our website is accurate and current, we make no warranties or representations of any kind, express or implied, about the completeness, accuracy, reliability, suitability, or availability with respect to the website or the information, products, services, or related graphics contained on the website for any purpose. Housegyan.com will not be liable for any loss or damage including, without limitation, indirect or consequential loss or damage, or any loss or damage whatsoever arising from loss of data or profits arising out of, or in connection with, the use of this website.
Third party logos and marks are registered trademarks of their respective owners. All rights reserved.










