Table Of Content ☰
- 1. Why 1500 – 2500 Sqft House Plans Are Popular in India
-
2. Top 10 1500 – 2500 Sqft House Plans in India
- 2.1 30X50 East Facing 2BHK Ground Floor House Plan (1500 Sqft)
- 2.2 40X60 East Facing 3BHK Ground Floor House Plan (2400 Sqft)
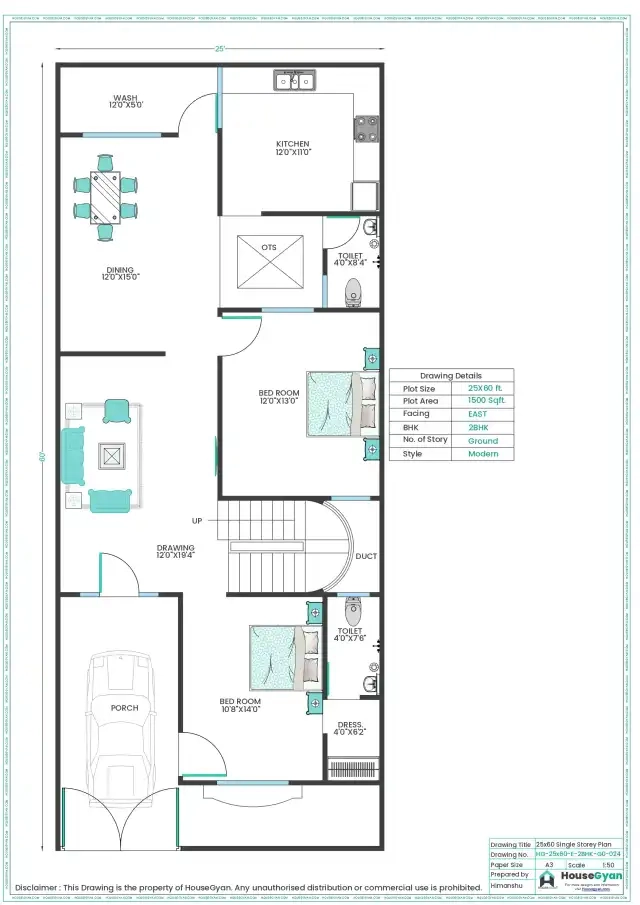
- 2.3 25X60 East Facing 2BHK Ground Floor House Plan (1500 Sqft)
- 2.4 35X60 East Facing 3BHK Ground Floor House Plan (2100 Sqft)
- 2.5 30X70 West Facing 3BHK Ground Floor House Plan (2100 Sqft)
- 2.6 30X50 North Facing 3BHK Ground Floor House Plan (1500 Sqft)
- 2.7 26X60 East Facing 2BHK Ground Floor House Plan (1560 Sqft)
- 2.8 30X50 East Facing 1BHK Ground Floor House Plan (1500 Sqft)
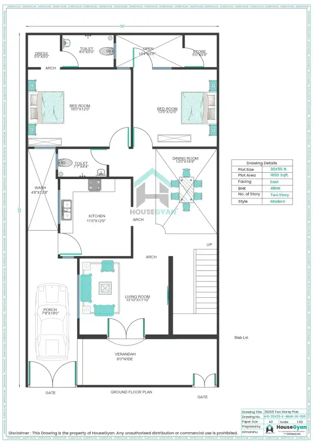
- 2.9 30X55 East Facing 4BHK First Floor House Plan (1650 Sqft)
- 2.10 40X60 South Facing 3BHK Ground Floor House Plan (2400 Sqft)
- 3. Key Design Considerations for Indian Homes
- 4. Benefits of Choosing a Vastu-Compliant House Plan
- 5. FAQs on House Plans in India
- 6. Conclusion – Finding the Perfect House Plan
In today’s rapidly evolving real estate market, house plan play a major role in determining comfort, functionality, and long-term value. Among all available plot sizes, 1500 – 2500 sqft house plans have emerged as the most sought-after in India. These plans strike the perfect balance between affordability and spacious living, making them ideal for middle-class families as well as those looking for stylish, modern homes.
Whether you prefer an East-facing Vastu-compliant 2BHK, a luxurious 3BHK with balconies, or even a spacious 4BHK with a first-floor layout, these plans cater to a wide range of needs. Let’s dive deep into why this size category is so popular and explore the Top 10 Most Popular 1500 – 2500 sqft House Plans in India.
Why 1500 – 2500 Sqft House Plans Are Popular in India
Perfect Balance of Space and Budget
Homes in this size range are big enough to accommodate families comfortably without pushing budgets too high. Construction costs remain manageable while ensuring premium space allocation.
Flexibility for Joint and Nuclear Families
Whether it’s a nuclear family of four or a joint family of six to eight, these house plans allow flexible designs, from compact 2BHK homes to spacious 4BHK duplexes.
Vastu-Friendly Orientations (East, West, North, South Facing)
Most Indian families prefer Vastu-compliant layouts. In this range, you’ll find a variety of East, North, West, and South-facing house plans, each with unique benefits for health, wealth, and positive energy.
Top 10 1500 – 2500 Sqft House Plans in India
1. 30X50 East Facing 2BHK Ground Floor House Plan (1500 Sqft)

This is one of the most popular layouts for small families. With 2 spacious bedrooms, a living room, modular kitchen, and attached bathrooms, it’s a practical design for those looking to build their first home.
2. 40X60 East Facing 3BHK Ground Floor House Plan (2400 Sqft)

A perfect choice for families seeking comfort and space. This plan offers three bedrooms, an open kitchen, dining hall, living area, and parking space, making it ideal for urban locations.
3. 25X60 East Facing 2BHK Ground Floor House Plan (1500 Sqft)

This design is compact yet highly functional. With smart utilization of narrow plot dimensions, it ensures proper ventilation and sunlight while keeping the interiors cozy.
4. 35X60 East Facing 3BHK Ground Floor House Plan (2100 Sqft)

Great for growing families, this plan features 3 bedrooms, a spacious hall, modern kitchen, and a pooja room. The design offers the right blend of tradition and modernity.
5. 30X70 West Facing 3BHK Ground Floor House Plan (2100 Sqft)

This plan is ideal for plots facing the west. It typically includes a big veranda, airy bedrooms, and stylish interiors, balancing functionality with aesthetics.
6. 30X50 North Facing 3BHK Ground Floor House Plan (1500 Sqft)

A North-facing house is considered lucky for business-minded families. This plan usually includes 3 bedrooms, a large living hall, and a compact garden area.
7. 26X60 East Facing 2BHK Ground Floor House Plan (1560 Sqft)

This plan is perfect for smaller families who want efficient space usage. With two bedrooms and smart kitchen placement, it ensures maximum comfort.
8. 30X50 East Facing 1BHK Ground Floor House Plan (1500 Sqft)

A simple yet stylish plan for bachelors, newly married couples, or rental purposes. Despite being a 1BHK, it offers spacious interiors with modern amenities.
9. 30X55 East Facing 4BHK First Floor House Plan (1650 Sqft)

Ideal for joint families, this design features 4 bedrooms, a first-floor layout, and a family lounge. It’s perfect for those who need privacy and shared spaces at the same time.
10. 40X60 South Facing 3BHK Ground Floor House Plan (2400 Sqft)

Though south-facing homes are less common, this plan is gaining popularity for its modern appeal, large bedrooms, open kitchen, and outdoor garden area.
Key Design Considerations for Indian Homes
Importance of Natural Ventilation & Sunlight
Indian homes must be designed to allow cross-ventilation and ample sunlight to reduce electricity costs and maintain good health.
Space Optimization for Modern Living
With nuclear families becoming common, open floor concepts, modular kitchens, and multipurpose rooms are in high demand.
Parking, Garden & Balcony Options
Many 1500–2500 sqft plans include car parking, landscaped gardens, and balconies to enhance comfort and lifestyle.
Benefits of Choosing a Vastu-Compliant House Plan
Health, Wealth & Positive Energy
Vastu-oriented homes promote peace of mind, prosperity, and overall well-being.
Better Resale Value
Buyers in India often prefer Vastu-compliant homes, ensuring a higher resale value in the future.
|
HouseGyan Offering | ||
FAQs on House Plans in India
Q1. What is the ideal house size for a family of 4 in India?
A 1500–2000 sqft home with 2–3 bedrooms is perfect for a family of four.
Q2. Which facing house plan is best as per Vastu?
East and North-facing homes are most popular in India as per Vastu.
Q3. Can a 1500 Sqft plot fit a duplex?
Yes, with smart planning, a 1500 sqft plot can be designed as a duplex.
Q4. How much does it cost to build a 2000 Sqft house in India?
Depending on location and materials, costs range between ₹30–₹50 lakhs.
Q5. Which is better: Ground floor or duplex?
It depends on family needs—ground floors are easier for elderly people, while duplexes provide more privacy.
Q6. Do modern Indian house plans include parking?
Yes, most 1500–2500 sqft plans include parking for one or two vehicles.
Conclusion – Finding the Perfect House Plan
Choosing the right house plan is one of the most important steps in building your dream home. The Top 10 Most Popular 1500 – 2500 Sqft House Plans in India provide excellent options, whether you’re a small family looking for a cozy 2BHK or a larger family seeking a spacious 4BHK. With Vastu-compliant designs, smart layouts, and budget-friendly options, these plans are tailored for modern Indian living.














