40X80 North East Facing 1BHK Ground Floor House Plan | 3200 Sqft Plot Floor Plan
Description
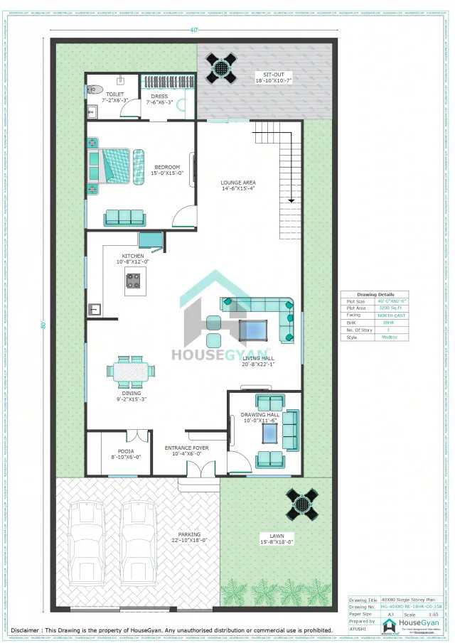
This 40x80 1BHK house plan is a perfect blend of space, comfort, and modern design, built on a large 3200 sq. ft. plot with a North-East facing layout. The plan is thoughtfully designed to provide a spacious and well-organized living experience.
The layout includes a dedicated parking area for two cars, a beautifully planned front lawn, and a welcoming entrance foyer. Inside, you get a separate drawing hall and a large living hall, offering ample space for relaxation and guest gatherings.
The dining area is centrally located and seamlessly connects to the modern kitchen, ensuring smooth functionality. A comfortable bedroom with attached dress and toilet space enhances privacy and convenience. Additionally, a pooja room is included to maintain a spiritual corner in the home.
The design also features a lounge/sitting area and sit-out space, making the home feel open and luxurious. With proper ventilation, natural light, and surrounding green areas, this plan is ideal for those who want a spacious, modern single-floor home with premium features.
Whether you're looking to Order House Drawing for your dream home or want a compact, modern layout, this 3200 sqft floor plan is an excellent choice for an West-facing plot. To get an rough idea of the expenses, use our House Construction Price Calculator to estimate your costs effectively.
Ratings & Reviews
House Gyan all services
Loading...HouseGyan is your trusted platform for everything related to home design, construction, and planning. We offer a complete range of services to help you build your dream home with ease and confidence.
Our Services
- Price Calculators: Plan your budget with our tools like Home Loan EMI Calculator, Tile Price Calculator, Brick Cost Calculator, and more.
- House Drawings & Plans: Explore ready-made house plans or get custom house drawings designed to fit your needs perfectly.
- Elevation Designs: Choose from modern elevation designs or request a custom elevation design for a unique look.
- Accurate Estimates: Get clear and accurate construction cost estimates to plan better.
- Shubh Muhurat & Vastu Tips: Follow our Shubh Muhurat and Vastu guidelines to bring positive energy and harmony to your home.
- DIY Home Repair Guides: Learn easy DIY tips to fix and maintain your home efficiently.
- Interior Design Ideas: Discover creative ideas for living rooms, bedrooms, kitchens, balconies, and more.
Why Choose HouseGyan?
- All-in-One Platform: From house plans to price calculators, we cover it all.
- Custom Solutions: Get personalized designs and estimates for your home.
- Expert Guidance: Access professional tips on Vastu, Shubh Muhurat, and construction materials.
- User-Friendly: Our tools and content are designed to simplify home building for everyone.

The information contained on Housegyan.com is provided for general informational purposes only. While we strive to ensure that the content on our website is accurate and current, we make no warranties or representations of any kind, express or implied, about the completeness, accuracy, reliability, suitability, or availability with respect to the website or the information, products, services, or related graphics contained on the website for any purpose. Housegyan.com will not be liable for any loss or damage including, without limitation, indirect or consequential loss or damage, or any loss or damage whatsoever arising from loss of data or profits arising out of, or in connection with, the use of this website.
Third party logos and marks are registered trademarks of their respective owners. All rights reserved.













