40X60 South West Facing 4BHK First Floor House Plan | 2400 Sqft Plot Floor Plan
Description
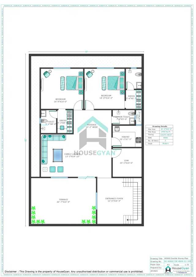
Your search for the perfect 40x60 south west facing 4BHK house plan ends here! This 2400 sqft design includes4 bedrooms, a hall, and 4 bathrooms, offering comfort with efficient use of space.
At HouseGyan, we specialize in Custom House Drawings for 40x60 plots. Whether you dream of a modern double-floor home or a stylish multi-storey design, we’ll create the ideal plan for you. Want to know the estimated cost of building this house? Use our House Construction Price Calculator today and plan your budget smartly.
Ratings & Reviews
House Gyan all services
Loading...
The information contained on Housegyan.com is provided for general informational purposes only. While we strive to ensure that the content on our website is accurate and current, we make no warranties or representations of any kind, express or implied, about the completeness, accuracy, reliability, suitability, or availability with respect to the website or the information, products, services, or related graphics contained on the website for any purpose. Housegyan.com will not be liable for any loss or damage including, without limitation, indirect or consequential loss or damage, or any loss or damage whatsoever arising from loss of data or profits arising out of, or in connection with, the use of this website.
Third party logos and marks are registered trademarks of their respective owners. All rights reserved.














