40X60 South West Facing 2BHK Ground Floor House Plan | 2400 Sqft Plot Floor Plan
Description
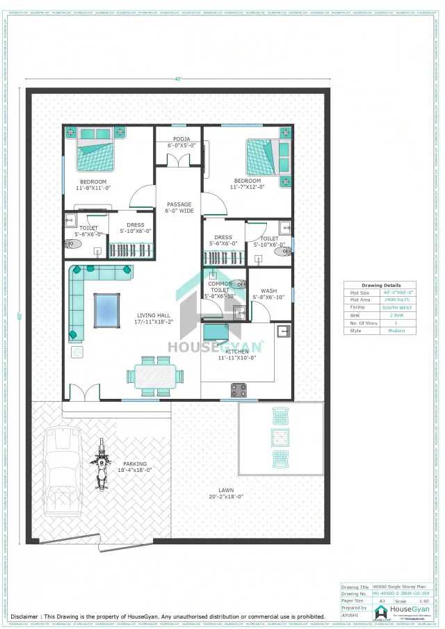
This 40X60 south west facing 2BHK ground floor house plan is designed to maximize space efficiently within a 2400 sqft plot. This house plan consists of 2 bedrooms, 1 Hall and 2 bathrooms within 2400 square feet. If you're looking for a 40X60 house plan, you've come to the right place. Here at HouseGyan architects, we specialize in designing and creating floor plans for all types of 40X60 plot size houses. Whether you're looking for a traditional multi stories home or a more modern ranch-style home, we can help you create the perfect 40*60 floor plan for your needs.
Whether you're looking to build your dream home with a Custom House Drawing or want a compact, modern layout, this 2400 sqft floor plan is an excellent choice for a south west facing plot. To get an rough idea of the expenses, use our House Construction Price Calculator to estimate your costs effectively.
Ratings & Reviews
House Gyan all services
Loading...40X60 House Plan | 2400 Sqft Plot House Plan | 2BHK South West Facing Ground Floor Plan
This 40X60 South West Facing 2BHK Ground Floor House Plan is thoughtfully designed on a 2400 sq ft plot, offering spacious living areas, open green zones, and a vastu-considered layout. It is an excellent option for families who prefer open spaces, comfort, and a premium ground-floor home.
40X60 House Plan – South West Facing Ground Floor Layout
The South-West facing orientation is planned with balanced zoning to ensure comfort, ventilation, and functionality. The ground floor layout includes:
2 Spacious Bedrooms designed for privacy and relaxation
3 Toilets (attached + common) for added convenience
Living Room as the main family interaction space
Dining Area connected smoothly with the kitchen
Kitchen with efficient workspace and storage
Pooja Room dedicated to spiritual activities
Wash Area for daily household needs
Parking Space for safe and easy vehicle access
Lawn Area enhancing openness and outdoor comfort
Green Area adding natural freshness and ventilation
This house plan layout ensures a perfect balance between indoor comfort and outdoor living.
Why Choose a 40X60 House Plan?
A 40X60 plot size is one of the most preferred residential plot dimensions for spacious homes. Key benefits include:
Ideal for luxury 2BHK ground floor homes
Ample scope for lawn, garden, and open areas
Excellent ventilation and natural lighting
Vastu-friendly planning options
Suitable for premium independent houses
More 40X60 House Plan Options
At HouseGyan, you can explore a wide range of 40X60 house plan designs, such as:
2BHK, 3BHK, and 4BHK layouts
Ground floor, duplex, and multi-floor plans
Vastu-compliant North, East, West, and South-facing homes
Modern and traditional architectural styles
Find More House Plans at HouseGyan
HouseGyan provides:
Professional 2D & 3D house drawings
Customized layouts as per your plot and lifestyle
Vastu-aligned architectural planning
Expert consultation for residential construction
Get Your Custom 40X60 House Plan Today!
Want to modify room sizes, expand green areas, or redesign the layout?
HouseGyan offers fully custom house plans tailored to your plot size, family needs, and budget.
Final Thoughts
This 40X60 South West Facing 2BHK Ground Floor House Plan on a 2400 sq ft plot is perfect for those who value spacious living, greenery, and comfort. With lawn, green area, pooja room, and ample parking, it delivers a premium and peaceful home experience.
Explore more 40X60 house plans and customized designs only at HouseGyan!

The information contained on Housegyan.com is provided for general informational purposes only. While we strive to ensure that the content on our website is accurate and current, we make no warranties or representations of any kind, express or implied, about the completeness, accuracy, reliability, suitability, or availability with respect to the website or the information, products, services, or related graphics contained on the website for any purpose. Housegyan.com will not be liable for any loss or damage including, without limitation, indirect or consequential loss or damage, or any loss or damage whatsoever arising from loss of data or profits arising out of, or in connection with, the use of this website.
Third party logos and marks are registered trademarks of their respective owners. All rights reserved.













