40X60 South Facing 4BHK Ground Floor House Plan | 2400 Sqft Plot Floor Plan
Description
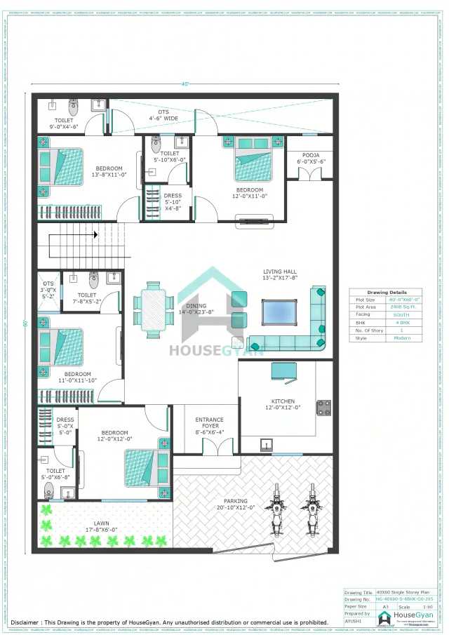
This 40X60 south-facing 4BHK ground floor house plan is designed to maximize space efficiently within a 2400 sqft plot. This house plan consists of 4 bedrooms, 1 Hall and 4 bathrooms within 2400 square feet. If you're looking for a 40X60 house plan, you've come to the right place. Here at HouseGyan architects, we specialize in designing and creating floor plans for all types of 40X60 plot size houses. Whether you're looking for a traditional multi stories home or a more modern ranch-style home, we can help you create the perfect 40*60 floor plan for your needs.
Whether you're looking to build your dream home with a Custom House Drawing or want a compact, modern layout, this 2400 sqft floor plan is an excellent choice for a south-facing plot. To get an rough idea of the expenses, use our House Construction Price Calculator to estimate your costs effectively.
Ratings & Reviews
House Gyan all services
Loading...40X60 House Plan | 2400 Sqft Plot House Plan | 4BHK South Facing Ground Floor Plan
This 40X60 South Facing 4BHK Ground Floor House Plan is designed on a 2400 sq ft plot, offering a spacious, vastu-friendly, and luxury-oriented layout. This house plan is ideal for large families looking for comfort, openness, and premium living on a single floor.
40X60 House Plan – South Facing Ground Floor Layout
The South-facing layout is carefully planned to balance sunlight, ventilation, and functional zoning. This ground floor house plan includes:
4 Spacious Bedrooms ensuring privacy and comfort
4 Toilets for hassle-free daily living
Entrance Foyer for a grand and welcoming entry
Large Living Hall for family gatherings
Dining Area connected seamlessly with living space
Modern Kitchen with efficient workflow
Pooja Room placed as per vastu principles
Open-to-Sky (OTS) Area for natural light and ventilation
Internal Staircase for future floor expansion
Dedicated Parking Space for vehicles
Front Lawn Area adding greenery and elegance
The layout ensures excellent circulation, openness, and privacy across all zones.
Why Choose a 40X60 House Plan?
A 40X60 plot size is one of the most popular choices for spacious homes. Key benefits include:
Ideal for 4BHK luxury ground floor houses
Ample space for lawn, parking, and OTS
Perfect for joint or large families
Easy customization and future expansion
Premium living with better ventilation and light
This plot size supports both functionality and elegance.
More 40X60 House Plan Options
At HouseGyan, you can explore multiple 40X60 house plan designs, including:
3BHK & 4BHK layouts
Ground floor, duplex, and villa-style homes
Vastu-compliant South, East, and North facing plans
Modern and traditional architectural styles
Each design focuses on comfort and efficient space utilization.
Find More House Plans at HouseGyan
HouseGyan offers:
Ready-made house plans
Custom floor plan solutions
Vastu-based house planning
Professional architectural support
All plans are designed to meet modern lifestyle needs.
Get Your Custom 40X60 House Plan Today!
Want to customize room sizes, add a lift, or redesign open spaces?
HouseGyan provides fully custom house plans based on your plot size, budget, and family requirements.
Final Thoughts
This 40X60 South Facing 4BHK Ground Floor House Plan on a 2400 sq ft plot is an excellent choice for families seeking a spacious, elegant, and future-ready home. With features like an entrance foyer, lawn, OTS, pooja room, and ample parking, it delivers both luxury and practicality.
Explore more 40X60 house plans and customized home designs only at HouseGyan!

The information contained on Housegyan.com is provided for general informational purposes only. While we strive to ensure that the content on our website is accurate and current, we make no warranties or representations of any kind, express or implied, about the completeness, accuracy, reliability, suitability, or availability with respect to the website or the information, products, services, or related graphics contained on the website for any purpose. Housegyan.com will not be liable for any loss or damage including, without limitation, indirect or consequential loss or damage, or any loss or damage whatsoever arising from loss of data or profits arising out of, or in connection with, the use of this website.
Third party logos and marks are registered trademarks of their respective owners. All rights reserved.













