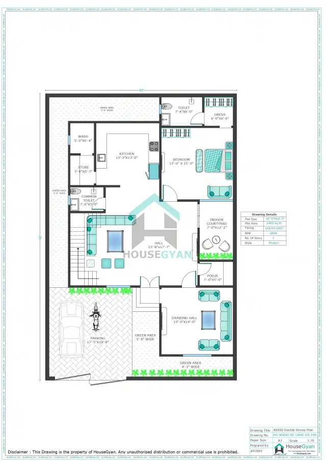
40X60 South East Facing 1BHK Ground Floor House Plan | 2400 Sqft Plot Floor Plan
Description
This 40x60 south east-facing ground floor plan offers a smart 1BHK layout within 2400 sqft.
It includes 1 bedrooms, 1 hall, and 1 bathrooms, designed to maximize every corner of your plot. At HouseGyan Architects, we help you design your dream home with a Custom House Drawing that perfectly matches your needs.
From modern layouts to traditional designs, we provide multiple options for 40x60 plots. To plan your expenses better, check out our House Construction Price Calculator—a simple tool to get a quick cost estimate before you begin.
Ratings & Reviews
House Gyan all services
Loading...
The information contained on Housegyan.com is provided for general informational purposes only. While we strive to ensure that the content on our website is accurate and current, we make no warranties or representations of any kind, express or implied, about the completeness, accuracy, reliability, suitability, or availability with respect to the website or the information, products, services, or related graphics contained on the website for any purpose. Housegyan.com will not be liable for any loss or damage including, without limitation, indirect or consequential loss or damage, or any loss or damage whatsoever arising from loss of data or profits arising out of, or in connection with, the use of this website.
Third party logos and marks are registered trademarks of their respective owners. All rights reserved.













