40X60 Northwest Facing 2BHK Ground Floor House Plan | 2400 Sqft Plot Floor Plan
Description
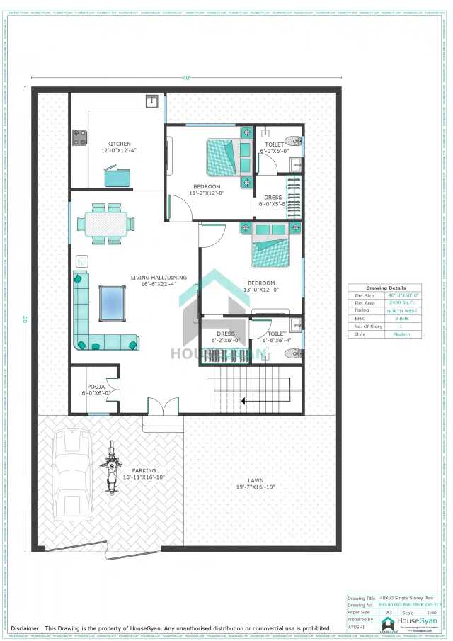
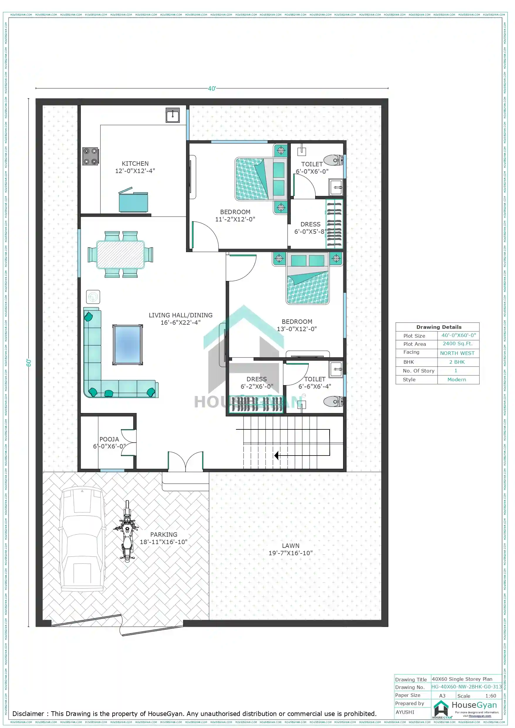
This 40X60 northwest facing 2BHK ground floor house plan is designed to maximize space efficiently within a 2400 sqft plot. This house plan consists of 2 bedrooms, 1 Hall and 2 bathrooms within 2400 square feet. If you're looking for a 40X60 house plan, you've come to the right place. Here at HouseGyan architects, we specialize in designing and creating floor plans for all types of 40X60 plot size houses. Whether you're looking for a traditional multi stories home or a more modern ranch-style home, we can help you create the perfect 40*60 floor plan for your needs.
Whether you're looking to build your dream home with a Custom House Drawing or want a compact, modern layout, this 2400 sqft floor plan is an excellent choice for a northwest-facing plot. To get an rough idea of the expenses, use our House Construction Price Calculator to estimate your costs effectively.
Ratings & Reviews
House Gyan all services
Loading...40X60 House Plan | 2400 Sqft Plot House Plan | 2BHK Northwest Facing Ground Floor Plan
This 40X60 Northwest Facing 2BHK Ground Floor House Plan is thoughtfully designed for a 2400 sq ft plot, offering spacious rooms, green open areas, and a comfortable single-floor living layout. It is ideal for families looking for simplicity, functionality, and ample outdoor space.
40X60 House Plan – Northwest Facing Ground Floor Layout
The Northwest-facing orientation ensures good ventilation, balanced daylight, and a pleasant indoor environment throughout the day. The ground floor layout includes:
2 Bedrooms designed for comfort and privacy
Toilet planned for easy accessibility
Living Area as the main family gathering space
Dining Area connected seamlessly with the living space
Kitchen with practical layout and storage space
Pooja Room for daily spiritual activities
Parking Area with sufficient space for vehicles
Lawn Area enhancing the overall aesthetics
Green Area improving ventilation and natural freshness
This house plan layout focuses on peaceful living with a strong connection to open spaces.
Why Choose a 40X60 House Plan?
A 40X60 plot size is highly preferred due to its flexibility and spaciousness:
Ideal for comfortable 2BHK ground floor homes
Plenty of space for lawn, garden, and green areas
Suitable for future floor expansion
Better natural lighting and airflow
Efficient planning with low congestion
More 40X60 House Plan Options
At HouseGyan, you can explore multiple 40X60 house plan designs, such as:
Ground floor & duplex house plans
Vastu-compliant layouts
Modern 2D floor plans & 3D elevations
Customized designs based on family needs
Find More House Plans at HouseGyan
HouseGyan offers:
Professional 2D & 3D house plans
Fast delivery in PDF & CAD formats
Vastu-based architectural planning
Expert guidance for residential construction
Get Your Custom 40X60 House Plan Today!
Want to adjust room sizes or add more green space?
HouseGyan provides custom house plan services according to your plot size, lifestyle, and budget.
Final Thoughts
This 40X60 Northwest Facing 2BHK Ground Floor House Plan on a 2400 sq ft plot offers a perfect balance of comfort, open space, and practicality. With lawn, green area, pooja room, and spacious living zones, it is an excellent choice for peaceful family living.
Explore more 40X60 house plans and modern 2BHK designs only at HouseGyan!

The information contained on Housegyan.com is provided for general informational purposes only. While we strive to ensure that the content on our website is accurate and current, we make no warranties or representations of any kind, express or implied, about the completeness, accuracy, reliability, suitability, or availability with respect to the website or the information, products, services, or related graphics contained on the website for any purpose. Housegyan.com will not be liable for any loss or damage including, without limitation, indirect or consequential loss or damage, or any loss or damage whatsoever arising from loss of data or profits arising out of, or in connection with, the use of this website.
Third party logos and marks are registered trademarks of their respective owners. All rights reserved.













