40X60 North Facing 4BHK Ground Floor House Plan | 2400 Sqft Plot Floor Plan
Description
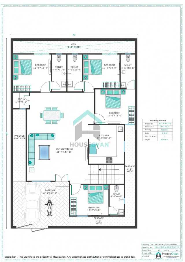
This 40X60 north-facing 4BHK ground floor house plan is designed to maximize space efficiently within a 2400 sqft plot. This house plan consists of 4 bedrooms, 1 Hall and 4 bathrooms within 2400 square feet. If you're looking for a 40X60 house plan, you've come to the right place. Here at HouseGyan architects, we specialize in designing and creating floor plans for all types of 40X60 plot size houses. Whether you're looking for a traditional multi stories home or a more modern ranch-style home, we can help you create the perfect 40*60 floor plan for your needs.
Whether you're looking to build your dream home with a Custom House Drawing or want a compact, modern layout, this 2400 sqft floor plan is an excellent choice for a north-facing plot. To get an rough idea of the expenses, use our House Construction Price Calculator to estimate your costs effectively.
Ratings & Reviews
House Gyan all services
Loading...40X60 North Facing 4BHK Ground Floor House Plan | 2400 Sqft Plot Floor Plan
This 40X60 North Facing 4BHK Ground Floor House Plan is carefully designed for a 2400 sq ft plot, offering spacious rooms, vastu-compliant planning, and a premium single-floor living experience. It is ideal for large families who want comfort, privacy, and well-organized spaces on the ground floor.
40X60 House Plan – North Facing Ground Floor Layout
The north-facing orientation is known for bringing positive energy, balanced daylight, and excellent ventilation. This thoughtfully planned ground floor layout includes:
Parking Area for safe and convenient vehicle space
Green Area enhancing natural beauty and fresh airflow
Living Hall serving as a spacious family gathering zone
Pooja Room dedicated to spiritual activities
Kitchen designed for efficient cooking and storage
4 Bedrooms ensuring privacy for each family member
4 Toilets (attached) for maximum convenience
Dress Area attached to bedrooms for added comfort
The house plan layout focuses on openness, smooth circulation, and functional zoning.
Why Choose a 40X60 North Facing House Plan?
A 40X60 plot size is perfect for luxury ground floor homes and offers many benefits:
Ideal for spacious 4BHK house plans
Vastu-friendly north-facing orientation
Comfortable single-floor living for all age groups
Excellent scope for green areas and future expansion
Suitable for independent houses or premium villas
Efficient use of large plot area
More 40X60 House Plan Options at HouseGyan
At HouseGyan, you can explore multiple 40X60 house plan designs, such as:
Ground floor & duplex house plans
Vastu-compliant residential layouts
Modern 2D floor plans & attractive 3D elevations
Fully customized house drawings as per requirements
Why Choose HouseGyan for Your House Plan?
HouseGyan provides:
Professional 2D & 3D architectural designs
Fast delivery in PDF & CAD formats
Vastu-aligned planning for Indian homes
Expert guidance for residential construction
Get Your Custom 40X60 House Plan Today!
Want to modify room sizes, add more green space, or plan additional floors?
HouseGyan offers custom house plan solutions based on your plot size, budget, and lifestyle needs.
Final Thoughts
This 40X60 North Facing 4BHK Ground Floor House Plan on a 2400 sq ft plot delivers a perfect mix of luxury, functionality, and vastu compliance. With spacious bedrooms, attached toilets, dress areas, green space, and parking, it is an excellent choice for modern large-family living.
Explore more 40X60 house plans and premium 4BHK designs only at HouseGyan!

The information contained on Housegyan.com is provided for general informational purposes only. While we strive to ensure that the content on our website is accurate and current, we make no warranties or representations of any kind, express or implied, about the completeness, accuracy, reliability, suitability, or availability with respect to the website or the information, products, services, or related graphics contained on the website for any purpose. Housegyan.com will not be liable for any loss or damage including, without limitation, indirect or consequential loss or damage, or any loss or damage whatsoever arising from loss of data or profits arising out of, or in connection with, the use of this website.
Third party logos and marks are registered trademarks of their respective owners. All rights reserved.













