40X60 North East Facing 2BHK Ground Floor House Plan | 2400 Sqft Plot Floor Plan
Description
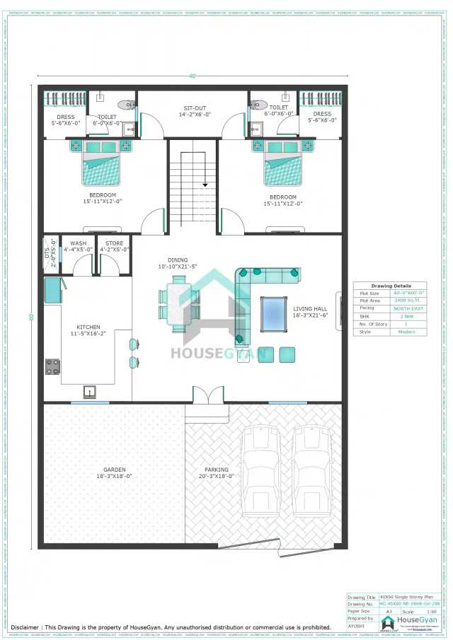
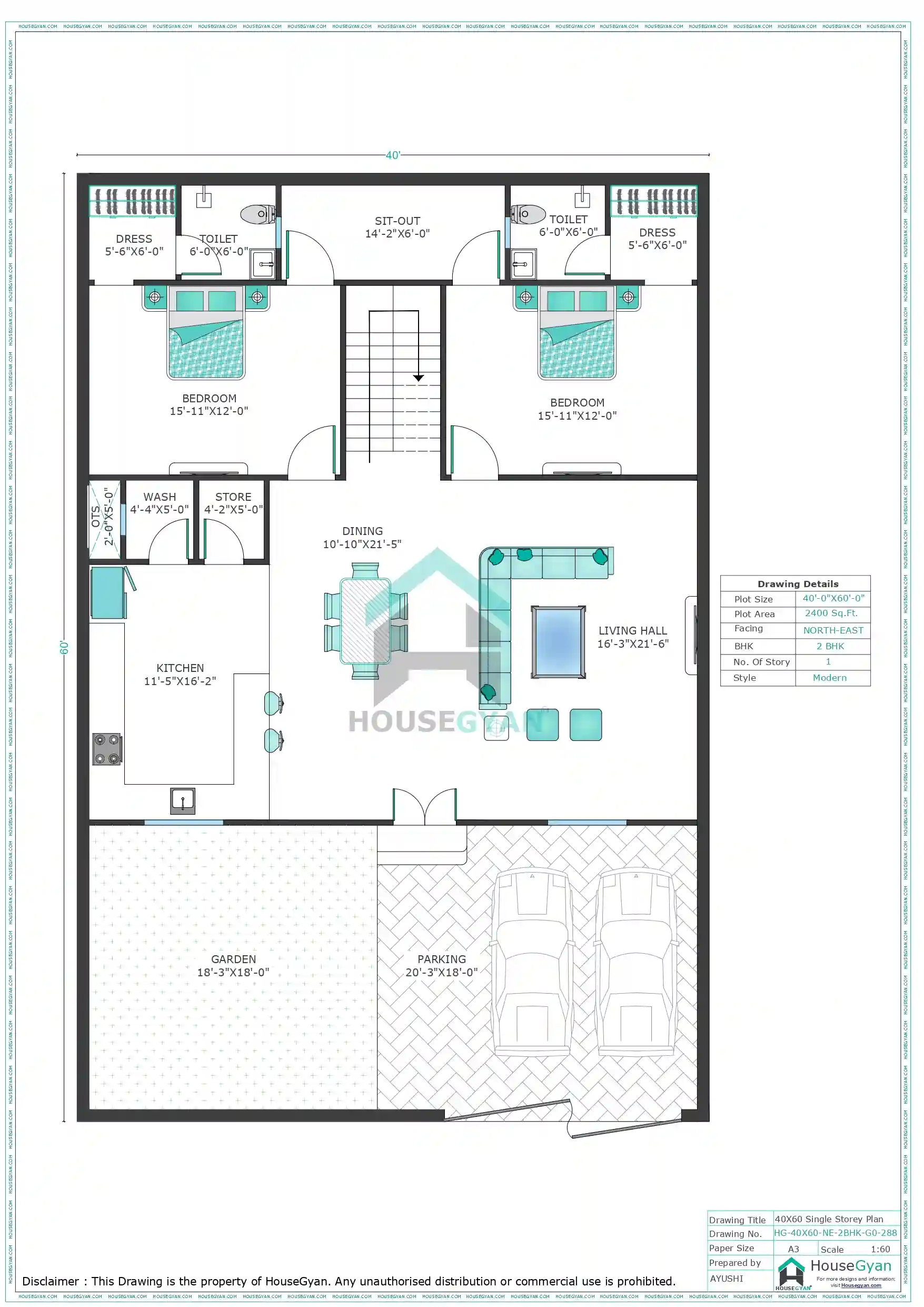
This 40X60 north east facing 2BHK ground floor house plan is designed to maximize space efficiently within a 2400 sqft plot. This house plan consists of 2 bedrooms, 1 Hall and 2 bathrooms within 2400 square feet. If you're looking for a 40X60 house plan, you've come to the right place. Here at HouseGyan architects, we specialize in designing and creating floor plans for all types of 40X60 plot size houses. Whether you're looking for a traditional multi stories home or a more modern ranch-style home, we can help you create the perfect 40*60 floor plan for your needs.
Whether you're looking to build your dream home with a Custom House Drawing or want a compact, modern layout, this 2400 sqft floor plan is an excellent choice for a northeast-facing plot. To get an rough idea of the expenses, use our House Construction Price Calculator to estimate your costs effectively.
Ratings & Reviews
House Gyan all services
Loading...40X60 House Plan | 2400 Sqft Plot House Plan | 2BHK North East Facing Ground Floor Plan
This 40X60 North East facing 2BHK ground floor house plan is designed for homeowners who want a spacious, vastu-compliant, and greenery-focused home on a 2400 sq ft plot. With well-defined indoor and outdoor spaces, this house plan is ideal for families seeking comfort, ventilation, and future flexibility.
40X60 House Plan – North East Facing Layout
The North East facing layout is highly preferred as per Vastu Shastra and ensures maximum natural light and positive energy. This thoughtfully designed plan includes:
2 Comfortable Bedrooms with proper ventilation
2 Toilets for convenience and privacy
Spacious Living Room for family gatherings
Dedicated Dining Area connected seamlessly to the kitchen
Functional Kitchen designed for efficiency
Store Room for organized storage
Wash Area placed separately for hygiene
Parking Space for secure vehicle accommodation
Beautiful Garden Area for greenery and relaxation
The layout ensures excellent space utilization while maintaining openness and smooth movement throughout the house.
Why Choose a 40X60 House Plan?
A 40X60 house plan is ideal for homeowners who want larger rooms, open spaces, and landscaping options. Key advantages include:
Perfect for independent houses with garden space
Easy scope for future expansion or additional floors
Ideal balance of indoor and outdoor living
Suitable for premium residential areas
Supports vastu-friendly planning effortlessly
This plot size offers flexibility, luxury, and long-term value.
More 40X60 House Plan Options
At HouseGyan, you can explore a wide range of 40X60 house plan designs, such as:
East, West, North, South & North East facing layouts
2BHK, 3BHK, and luxury house plans
Ground floor, G+1, and duplex designs
Modern, traditional, and vastu-based layouts
Each plan is crafted to suit different family needs and lifestyle preferences.
Find More House Plans at HouseGyan
HouseGyan offers professionally designed:
Ready-made house plans
Custom floor plans as per plot size
Vastu-compliant home designs
Modern and budget-friendly layouts
All house plans are created by expert architects focusing on functionality and comfort.
Get Your Custom 40X60 House Plan Today!
Want to modify room sizes, add a pooja room, or redesign the garden area?
HouseGyan provides custom house plan services tailored to your exact requirements, budget, and vastu needs.
Final Thoughts
This 40X60 North East Facing 2BHK Ground Floor House Plan is a perfect blend of space, comfort, and vastu harmony on a 2400 sq ft plot. With features like a garden, store, wash area, and ample parking, it is an excellent choice for a peaceful and practical lifestyle.

The information contained on Housegyan.com is provided for general informational purposes only. While we strive to ensure that the content on our website is accurate and current, we make no warranties or representations of any kind, express or implied, about the completeness, accuracy, reliability, suitability, or availability with respect to the website or the information, products, services, or related graphics contained on the website for any purpose. Housegyan.com will not be liable for any loss or damage including, without limitation, indirect or consequential loss or damage, or any loss or damage whatsoever arising from loss of data or profits arising out of, or in connection with, the use of this website.
Third party logos and marks are registered trademarks of their respective owners. All rights reserved.











