35X65 North Facing 2BHK Ground Floor House Plan | 2275 Sqft Plot Floor Plan
Description
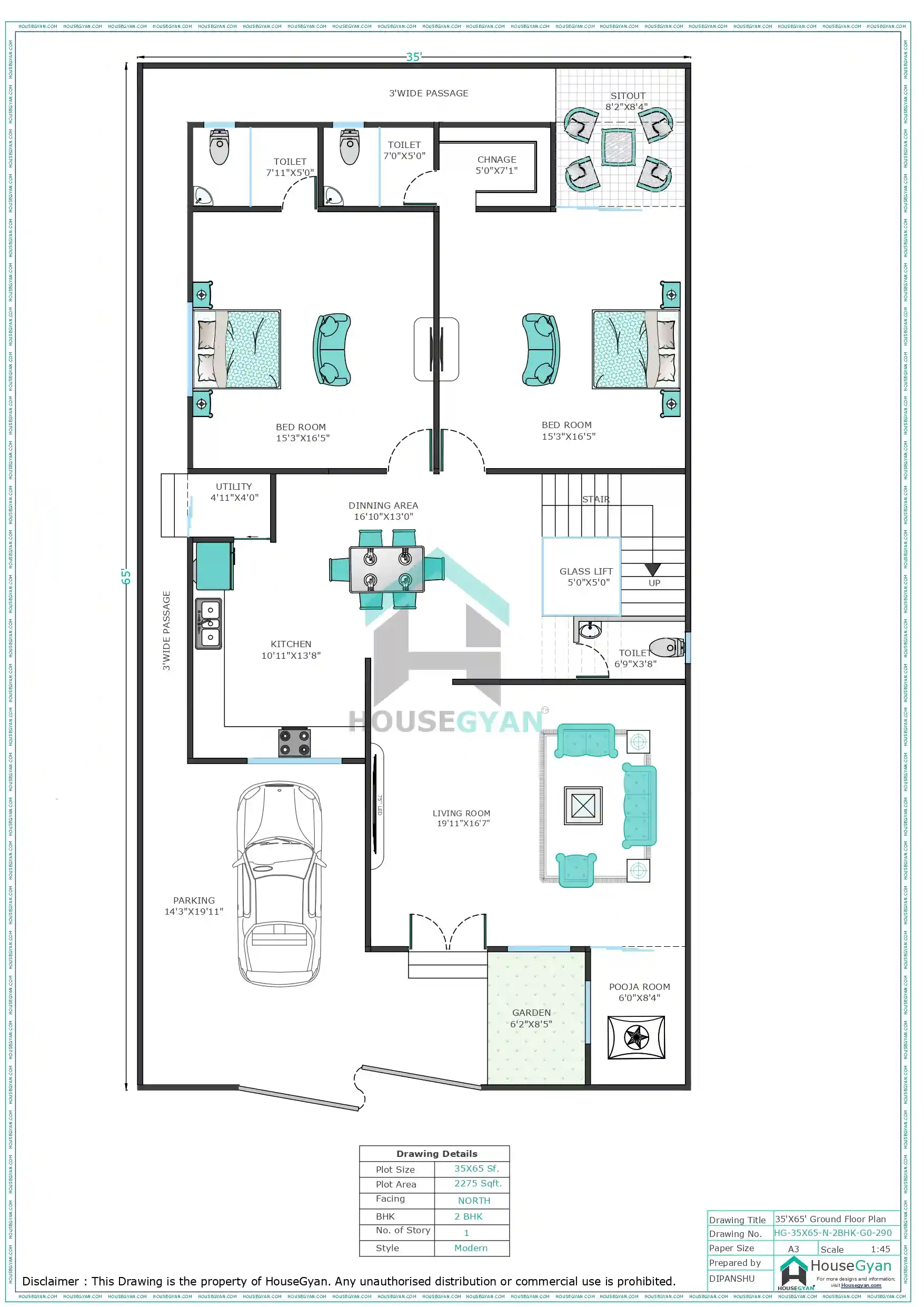
This 35X65 north facing 2BHK ground floor house plan is designed to maximize space efficiently within a 2275 sqft plot. This house plan consists of 2 bedrooms, 1 Hall and 2 bathrooms within 2275 square feet. If you're looking for a 35X65 house plan, you've come to the right place. Here at HouseGyan architects, we specialize in designing and creating floor plans for all types of 35X65 plot size houses. Whether you're looking for a traditional multi stories home or a more modern ranch-style home, we can help you create the perfect 35*65 floor plan for your needs.
Whether you're looking to build your dream home with a Custom House Drawing or want a compact, modern layout, this 2275 sqft floor plan is an excellent choice for a north facing plot. To get an rough idea of the expenses, use our House Construction Price Calculator to estimate your costs effectively.
Ratings & Reviews
House Gyan all services
Loading...35X65 House Plan | 2275 Sqft Plot House Plan | 2BHK North Facing Ground Floor Plan
This 35X65 North facing 2BHK ground floor house plan is designed for a 2275 sq ft plot, offering spacious living with excellent ventilation and smart zoning. The house plan layout is ideal for families who prefer wide open spaces, greenery, and a comfortable ground-floor lifestyle.
35X65 House Plan – North Facing Ground Floor Layout
The North-facing orientation allows ample natural light and airflow throughout the house. This thoughtfully planned ground-floor layout includes:
2 Spacious Bedrooms with privacy and comfort
Large Living Hall ideal for family gatherings
Functional Kitchen with good working space
Dining Area seamlessly connected to the kitchen
Well-Planned Toilets for daily convenience
Open Spaces for better ventilation and movement
The wide plot frontage helps in creating a balanced layout with open areas and future expansion possibilities.
Why Choose a 35X65 House Plan?
A 35X65 plot size is perfect for homeowners who want spacious rooms and open surroundings. Benefits include:
Ideal for large ground-floor layouts
Excellent scope for landscaping or parking
Better ventilation due to wider plot width
Comfortable for small to medium-sized families
Suitable for vastu-compliant planning
This plot size offers flexibility in design and long-term usability.
More 35X65 House Plan Options
At HouseGyan, explore a variety of 35X65 house plan designs, such as:
2BHK and 3BHK layouts
Ground floor & multi-floor plans
North, East, West, and South facing options
Modern, traditional, and vastu-based designs
Each plan is created with smart space utilization in mind.
Find More House Plans at HouseGyan
HouseGyan provides:
Professionally designed 2D & 3D house plans
Ready-made and fully customizable layouts
Vastu-aligned designs for positive living
Expert architectural guidance
All plans are crafted to suit Indian residential needs.
Get Your Custom 35X65 House Plan Today!
Want to add parking, garden space, pooja room, or modify room sizes?
HouseGyan offers custom house plan services tailored to your lifestyle, plot size, and vastu preferences.
Final Thoughts
This 35X65 North Facing 2BHK Ground Floor House Plan is an excellent choice for a 2275 sq ft plot, combining spacious design with functional living. It’s perfect for families seeking comfort, openness, and long-term flexibility.
Explore more 35X65 house plans and get your customized home design only at HouseGyan!

The information contained on Housegyan.com is provided for general informational purposes only. While we strive to ensure that the content on our website is accurate and current, we make no warranties or representations of any kind, express or implied, about the completeness, accuracy, reliability, suitability, or availability with respect to the website or the information, products, services, or related graphics contained on the website for any purpose. Housegyan.com will not be liable for any loss or damage including, without limitation, indirect or consequential loss or damage, or any loss or damage whatsoever arising from loss of data or profits arising out of, or in connection with, the use of this website.
Third party logos and marks are registered trademarks of their respective owners. All rights reserved.











