34X36 North Facing 2BHK Ground Floor House Plan | 1224 Sqft Plot Floor Plan
Description
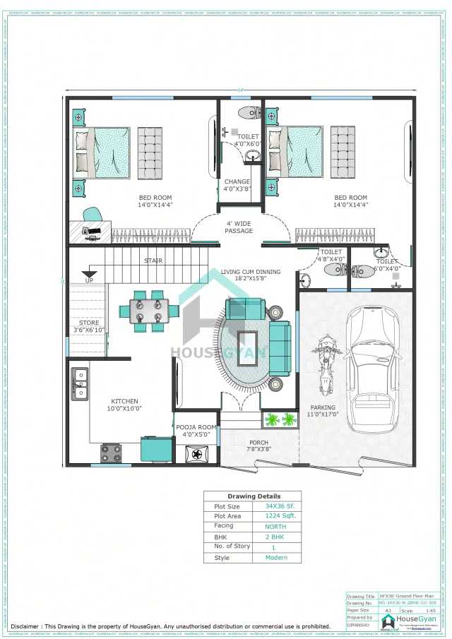
This 34X36 north-facing 2BHK ground floor house plan is designed to maximize space efficiently within a 1224 sqft plot. This house plan consists of 2 bedrooms, 1 Hall and 2 bathrooms within 1224 square feet. If you're looking for a 34X36 house plan, you've come to the right place. Here at HouseGyan architects, we specialize in designing and creating floor plans for all types of 34X36 plot size houses. Whether you're looking for a traditional multi stories home or a more modern ranch-style home, we can help you create the perfect 34*36 floor plan for your needs.
Whether you're looking to build your dream home with a Custom House Drawing or want a compact, modern layout, this 1224 sqft floor plan is an excellent choice for a north-facing plot. To get an rough idea of the expenses, use our House Construction Price Calculator to estimate your costs effectively.
Ratings & Reviews
House Gyan all services
Loading...34X36 House Plan | 1224 Sqft Plot House Plan | 2BHK North Facing Ground Floor Plan
This 34X36 North Facing 2BHK Ground Floor House Plan is smartly designed on a 1224 sq ft plot, offering comfortable room sizes, practical amenities, and a vastu-friendly layout. It is ideal for small to medium families looking for a well-organized ground-floor home with parking and storage facilities.
34X36 House Plan – North Facing Ground Floor Layout
The North-facing orientation supports balanced daylight, good ventilation, and positive energy throughout the home. The thoughtfully planned ground floor layout includes:
2 Bedrooms designed for comfort and privacy
Change Room attached for added convenience
Living Room serving as the main family gathering space
Dining Area placed near the kitchen for smooth movement
Kitchen with efficient workspace and storage
3 Toilets (attached + common) for daily convenience
Pooja Room dedicated to spiritual activities
Store Room for organized household storage
Internal Staircase for future vertical expansion
2 & 4 Wheeler Parking Area ensuring safe and easy vehicle access
This house plan layout ensures a clear separation between private and common areas while maximizing usability.
Why Choose a 34X36 House Plan?
A 34X36 plot size offers a great balance between compact planning and spacious living:
Ideal for 2BHK ground floor homes
Efficient utilization of available plot area
Suitable for urban and semi-urban locations
Future-ready design with staircase provision
Budget-friendly construction and maintenance
More 34X36 House Plan Options
At HouseGyan, you can explore various 34X36 house plan designs, including:
Ground floor and first floor layouts
Vastu-compliant house plans
Modern 2D floor plans & 3D elevation designs
Fully customized architectural solutions
Find More House Plans at HouseGyan
HouseGyan offers:
Professional 2D & 3D house drawings
Quick delivery in PDF/CAD formats
Vastu-aligned architectural planning
Expert consultation for residential projects
Get Your Custom 34X36 House Plan Today!
Want to modify room layouts or add custom features?
HouseGyan provides custom house plans tailored to your plot size, family needs, and budget.
Final Thoughts
This 34X36 North Facing 2BHK Ground Floor House Plan on a 1224 sq ft plot is a perfect mix of comfort, practicality, and modern living. With features like change room, pooja space, store, and 2 & 4 wheeler parking, it offers a complete and efficient home solution.
Explore more 34X36 house plans and premium 2BHK designs only at HouseGyan!

The information contained on Housegyan.com is provided for general informational purposes only. While we strive to ensure that the content on our website is accurate and current, we make no warranties or representations of any kind, express or implied, about the completeness, accuracy, reliability, suitability, or availability with respect to the website or the information, products, services, or related graphics contained on the website for any purpose. Housegyan.com will not be liable for any loss or damage including, without limitation, indirect or consequential loss or damage, or any loss or damage whatsoever arising from loss of data or profits arising out of, or in connection with, the use of this website.
Third party logos and marks are registered trademarks of their respective owners. All rights reserved.













