30X80 East Facing 1BHK Ground Floor House Plan | 2400 Sqft Plot Floor Plan
Description
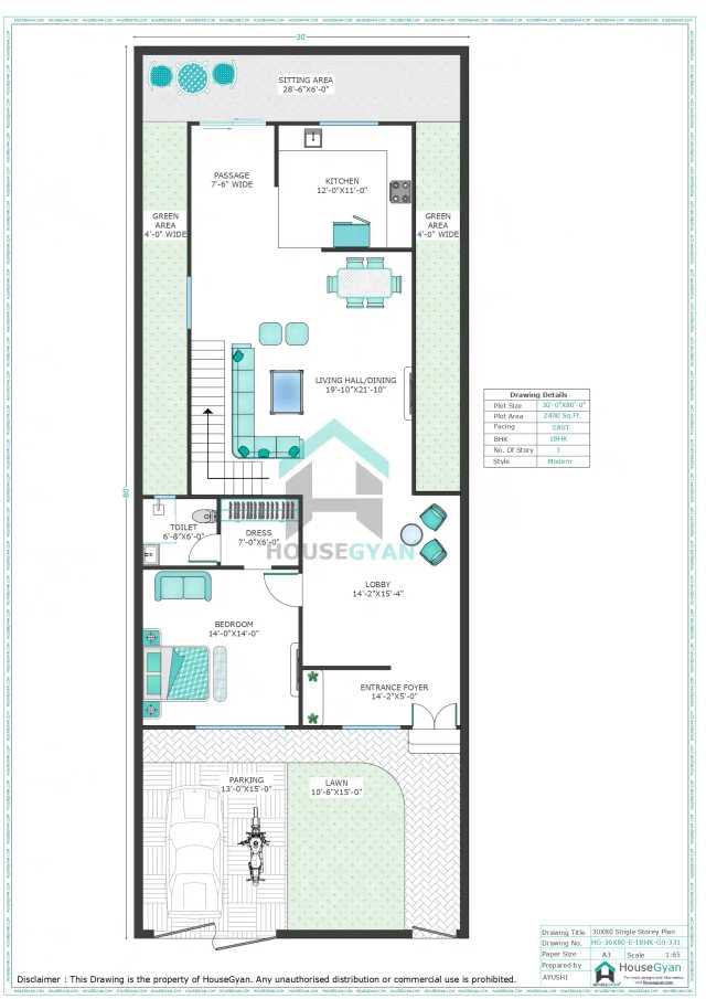
This 30X80 east-facing 1BHK ground floor house plan is designed to maximize space efficiently within a 2400 sqft plot. This house plan consists of 1 bedrooms, 1 Hall and 1 bathrooms within 2400 square feet. If you're looking for a 30X80 house plan, you've come to the right place. Here at HouseGyan architects, we specialize in designing and creating floor plans for all types of 30X80 plot size houses. Whether you're looking for a traditional multi stories home or a more modern ranch-style home, we can help you create the perfect 30*80 floor plan for your needs.
Whether you're looking to build your dream home with a Custom House Drawing or want a compact, modern layout, this 2400 sqft floor plan is an excellent choice for a east-facing plot. To get an rough idea of the expenses, use our House Construction Price Calculator to estimate your costs effectively.
Ratings & Reviews
House Gyan all services
Loading...30X80 East Facing 1BHK Ground Floor House Plan | 2400 Sqft Plot Floor Plan
This 30X80 East Facing 1BHK Ground Floor House Plan is thoughtfully designed for a 2400 sq ft plot, offering a spacious, premium single-floor living experience. With large open areas, green zones, and well-defined indoor spaces, this plan is ideal for those who prefer luxury, openness, and peaceful living on a large plot.
30X80 House Plan – East Facing Ground Floor Layout
The east-facing orientation ensures abundant natural light, good ventilation, and a vastu-friendly living environment. The ground floor layout includes:
Parking Area for safe and convenient vehicle space
Lawn Area adding greenery and visual openness
Green Area for natural ventilation and aesthetics
Entrance Foyer creating a welcoming entry experience
Lobby Area enhancing circulation and openness
Living / Sitting Area designed for family interaction and relaxation
Dining Area connected smoothly with the kitchen
Kitchen with ample workspace and storage
Passage Area ensuring smooth internal movement
1 Bedroom offering privacy and comfort
Toilet conveniently placed for daily use
Internal Staircase for future first-floor expansion
This house plan layout blends luxury, functionality, and open planning perfectly.
Why Choose a 30X80 East Facing House Plan?
A 30X80 plot size is ideal for premium independent homes and offers multiple benefits:
Perfect for spacious 1BHK ground floor house plans
Excellent scope for lawns and green areas
Vastu-friendly east-facing orientation
Comfortable single-floor living with open surroundings
Ideal for future vertical or duplex expansion
Suitable for luxury villas or farmhouse-style homes
More 30X80 House Plan Options
At HouseGyan, you can explore a wide range of 30X80 house plan designs, including:
Ground floor & duplex house plans
Vastu-compliant residential layouts
Modern 2D floor plans & premium 3D elevations
Fully customized architectural solutions
Find the Right House Plan with HouseGyan
HouseGyan offers:
Professional 2D & 3D architectural drawings
Fast delivery in PDF & CAD formats
Vastu-aligned planning for Indian homes
Expert guidance for residential construction
Get Your Custom 30X80 House Plan Today!
Want to add more rooms, redesign open spaces, or plan additional floors?
HouseGyan provides custom house plan services based on your plot size, lifestyle, and budget.
Final Thoughts
This 30X80 East Facing 1BHK Ground Floor House Plan on a 2400 sq ft plot offers a perfect blend of luxury, openness, and practicality. With lawn, green areas, lobby, foyer, spacious living zones, and future expansion options, it is an excellent choice for modern premium living.
Explore more 30X80 house plans and luxury 1BHK designs only at HouseGyan!

The information contained on Housegyan.com is provided for general informational purposes only. While we strive to ensure that the content on our website is accurate and current, we make no warranties or representations of any kind, express or implied, about the completeness, accuracy, reliability, suitability, or availability with respect to the website or the information, products, services, or related graphics contained on the website for any purpose. Housegyan.com will not be liable for any loss or damage including, without limitation, indirect or consequential loss or damage, or any loss or damage whatsoever arising from loss of data or profits arising out of, or in connection with, the use of this website.
Third party logos and marks are registered trademarks of their respective owners. All rights reserved.













