30X65 West Facing 1BHK Ground Floor House Plan | 1950 Sqft Plot Floor Plan
Description
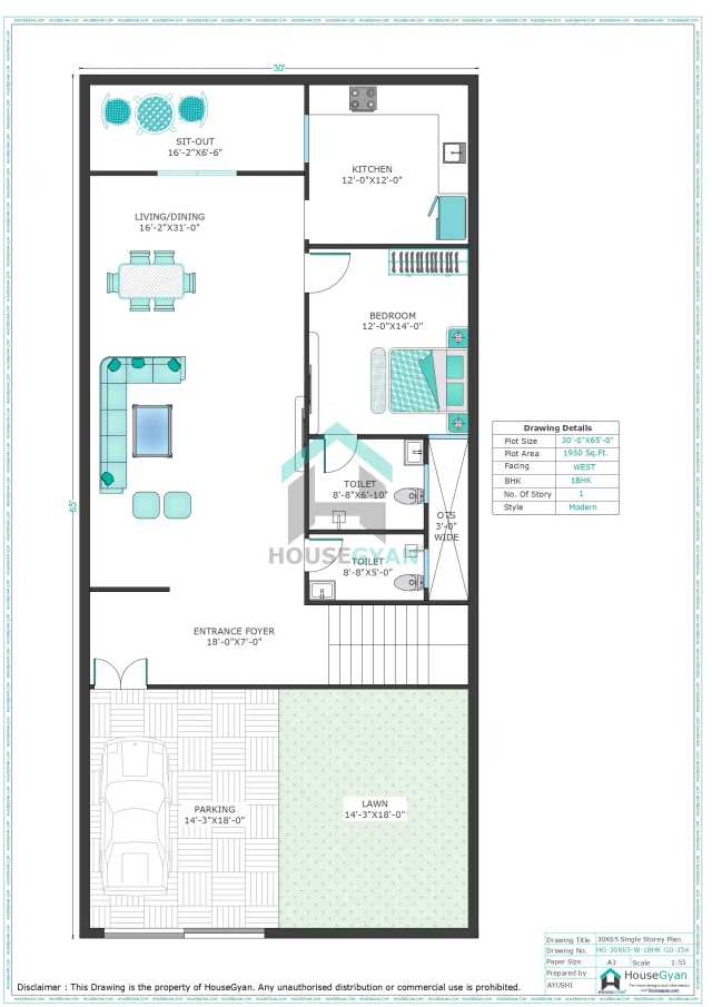
This well-planned 30×65 west-facing 1BHK ground floor layout is designed for comfort, functionality, and modern living.
With a total plot area of around 1990 sq. ft., the plan efficiently utilizes space while maintaining openness and natural flow.
The layout begins with a front parking area and a beautifully designed lawn, creating a welcoming outdoor space. The entry leads into a spacious entrance foyer, which connects seamlessly to the drawing hall and living-dining area, offering ample space for relaxation and family gatherings.
A dedicated sit-out area enhances the living experience, providing a perfect spot for casual seating and ventilation. The kitchen is strategically placed for easy access and functionality, with proper space for cooking and storage.
The plan includes a comfortable bedroom, along with a common toilet and an attached toilet, ensuring convenience for residents and guests. A green/OTS area is also incorporated to improve ventilation and bring natural light into the home.
Overall, this design offers a practical, airy, and modern 1BHK home layout, ideal for small families looking for a balanced mix of indoor comfort and outdoor space.
Whether you're looking to Order House Drawing for your dream home or want a compact, modern layout, this 1950 sqft floor plan is an excellent choice for a west facing plot. To get an rough idea of the expenses, use our House Construction Price Calculator to estimate your costs effectively.
Ratings & Reviews
House Gyan all services
Loading...HouseGyan is your trusted platform for everything related to home design, construction, and planning. We offer a complete range of services to help you build your dream home with ease and confidence.
Our Services
- Price Calculators: Plan your budget with our tools like Home Loan EMI Calculator, Tile Price Calculator, Brick Cost Calculator, and more.
- House Drawings & Plans: Explore ready-made house plans or get custom house drawings designed to fit your needs perfectly.
- Elevation Designs: Choose from modern elevation designs or request a custom elevation design for a unique look.
- Accurate Estimates: Get clear and accurate construction cost estimates to plan better.
- Shubh Muhurat & Vastu Tips: Follow our Shubh Muhurat and Vastu guidelines to bring positive energy and harmony to your home.
- DIY Home Repair Guides: Learn easy DIY tips to fix and maintain your home efficiently.
- Interior Design Ideas: Discover creative ideas for living rooms, bedrooms, kitchens, balconies, and more.
Why Choose HouseGyan?
- All-in-One Platform: From house plans to price calculators, we cover it all.
- Custom Solutions: Get personalized designs and estimates for your home.
- Expert Guidance: Access professional tips on Vastu, Shubh Muhurat, and construction materials.
- User-Friendly: Our tools and content are designed to simplify home building for everyone.

The information contained on Housegyan.com is provided for general informational purposes only. While we strive to ensure that the content on our website is accurate and current, we make no warranties or representations of any kind, express or implied, about the completeness, accuracy, reliability, suitability, or availability with respect to the website or the information, products, services, or related graphics contained on the website for any purpose. Housegyan.com will not be liable for any loss or damage including, without limitation, indirect or consequential loss or damage, or any loss or damage whatsoever arising from loss of data or profits arising out of, or in connection with, the use of this website.
Third party logos and marks are registered trademarks of their respective owners. All rights reserved.













