30X65 South Facing 1BHK Ground Floor House Plan | 1950 Sqft Plot Floor Plan
Description
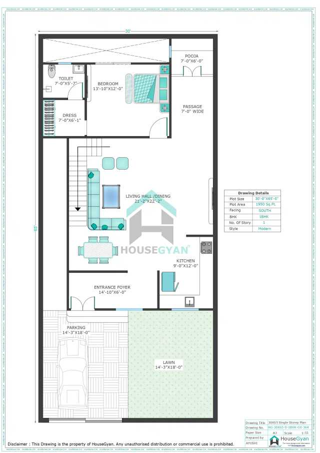
This 30x65 south-facing 1BHK ground floor plan is designed to offer a perfect balance of space, comfort, and functionality. Spread across 1950 sq. ft., the layout includes a well-planned bedroom with an attached dress area, along with two toilets for added convenience.
The design features a large living hall, a separate dining area, and a functional kitchen, making it ideal for comfortable family living. A dedicated entrance foyer enhances privacy, while the sit-out spaces at both front and rear add relaxation zones to the home.
Additional highlights include a landscaped lawn, parking area, internal staircase for future expansion, and green open spaces for ventilation and natural light. This modern layout is perfect for homeowners looking for a spacious and well-ventilated 1BHK home with premium features.
Whether you're looking to Order House Drawing for your dream home or want a compact, modern layout, this 1950 sqft floor plan is an excellent choice for a south facing plot. To get an rough idea of the expenses, use our House Construction Price Calculator to estimate your costs effectively.
Ratings & Reviews
House Gyan all services
Loading...HouseGyan is your trusted platform for everything related to home design, construction, and planning. We offer a complete range of services to help you build your dream home with ease and confidence.
Our Services
- Price Calculators: Plan your budget with our tools like Home Loan EMI Calculator, Tile Price Calculator, Brick Cost Calculator, and more.
- House Drawings & Plans: Explore ready-made house plans or get custom house drawings designed to fit your needs perfectly.
- Elevation Designs: Choose from modern elevation designs or request a custom elevation design for a unique look.
- Accurate Estimates: Get clear and accurate construction cost estimates to plan better.
- Shubh Muhurat & Vastu Tips: Follow our Shubh Muhurat and Vastu guidelines to bring positive energy and harmony to your home.
- DIY Home Repair Guides: Learn easy DIY tips to fix and maintain your home efficiently.
- Interior Design Ideas: Discover creative ideas for living rooms, bedrooms, kitchens, balconies, and more.
Why Choose HouseGyan?
- All-in-One Platform: From house plans to price calculators, we cover it all.
- Custom Solutions: Get personalized designs and estimates for your home.
- Expert Guidance: Access professional tips on Vastu, Shubh Muhurat, and construction materials.
- User-Friendly: Our tools and content are designed to simplify home building for everyone.

The information contained on Housegyan.com is provided for general informational purposes only. While we strive to ensure that the content on our website is accurate and current, we make no warranties or representations of any kind, express or implied, about the completeness, accuracy, reliability, suitability, or availability with respect to the website or the information, products, services, or related graphics contained on the website for any purpose. Housegyan.com will not be liable for any loss or damage including, without limitation, indirect or consequential loss or damage, or any loss or damage whatsoever arising from loss of data or profits arising out of, or in connection with, the use of this website.
Third party logos and marks are registered trademarks of their respective owners. All rights reserved.













