30X65 North East Facing 1BHK Ground Floor House Plan | 1950 Sqft Plot Floor Plan
Description
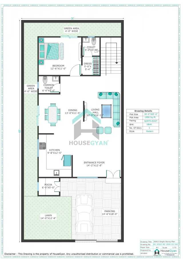
This 30x65 house plan is a well-designed 1BHK ground floor layout perfect for families looking for a spacious yet practical home. With a North-East facing plot, this design ensures good natural light, ventilation, and Vastu-friendly planning.
Plot Details
Plot Size: 30’ x 65’
Total Area: 1950 Sq.Ft.
Facing: North-East
Configuration: 1BHK
Style: Modern
Layout Overview
This house plan is thoughtfully divided into functional zones including living, dining, private bedroom space, and outdoor areas like lawn and green zones.
Living Hall
Spacious living hall (10’-9” x 16’-10”)
Positioned near the entrance for easy access
Ideal for family seating and guest interaction
Entrance Foyer
Large entrance foyer (14’-2” x 12’-8”)
Creates a welcoming transition space
Adds privacy by separating living area from main door
Dining Area
Dedicated dining space (13’-0” x 11’-5”)
Centrally located for easy access from kitchen and living
Perfect for family meals and gatherings
Kitchen
Functional kitchen (9’-8” x 12’-5”)
Efficient layout with proper work triangle
Connected to dining for convenience
Bedroom with Attached Spaces
Comfortable bedroom (12’-6” x 11’-0”)
Includes:
Attached toilet (5’-0” x 5’-4”)
Dressing area (5’-0” x 5’-4”)
Common Toilet
Separate common toilet (6’-0” x 5’-0”)
Easily accessible from living and dining area
Pooja Room
Dedicated pooja room (6’-0” x 5’-0”)
Ideally placed for spiritual and peaceful environment
Open & Green Spaces
Front lawn (14’-0” x 12’-8”) for relaxation
Side & rear green areas (4’-0” wide) for ventilation and greenery
Enhances natural light and airflow
Parking
Spacious car parking (14’-6” x 18’-0”)
Easily accommodates one vehicle
Staircase
Internal staircase provision for future floor expansion
Smartly placed without disturbing main layout
Key Highlights
Vastu-friendly North-East facing house plan
Spacious entrance foyer – rare in 1BHK designs
Dedicated pooja room
Proper zoning of public and private spaces
Ample green area for ventilation
Future-ready with staircase provision
Overall Design Insight
This 30x65 1BHK house plan is ideal for homeowners who want a balanced mix of space, comfort, and modern planning. The inclusion of a foyer, lawn, and green areas makes it feel like a premium home despite being a 1BHK.
Whether you're looking to Order House Drawing for your dream home or want a compact, modern layout, this 1950 sqft floor plan is an excellent choice for a south facing plot. To get an rough idea of the expenses, use our House Construction Price Calculator to estimate your costs effectively.
Ratings & Reviews
House Gyan all services
Loading...HouseGyan is your trusted platform for everything related to home design, construction, and planning. We offer a complete range of services to help you build your dream home with ease and confidence.
Our Services
- Price Calculators: Plan your budget with our tools like Home Loan EMI Calculator, Tile Price Calculator, Brick Cost Calculator, and more.
- House Drawings & Plans: Explore ready-made house plans or get custom house drawings designed to fit your needs perfectly.
- Elevation Designs: Choose from modern elevation designs or request a custom elevation design for a unique look.
- Accurate Estimates: Get clear and accurate construction cost estimates to plan better.
- Shubh Muhurat & Vastu Tips: Follow our Shubh Muhurat and Vastu guidelines to bring positive energy and harmony to your home.
- DIY Home Repair Guides: Learn easy DIY tips to fix and maintain your home efficiently.
- Interior Design Ideas: Discover creative ideas for living rooms, bedrooms, kitchens, balconies, and more.
Why Choose HouseGyan?
- All-in-One Platform: From house plans to price calculators, we cover it all.
- Custom Solutions: Get personalized designs and estimates for your home.
- Expert Guidance: Access professional tips on Vastu, Shubh Muhurat, and construction materials.
- User-Friendly: Our tools and content are designed to simplify home building for everyone.

The information contained on Housegyan.com is provided for general informational purposes only. While we strive to ensure that the content on our website is accurate and current, we make no warranties or representations of any kind, express or implied, about the completeness, accuracy, reliability, suitability, or availability with respect to the website or the information, products, services, or related graphics contained on the website for any purpose. Housegyan.com will not be liable for any loss or damage including, without limitation, indirect or consequential loss or damage, or any loss or damage whatsoever arising from loss of data or profits arising out of, or in connection with, the use of this website.
Third party logos and marks are registered trademarks of their respective owners. All rights reserved.













