30X60 East Facing 4BHK First Floor House Plan | 1800 Sqft Plot Floor Plan
Description
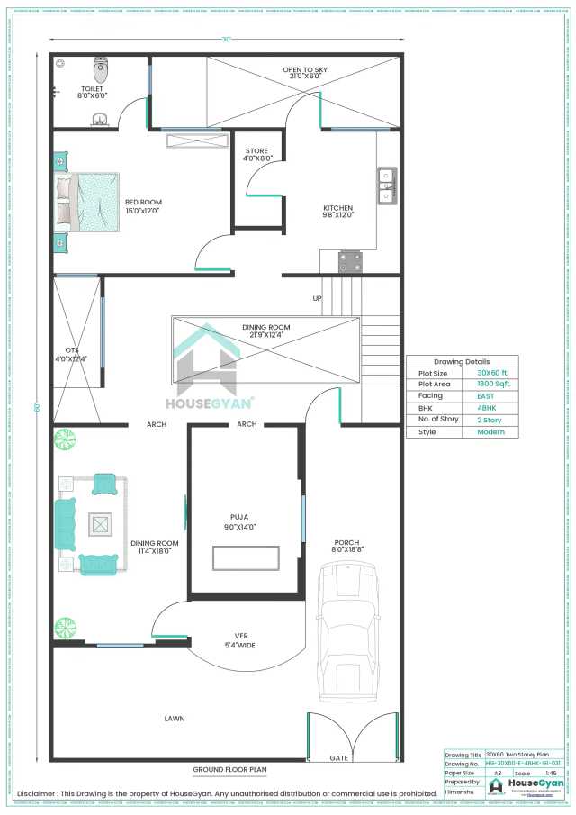
This 30X60 east-facing 4BHK first floor house plan is designed to maximize space efficiently within a 1800 sqft plot. This house plan consists of 4 bedrooms, 1 Hall and 3 bathrooms within 1800 square feet. If you're looking for a 30X60 house plan, you've come to the right place. Here at HouseGyan architects, we specialize in designing and creating floor plans for all types of 30X60 plot size houses. Whether you're looking for a traditional multi stories home or a more modern ranch-style home, we can help you create the perfect 30*60 floor plan for your needs.
Whether you're looking to build your dream home with a Custom House Drawing or want a compact, modern layout, this 1800 sqft floor plan is an excellent choice for a east-facing plot. To get an rough idea of the expenses, use our House Construction Price Calculator to estimate your costs effectively.
Ratings & Reviews
House Gyan all services
Loading...30X60 House Plan | 1800 Sqft Plot House Plan | 4BHK East Facing First Floor Plan
A 30X60 house plan on an 1800 sqft plot offers generous space, ideal for big families seeking comfort, privacy, and modern functionality. This East Facing 4BHK First Floor House Plan includes spacious bedrooms, a well-placed kitchen, multiple toilets, a family living area, balcony spaces, and a staircase designed for smooth circulation.
30X60 House Plan – East Facing First Floor Layout
Designed as per modern planning principles, this 4BHK East Facing layout embraces natural sunlight from the morning sun, creating a bright and positive atmosphere. The first-floor planning ensures privacy while maintaining connectivity to essential common spaces.
What This house plan Layout Includes
4 Spacious Bedrooms with proper ventilation
Living Area for family gatherings
A functional and accessible Kitchen
4 Toilets including attached & common
Smartly designed Staircase
Balcony/Open Space for airflow
Space distribution optimized for comfort
This floor plan is perfect for joint or large families.
Why Choose a 30X60 House Plan?
A 1800 sqft plot provides several benefits, including:
Ideal for 4BHK planning with large room sizes
Excellent planning flexibility
Vastu-friendly East Facing entrance options
Can support multiple floor construction in the future
Perfect for families needing more private rooms
Allows for outdoor and indoor space balance
More 30X60 House Plan Options
Explore other layout variations:
30X60 Ground Floor 3BHK Plan
30X60 Duplex House Plan
30X60 House Plan with Parking + Garden
30X60 Modern & Traditional Elevation Designs
30X60 Rental + Residential Combination Plans
Let me know if you want content for these as well.
Find More House Plans at HouseGyan
At HouseGyan, you can explore:
Vastu-compliant house drawings
2D & 3D plans for all plot sizes
Modern elevation designs
Interior planning and construction guides
Cost calculators for budgeting
Your complete home planning partner.
Get Your Custom 30X60 House Plan Today!
HouseGyan offers:
Custom 2D/3D house planning
Structural and electrical drawings
Revisions until your plan is perfect
Tailored space planning based on lifestyle
Share your plot details to get your custom house plan design.
Final Thoughts
This 30X60 East Facing 4BHK First Floor House Plan ensures spacious rooms, natural ventilation, and balanced functionality. It’s a perfect choice for families seeking luxury, comfort, and long-term liveability within an 1800 sqft plot.

The information contained on Housegyan.com is provided for general informational purposes only. While we strive to ensure that the content on our website is accurate and current, we make no warranties or representations of any kind, express or implied, about the completeness, accuracy, reliability, suitability, or availability with respect to the website or the information, products, services, or related graphics contained on the website for any purpose. Housegyan.com will not be liable for any loss or damage including, without limitation, indirect or consequential loss or damage, or any loss or damage whatsoever arising from loss of data or profits arising out of, or in connection with, the use of this website.
Third party logos and marks are registered trademarks of their respective owners. All rights reserved.














