30X50 South Facing 3BHK First Floor House Plan | 1500 Sqft Plot Floor Plan
Description
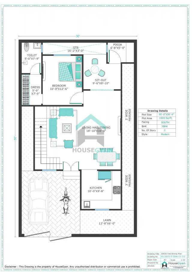
This 30x50 south-facing 3BHK first floor house plan is carefully designed to make the most of a 1500 sqft plot. It includes 3 spacious bedrooms, 1 hall, and 3 bathrooms, providing an efficient and comfortable layout.
At HouseGyan Architects, we specialize in Custom House Drawings for 30x50 plot sizes—whether you prefer a traditional multi-storey home or a sleek, modern single-floor design. If you’re planning your dream home, this 1500 sqft south-facing plan is an excellent choice. To estimate construction costs in advance, try our House Construction Price Calculator for accurate budget planning.
Ratings & Reviews
House Gyan all services
Loading...30X50 House Plan | 1500 Sqft Plot House Plan | 3BHK South Facing First Floor Plan
This 30X50 South Facing 3BHK First Floor House Plan is thoughtfully designed for a 1500 sq ft plot, offering spacious interiors, open green areas, and a premium first-floor layout. It is ideal for families who want comfort, functionality, and a well-planned living environment.
30X50 House Plan – South Facing First Floor Layout
The South-facing orientation is carefully planned to ensure balanced lighting, ventilation, and comfortable indoor temperatures. The first-floor layout includes:
3 Bedrooms designed for privacy and comfort
3 Toilets (attached + common) for daily convenience
Living Hall serving as the main family gathering space
Dining Area connected smoothly with the kitchen
Kitchen with efficient workspace and storage
Pooja Room dedicated to spiritual activities
Sitting Area for relaxation and informal gatherings
Lounge Area enhancing comfort and leisure
Balcony providing fresh air and outdoor views
Internal Staircase for easy vertical access
Parking Area planned on the ground level
Lawn & Green Area adding natural beauty and ventilation
This house plan layout offers a perfect blend of indoor comfort and outdoor openness.
Why Choose a 30X50 House Plan?
A 30X50 plot size is one of the most popular residential dimensions due to its flexibility:
Ideal for spacious 3BHK first-floor homes
Excellent scope for green areas and balconies
Suitable for independent floors or duplex houses
Easy customization and future expansion
Cost-effective construction and maintenance
More 30X50 House Plan Options
At HouseGyan, you can explore a wide range of 30X50 house plan designs, including:
Ground floor, first floor, and duplex layouts
Vastu-compliant house plans
Modern 2D floor plans & attractive 3D elevations
Fully customized architectural solutions
Find More House Plans at HouseGyan
HouseGyan offers:
Professional 2D & 3D house drawings
Quick delivery in PDF/CAD formats
Vastu-aligned architectural planning
Expert consultation for residential projects
Get Your Custom 30X50 House Plan Today!
Want to modify room layouts or add more outdoor spaces?
HouseGyan provides custom house plan services tailored to your plot size, family needs, and budget.
Final Thoughts
This 30X50 South Facing 3BHK First Floor House Plan on a 1500 sq ft plot delivers a spacious, modern, and comfortable living experience. With lawn, green area, balcony, pooja room, lounge, and ample living space, it is an excellent choice for contemporary family living.
Explore more 30X50 house plans and premium 3BHK designs only at HouseGyan!

The information contained on Housegyan.com is provided for general informational purposes only. While we strive to ensure that the content on our website is accurate and current, we make no warranties or representations of any kind, express or implied, about the completeness, accuracy, reliability, suitability, or availability with respect to the website or the information, products, services, or related graphics contained on the website for any purpose. Housegyan.com will not be liable for any loss or damage including, without limitation, indirect or consequential loss or damage, or any loss or damage whatsoever arising from loss of data or profits arising out of, or in connection with, the use of this website.
Third party logos and marks are registered trademarks of their respective owners. All rights reserved.














