30X50 South Facing 2BHK Ground Floor House Plan | 1500 Sqft Plot Floor Plan
Description
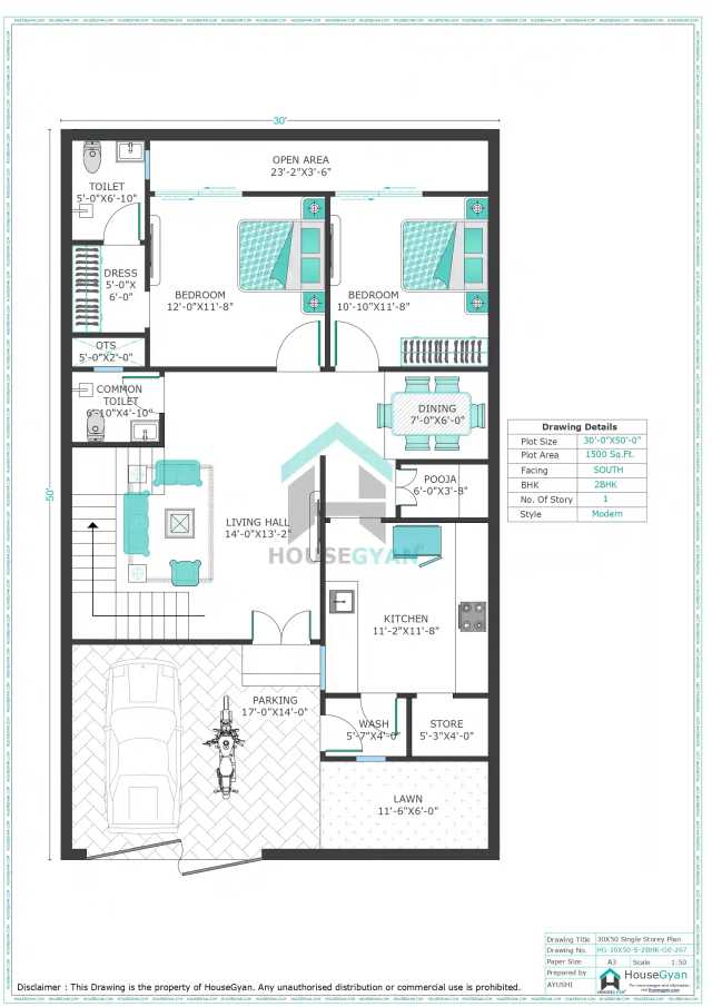
This 30x50 south-facing 2BHK ground floor house plan is carefully designed to make the most of a 1500 sqft plot. It includes 2 spacious bedrooms, 1 hall, and 2 bathrooms, providing an efficient and comfortable layout.
At HouseGyan Architects, we specialize in Custom House Drawings for 30x50 plot sizes—whether you prefer a traditional multi-storey home or a sleek, modern single-floor design. If you’re planning your dream home, this 1500 sqft south-facing plan is an excellent choice. To estimate construction costs in advance, try our House Construction Price Calculator for accurate budget planning.
Ratings & Reviews
House Gyan all services
Loading...30X50 House Plan | 1500 Sqft Plot Floor Plan | 2BHK South Facing Ground Floor House Plan
30X50 South Facing House Plan – Ground Floor Layout
This 30X50 South Facing 2BHK Ground Floor House Plan is thoughtfully designed for a 1500 sqft plot, offering a perfect mix of comfort, utility, and modern space planning.
The house plan layout includes 2 bedrooms, 2 toilets, pooja room, hall, kitchen, wash area, store room, parking space, green area, and garden, making it ideal for small to medium-sized families looking for a balanced and Vastu-friendly home.
The South-facing orientation ensures proper sunlight and natural warmth, keeping the house bright, airy, and energy-efficient throughout the day.
Why Choose a 30X50 House Plan?
Perfectly optimized for 1500 sqft residential plots
Smart split between private and common areas
Includes pooja room, a must-have for Indian homes
Extra green area and garden for peaceful outdoor space
Parking space included for modern urban needs
Efficient South-facing layout with maximum daylight
More 30X50 House Plan Options
At HouseGyan, you can explore various 30X50 layouts such as:
2BHK, 3BHK, and duplex designs
Ground floor + first floor combinations
Vastu-based layouts for positivity
Modern 2D drawings and 3D elevation designs
Find More House Plans at HouseGyan
Browse hundreds of house designs including:
South-facing, East-facing, North-facing, and West-facing plans
Small, medium, and large plot designs
Rental-friendly and budget-friendly plans
Every plan is made to suit Indian lifestyle and modern living needs.
Get Your Custom 30X50 House Plan Today!
HouseGyan offers:
2D & 3D custom house drawings
Multiple revisions
Vastu-compliant layouts
Quick PDF & CAD delivery
Personal architectural support
Final Thoughts
This 30X50 South Facing 2BHK Ground Floor House Plan is ideal for families seeking a functional, spacious, and Vastu-aligned home.
With 2 bedrooms, pooja room, kitchen, garden, parking, and utility spaces, it balances comfort and modern living perfectly.
Explore more 30X50 house plans and custom home plan designs only on HouseGyan!

The information contained on Housegyan.com is provided for general informational purposes only. While we strive to ensure that the content on our website is accurate and current, we make no warranties or representations of any kind, express or implied, about the completeness, accuracy, reliability, suitability, or availability with respect to the website or the information, products, services, or related graphics contained on the website for any purpose. Housegyan.com will not be liable for any loss or damage including, without limitation, indirect or consequential loss or damage, or any loss or damage whatsoever arising from loss of data or profits arising out of, or in connection with, the use of this website.
Third party logos and marks are registered trademarks of their respective owners. All rights reserved.













