30X50 South Facing 1BHK Ground Floor House Plan | 1500 Sqft Plot Floor Plan
Description
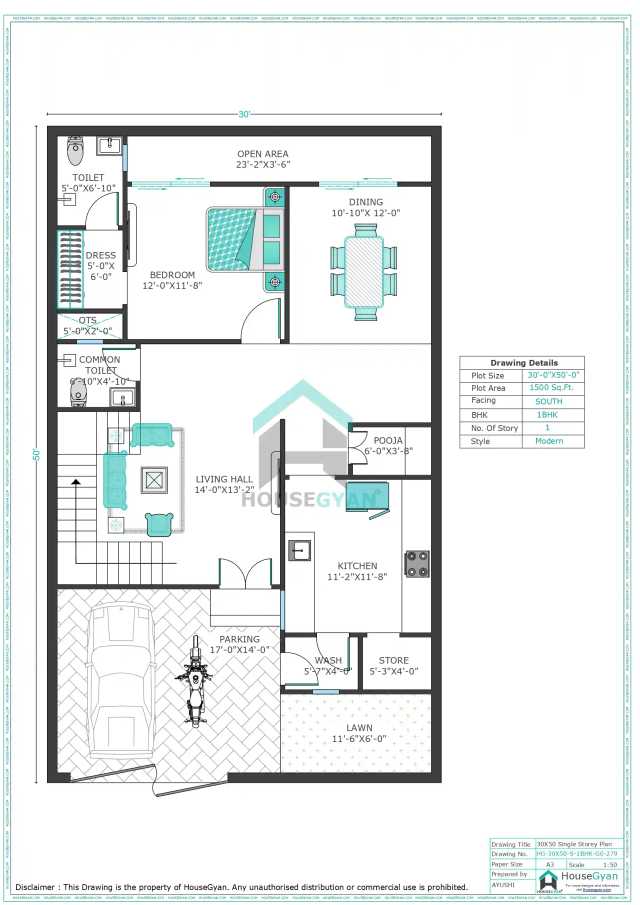
This 30x50 south-facing 1BHK ground floor house plan is carefully designed to make the most of a 1500 sqft plot. It includes 1 spacious bedrooms, 1 hall, and 2 bathrooms, providing an efficient and comfortable layout.
At HouseGyan Architects, we specialize in Custom House Drawings for 30x50 plot sizes—whether you prefer a traditional multi-storey home or a sleek, modern single-floor design. If you’re planning your dream home, this 1500 sqft south-facing plan is an excellent choice. To estimate construction costs in advance, try our House Construction Price Calculator for accurate budget planning.
Ratings & Reviews
House Gyan all services
Loading...30X50 House Plan | 1500 Sqft Plot House Plan | 1BHK South Facing Ground Floor Plan
30X50 House Plan – South Facing Layout
This 30X50 South Facing 1BHK Ground Floor House Plan is designed on a 1500 sqft plot, offering a perfect balance of comfort, functionality, and spacious planning. The layout is ideal for small families, couples, or rental purposes, ensuring smooth movement and well-defined living zones.
The house plan includes 1 bedroom, living area, dining space, kitchen, 2 toilets, wash area, and store room, making it a complete and practical home design. The south-facing orientation allows good sunlight and ventilation throughout the day.
Key Features of This House Drawing
1 Bedroom – Spacious and comfortable with privacy
Living Room – Well-planned area for daily activities and guests
Dining Area – Dedicated space connected to the kitchen
Kitchen – Efficient layout with proper working space
2 Toilets – One attached and one common for convenience
Wash Area – Separate utility space for daily use
Store Room – Extra storage for household needs
Why Choose a 30X50 1BHK South Facing House Plan?
Ideal use of 1500 sqft South-facing plot
Perfect for small families or rental income
Clear separation of living, dining, and private zones
Easy construction and cost-effective layout
Vastu-friendly and future-ready design
More 30X50 House Plan Options
At HouseGyan, you can explore:
1BHK, 2BHK, 3BHK & duplex house plans
Ground floor, first floor & G+1 layouts
Vastu-compliant house drawings
Modern 2D plans and 3D elevation designs
Find More House Plans at HouseGyan
Discover a wide range of plot-size-based house plans, customized layouts, and modern home designs suitable for Indian living standards — all in one place.
Get Your Custom 30X50 House Plan Today!
HouseGyan offers:
Professionally designed 2D & 3D custom house drawing
Fast delivery in PDF & CAD formats
Custom planning as per Vastu and lifestyle needs
Expert architectural support from start to finish
Final Thoughts
This 30X50 South Facing 1BHK Ground Floor House Plan is a smart choice for those looking for a spacious yet simple home on a 1500 sqft plot. With thoughtful space planning, multiple toilets, and utility areas, it delivers comfort, practicality, and long-term value.
Explore more 30X50 house plans and get your dream home designed with HouseGyan!

The information contained on Housegyan.com is provided for general informational purposes only. While we strive to ensure that the content on our website is accurate and current, we make no warranties or representations of any kind, express or implied, about the completeness, accuracy, reliability, suitability, or availability with respect to the website or the information, products, services, or related graphics contained on the website for any purpose. Housegyan.com will not be liable for any loss or damage including, without limitation, indirect or consequential loss or damage, or any loss or damage whatsoever arising from loss of data or profits arising out of, or in connection with, the use of this website.
Third party logos and marks are registered trademarks of their respective owners. All rights reserved.













