30X50 South East Facing 2BHK Ground Floor House Plan | 1500 Sqft Plot Floor Plan
Description
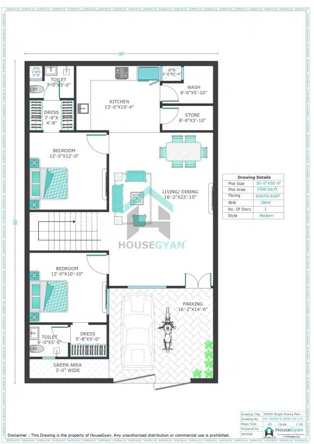
Your search for the perfect 30x50 south east facing 2BHK house plan ends here! This 1500 sqft design includes 2 bedrooms, a hall, and 2 bathrooms, offering comfort with efficient use of space.
At HouseGyan, we specialize in Custom House Drawings for 30x50 plots. Whether you dream of a modern single-floor home or a stylish multi-storey design, we’ll create the ideal plan for you. Want to know the estimated cost of building this house? Use our House Construction Price Calculator today and plan your budget smartly.
Ratings & Reviews
House Gyan all services
Loading...30X50 House Plan | 1500 Sqft Plot House Plan | 2BHK South East Facing Ground Floor Plan
If you are planning a compact yet perfectly balanced home layout, this 30X50 South East Facing 2BHK House Plan is an ideal choice. Designed on a 1500 sqft plot, this house plan offers smart space distribution with essential rooms, modern movement flow, and Vastu-friendly orientation.
30X50 House Plan – South East Facing Layout
A South East Facing layout is considered highly favourable for kitchens, utilities and work-related areas. This 2BHK plan brings together comfort, privacy, and functionality in a well-planned ground-floor design.
Key Features of This Plan:
2 Spacious Bedrooms for comfortable living
2 Toilets – attached + common for easy access
Front Parking Area suitable for a car or two-wheeler
Large Hall / Living Area for family gatherings
Open Dining Space connected to the hall
Well-Planned Kitchen placed in the auspicious South-East zone
Store Room inside or near the kitchen
Wash Area for utility and daily chores
This plan ensures smooth movement between rooms and ample natural ventilation, making it ideal for small to medium-sized families.
Why Choose a 30X50 House Plan?
A 30X50 plot (1500 sqft) is one of the most practical sizes for urban and semi-urban Indian cities. Here’s why homeowners love this layout:
Perfect balance between space and budget
Supports 2BHK, 3BHK, and duplex layouts easily
Allows space for parking, garden, or sit-out
Ideal for both rental units and self-use homes
Works well with modern, traditional, or Vastu-based designs
More 30X50 House Plan Options
Explore more design-ready 30X50 layouts such as:
30X50 East Facing 2BHK Ground Floor Plan
30X50 North Facing 3BHK First Floor Plan
30X50 West Facing 1BHK Compact Plan
30X50 Duplex House Plans
HouseGyan offers dozens of variations tailored for different budgets and family sizes.
Find More House Plans at HouseGyan
Looking for Vastu-friendly, affordable, and custom-designed house plans?
HouseGyan provides:
2D House Maps
3D Elevation Designs
Interior Layouts
Construction Cost Calculators
Customized House Plans
You can browse plots ranging from 400 sqft to 5000+ sqft.
Get Your Custom 30X50 House Plan Today!
Want a design that fits your exact needs—number of rooms, direction, budget, and style?
HouseGyan can create a fully custom house plan tailored to your plot size and requirements.
Final Thoughts
This 30X50 South East Facing 2BHK House Plan is perfect if you want a spacious, practical, and Vastu-approved design. With dedicated space for parking, hall, dining, kitchen, store, wash area, and bedrooms, it ensures comfort and convenience for everyday living.

The information contained on Housegyan.com is provided for general informational purposes only. While we strive to ensure that the content on our website is accurate and current, we make no warranties or representations of any kind, express or implied, about the completeness, accuracy, reliability, suitability, or availability with respect to the website or the information, products, services, or related graphics contained on the website for any purpose. Housegyan.com will not be liable for any loss or damage including, without limitation, indirect or consequential loss or damage, or any loss or damage whatsoever arising from loss of data or profits arising out of, or in connection with, the use of this website.
Third party logos and marks are registered trademarks of their respective owners. All rights reserved.













