30X50 North Facing 2BHK Ground Floor House Plan | 1500 Sqft Plot Floor Plan
Description
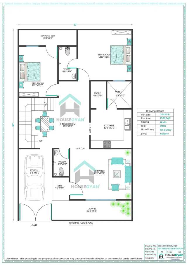
This 30X50 north-facing 2BHK ground floor house plan is designed to maximize space efficiently within a 1500 sqft plot. This house plan consists of 2 bedrooms,1 Hall and 2 bathrooms within 1500 square feet. If you're looking for a 30X50 house plan, you've come to the right place. Here at HouseGyan architects, we specialize in designing and creating floor plans for all types of 30X50 plot size houses. Whether you're looking for a traditional two-story home or a more modern ranch-style home, we can help you create the perfect 30*50 floor plan for your needs.
Whether you're looking to build your dream home with a Custom House Drawing or want a compact, modern layout, this 1500 sqft floor plan is an excellent choice for a north-facing plot. To get an rough idea of the expenses, use our House Construction Price Calculator to estimate your costs effectively.
Ratings & Reviews
House Gyan all services
Loading...
The information contained on Housegyan.com is provided for general informational purposes only. While we strive to ensure that the content on our website is accurate and current, we make no warranties or representations of any kind, express or implied, about the completeness, accuracy, reliability, suitability, or availability with respect to the website or the information, products, services, or related graphics contained on the website for any purpose. Housegyan.com will not be liable for any loss or damage including, without limitation, indirect or consequential loss or damage, or any loss or damage whatsoever arising from loss of data or profits arising out of, or in connection with, the use of this website.
Third party logos and marks are registered trademarks of their respective owners. All rights reserved.













