30X50 North East Facing 2BHK Ground Floor House Plan | 1500 Sqft Plot Floor Plan
Description
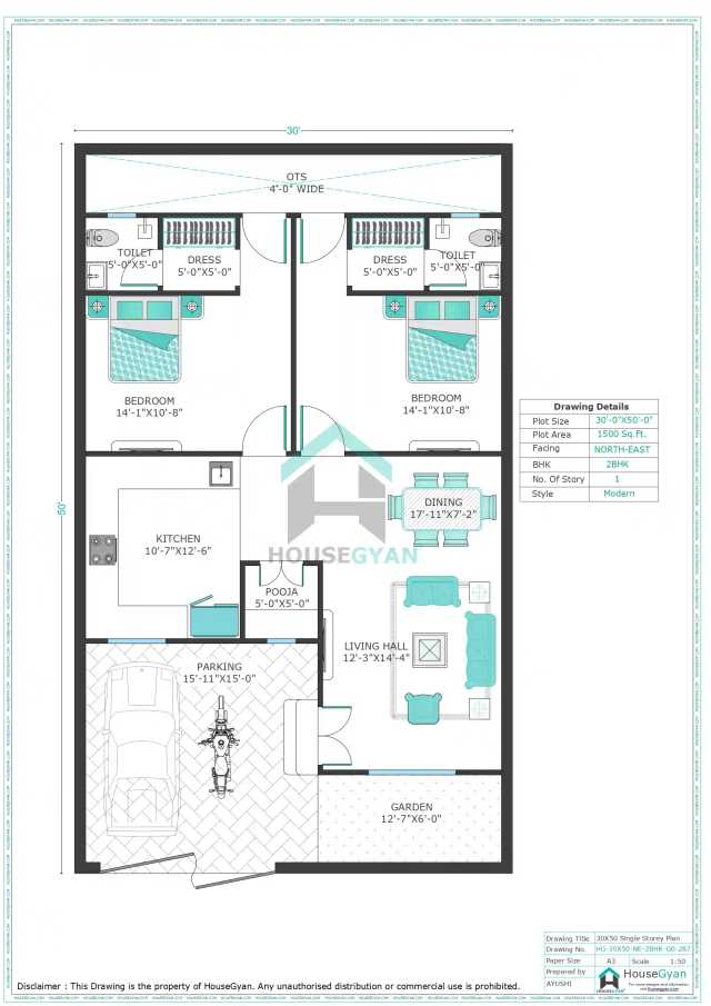
Your search for the perfect 30x50 northeast facing 2BHK house plan ends here! This 1500 sqft design includes 2 bedrooms, a hall, and 2 bathrooms, offering comfort with efficient use of space.
At HouseGyan, we specialize in Custom House Drawings for 30x50 plots. Whether you dream of a modern single-floor home or a stylish multi-storey design, we’ll create the ideal plan for you. Want to know the estimated cost of building this house? Use our House Construction Price Calculator today and plan your budget smartly.
Ratings & Reviews
House Gyan all services
Loading...30X50 House Plan | 1500 Sqft Plot House Plan | 2BHK North East Facing Ground Floor Plan
This 30X50 North East facing 2BHK ground floor house plan is designed for homeowners who want a vastu-friendly, spacious, and well-balanced layout on a 1500 sq ft plot. The house plan smartly combines comfort, functionality, and positive energy flow, making it ideal for small to medium-sized families.
30X50 House Plan – North East Facing Layout
The North East facing layout is considered highly auspicious as per Vastu Shastra. This thoughtfully planned home includes:
2 Spacious Bedrooms for privacy and comfort
2 Toilets placed for convenience and hygiene
Living Hall designed for natural light and ventilation
Dining Area positioned centrally for easy access
Kitchen planned as per vastu norms for positive energy
Pooja Room in an ideal location for spiritual harmony
Parking Area for safe vehicle accommodation
The layout ensures smooth movement between spaces while maintaining openness and functionality.
Why Choose a 30X50 House Plan?
A 30X50 house plan is one of the most preferred plot sizes due to its perfect balance of space and affordability. Key benefits include:
Ideal for urban and semi-urban residential areas
Easy to customize for future expansion
Supports vastu-compliant designs effortlessly
Suitable for both independent homes and rental purposes
This plot size allows homeowners to enjoy comfort without compromising on design flexibility.
More 30X50 House Plan Options
At HouseGyan, you can explore multiple 30X50 house plan designs, including:
East, West, North, and South-facing layouts
2BHK, 3BHK, and duplex house plans
Ground floor, first floor, and G+1 options
Vastu-compliant and modern architectural designs
Each plan is created to suit different lifestyle needs and budgets.
Find More House Plans at HouseGyan
HouseGyan offers a wide range of ready-made house plans, including:
Small house plans
Luxury home designs
Floor-wise layouts
Custom house drawings as per your plot size and requirements
All plans are designed by experienced professionals with a focus on functionality and vastu.
Get Your Custom 30X50 House Plan Today!
Want changes in room size, layout, or orientation?
HouseGyan provides custom house plan services, where you can get a personalized design tailored to your family’s needs, budget, and vastu preferences.
Final Thoughts
This 30X50 North East Facing 2BHK Ground Floor House Plan is an excellent choice for those seeking a harmonious, practical, and future-ready home on a 1500 sq ft plot. With smart space utilization and vastu-friendly planning, it offers the perfect foundation for a comfortable lifestyle.

The information contained on Housegyan.com is provided for general informational purposes only. While we strive to ensure that the content on our website is accurate and current, we make no warranties or representations of any kind, express or implied, about the completeness, accuracy, reliability, suitability, or availability with respect to the website or the information, products, services, or related graphics contained on the website for any purpose. Housegyan.com will not be liable for any loss or damage including, without limitation, indirect or consequential loss or damage, or any loss or damage whatsoever arising from loss of data or profits arising out of, or in connection with, the use of this website.
Third party logos and marks are registered trademarks of their respective owners. All rights reserved.













