26X50 East Facing 3BHK Ground Floor House Plan | 1300 Sqft Plot Floor Plan
Description
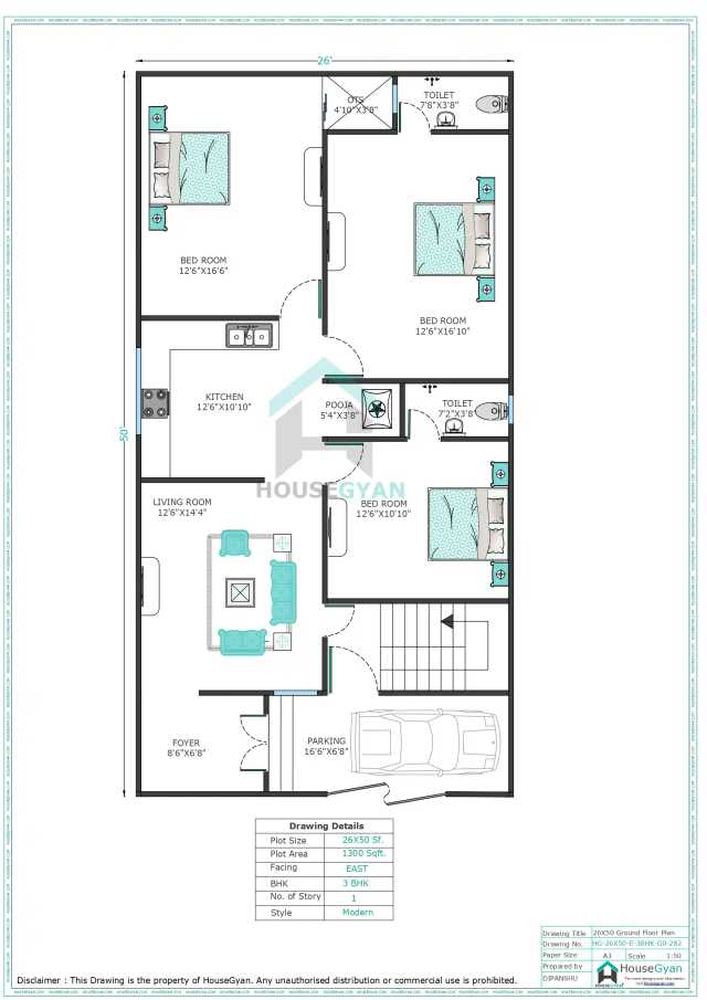
This 26X50 east-facing 3BHK ground floor house plan is designed to maximize space efficiently within a 1300 sqft plot. This house plan consists of 3 bedrooms,1 Hall and 3 bathrooms within 1300 square feet. If you're looking for a 26X50 house plan, you've come to the right place. Here at HouseGyan architects, we specialize in designing and creating floor plans for all types of 26X50 plot size houses. Whether you're looking for a traditional single-story home or a more modern ranch-style home, we can help you create the perfect 26*50 floor plan for your needs.
Whether you're looking to build your dream home with a Custom House Drawing or want a compact, modern layout, this 1300 sqft floor plan is an excellent choice for a west-facing plot. To get an rough idea of the expenses, use our House Construction Price Calculator to estimate your costs effectively.
Ratings & Reviews
House Gyan all services
Loading...26X50 House Plan | 1300 Sqft Plot House Plan | 3BHK East Facing Ground Floor Plan
This 26X50 East Facing 3BHK Ground Floor House Plan is designed on a 1300 sq ft plot, offering a perfect balance of comfort, functionality, and Vastu-friendly planning. Ideal for medium-sized families, this house plan layout ensures well-defined living spaces with smooth movement throughout the home.
26X50 House Plan – East Facing Layout
The east-facing orientation allows ample morning sunlight and positive energy into the house. The layout includes 3 spacious bedrooms, a welcoming living area, dining space, and a well-planned kitchen. Additional features like a foyer, store room, parking space, and staircase enhance practicality and future expansion options.
Key Spaces Included:
3 Bedrooms
Living Room
Dining Area
Kitchen
2 Toilets
Store Room
Foyer
Parking Area
Staircase
Why Choose a 26X50 House Plan?
A 26X50 house plan is ideal for urban plots where space optimization is crucial. It offers enough width for proper room sizes while maintaining privacy and ventilation. This size works well for 3BHK ground floor homes, making it suitable for families planning long-term living or rental potential.
More 26X50 House Plan Options
Looking for variations? You can explore:
2BHK or 4BHK layouts
Duplex custom house plans
Vastu-compliant designs
Ground + first floor options
Custom interior and elevation designs
Find More House Plans at HouseGyan
At HouseGyan, you can explore a wide range of ready-made house plans, floor layouts, and custom design solutions. Whether you need compact homes or luxury layouts, HouseGyan helps you find plans that suit your plot size, budget, and lifestyle.
Get Your Custom 26X50 House Plan Today!
Want changes in room sizes, toilet count, or parking placement? Get a custom-designed 26X50 house plan tailored to your requirements with expert architectural guidance from HouseGyan.
Final Thoughts
This 26X50 East Facing 3BHK Ground Floor House Plan is a smart choice for families seeking a comfortable, practical, and future-ready home on a 1300 sq ft plot. With well-planned spaces and essential amenities, it offers both convenience and long-term value.

The information contained on Housegyan.com is provided for general informational purposes only. While we strive to ensure that the content on our website is accurate and current, we make no warranties or representations of any kind, express or implied, about the completeness, accuracy, reliability, suitability, or availability with respect to the website or the information, products, services, or related graphics contained on the website for any purpose. Housegyan.com will not be liable for any loss or damage including, without limitation, indirect or consequential loss or damage, or any loss or damage whatsoever arising from loss of data or profits arising out of, or in connection with, the use of this website.
Third party logos and marks are registered trademarks of their respective owners. All rights reserved.











