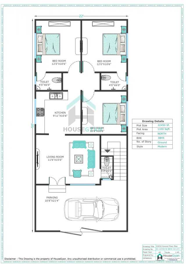
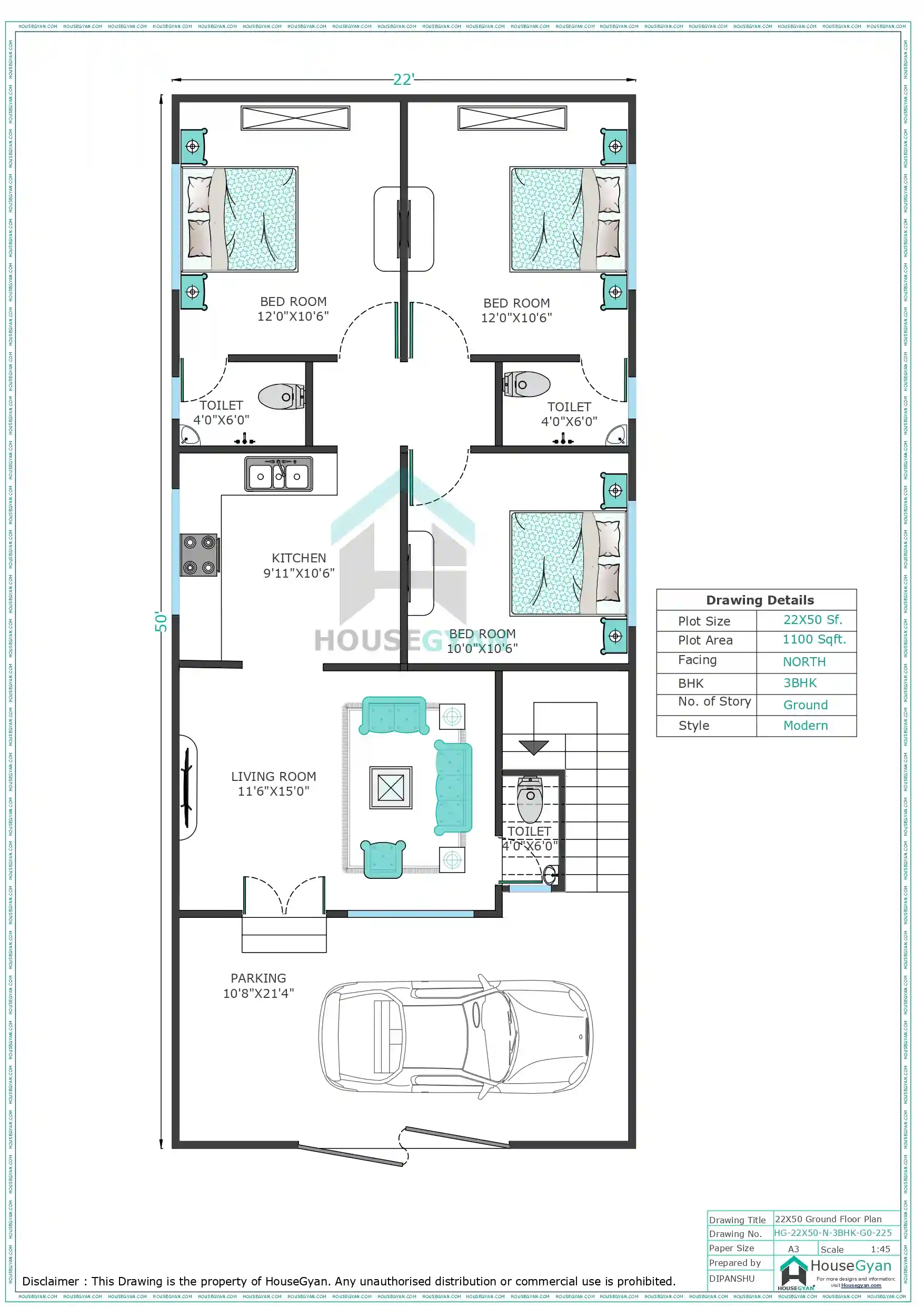
22X50 North Facing 3BHK Ground Floor House Plan | 1100 Sqft Plot Floor Plan
Description
This 22x50 north-facing ground floor house plan is designed for families who want both style and function in a 1100 sqft space.
The plan includes 3 bedrooms, 1 hall, and 3 bathrooms, making it a practical option for modern living. At HouseGyan Architects, we design tailored Custom House Drawings to fit your lifestyle, preferences, and budget. Whether you’re looking for a compact, efficient floor plan or a luxurious multi-storey home, we have the perfect design for you. For a quick cost estimation, try our House Construction Price Calculator—a helpful tool to understand your expenses before you begin construction.
Ratings & Reviews
House Gyan all services
Loading...22X50 House Plan | 1100 Sqft Plot Floor Plan | 3BHK North Facing Ground Floor House Plan
22X50 North Facing House Plan – Ground Floor Layout
This 22X50 North Facing 3BHK Ground Floor House Plan is beautifully designed for an 1100 sqft plot, offering a perfect combination of functionality, comfort, and modern living. The house plan layout includes 3 bedrooms, a spacious living room, dining area, kitchen, 3 toilets, parking space, and staircase, making it ideal for small to medium-sized families.
The North-facing orientation ensures abundant natural light and positive energy throughout the day, creating a bright and welcoming atmosphere inside the home.
Key Features of This House Drawing
3 Bedrooms – Well-ventilated and designed for privacy and comfort.
Living Room – Spacious central area ideal for family gatherings.
Dining Area – Seamlessly connected to the kitchen for convenience.
Kitchen – Compact yet functional with ample storage space.
3 Toilets – Includes attached and common for practical use.
Parking Area – Adequate space for car or two-wheeler.
Staircase – Strategically placed for easy movement and future floor expansion.
Store/Utility Option – Can be customized based on household needs.
Why Choose This 22X50 3BHK North Facing Ground Floor House Plan?
Ideal for 1100 sqft North-facing plots.
Perfect balance of modern design and practical layout.
Vastu-friendly plan ensuring natural light and ventilation.
Space-efficient design suitable for urban and compact plots.
Can be customized into duplex or rental-friendly units.
More 22X50 House Drawing Options at HouseGyan
At HouseGyan, explore a variety of customized 22X50 house plan options:
Ground floor, first floor, and duplex layouts.
2D plans and 3D front elevation designs.
Vastu-compliant and modern home plans.
Tailored designs based on your lifestyle and family size.
Get Your Custom House Plan with HouseGyan
We provide:
2D & 3D professional house drawings.
Quick PDF delivery with custom revisions.
Vastu-aligned layouts for a positive home environment.
Personalized consultations to design your dream home.
Final Thoughts
This 22X50 North Facing 3BHK Ground Floor House Plan on an 1100 sqft plot is an excellent choice for families who value comfort, functionality, and style. With 3 bedrooms, dining, kitchen, and parking, this design ensures a balanced and convenient lifestyle.
Explore more 22X50 house plans, 3BHK layouts, and customized designs only at HouseGyan!

The information contained on Housegyan.com is provided for general informational purposes only. While we strive to ensure that the content on our website is accurate and current, we make no warranties or representations of any kind, express or implied, about the completeness, accuracy, reliability, suitability, or availability with respect to the website or the information, products, services, or related graphics contained on the website for any purpose. Housegyan.com will not be liable for any loss or damage including, without limitation, indirect or consequential loss or damage, or any loss or damage whatsoever arising from loss of data or profits arising out of, or in connection with, the use of this website.
Third party logos and marks are registered trademarks of their respective owners. All rights reserved.











