21X30 East Facing 2BHK Ground Floor House Plan | 630 Sqft Plot Floor Plan
Description
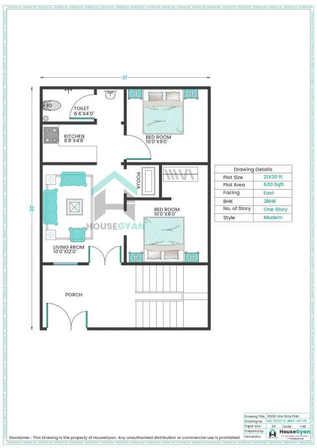
This 21X30 east-facing 2BHK ground floor house plan is designed to maximize space efficiently within a 630 sqft plot. This house plan consists of 2 bedrooms, 1 Hall and 1 bathrooms within 630 square feet. If you're looking for a 21X30 house plan, you've come to the right place. Here at HouseGyan architects, we specialize in designing and creating floor plans for all types of 21X30 plot size houses. Whether you're looking for a traditional multi stories home or a more modern ranch-style home, we can help you create the perfect 21*30 floor plan for your needs.
Whether you're looking to build your dream home with a Custom House Drawing or want a compact, modern layout, this 630 sqft floor plan is an excellent choice for a east-facing plot. To get an rough idea of the expenses, use our House Construction Price Calculator to estimate your costs effectively.
Ratings & Reviews
House Gyan all services
Loading...21X30 House Plan | 630 Sqft Plot Floor Plan | 2BHK East Facing Ground Floor House Plan
If you're searching for a practical and compact house plan for a 630 sqft plot, this 21X30 East Facing 2BHK Ground Floor House Plan is a perfect match. Designed with efficiency and functionality in mind, this layout is ideal for nuclear families, couples, or individuals who want a simple, low-maintenance home that follows Vastu guidelines. You can also turn it into a custom house plan based on your preferences and space requirements.
21X30 East Facing House Plan – Ground Floor Layout
Living Room with Natural Light : As you enter from the east-facing entrance, you’re welcomed into a cozy living room. The layout allows for ample sunlight, ventilation, and enough space to fit seating arrangements and a TV unit comfortably.
2 Well-Planned Bedrooms :
Master Bedroom: Smartly placed for privacy, with provision for wardrobes and an attached toilet if needed.
Second Bedroom: Ideal for children, guests, or elders with close access to a common bathroom.
This house drawing ensures functional space utilization in a compact format.
Functional Kitchen with Dining Space
The kitchen is placed in the southeast corner to align with Vastu principles. The design offers good storage, ventilation, and a compact dining area nearby for daily use.
2 Bathrooms :
One attached to the master bedroom (optional)
One common bathroom, accessible from the hall and second bedroom
Pooja Nook : A small pooja space can be carved out near the living area or northeast corner to add spiritual harmony to the home.
Porch Area : A compact porch is included in this house plan for two-wheeler parking or as a front sit-out space.
Why Choose This 21X30 2BHK House Plan?
Designed for 630 sqft east-facing plots
Efficient 2BHK layout with smart zoning
Fully Vastu-compliant house drawing
Includes kitchen, dining, porch, and optional pooja room
Ideal for small families and senior citizens
Easily modifiable into a custom house plan based on your needs
More 21X30 House Drawing Options to Explore
South, North, and West-facing layout variations
Single-floor and future-ready expansion layouts
1BHK or convertible 3BHK options
Available in 2D layout or custom house drawing in 3D
Modern and traditional front elevation styles
Get Your Custom House Plan at HouseGyan
At HouseGyan, we offer personalized home designs to suit your lifestyle, plot dimensions, and budget. Our offerings include:
Tailored 2D & 3D house drawings
Vastu-friendly custom house plans
Front elevation concepts
Construction-ready PDFs & expert guidance
Final Thoughts
This 21X30 East Facing 2BHK Ground Floor House Plan is perfect for those seeking simplicity, functionality, and Vastu alignment on a compact 630 sqft plot. With thoughtful planning and scope for customization, this custom house plan delivers everything you need for peaceful living.
Explore more house plans and custom house drawings now at HouseGyan!

The information contained on Housegyan.com is provided for general informational purposes only. While we strive to ensure that the content on our website is accurate and current, we make no warranties or representations of any kind, express or implied, about the completeness, accuracy, reliability, suitability, or availability with respect to the website or the information, products, services, or related graphics contained on the website for any purpose. Housegyan.com will not be liable for any loss or damage including, without limitation, indirect or consequential loss or damage, or any loss or damage whatsoever arising from loss of data or profits arising out of, or in connection with, the use of this website.
Third party logos and marks are registered trademarks of their respective owners. All rights reserved.











