20X70 East Facing 3BHK Ground Floor House Plan | 1400 Sqft Plot Floor Plan
Description
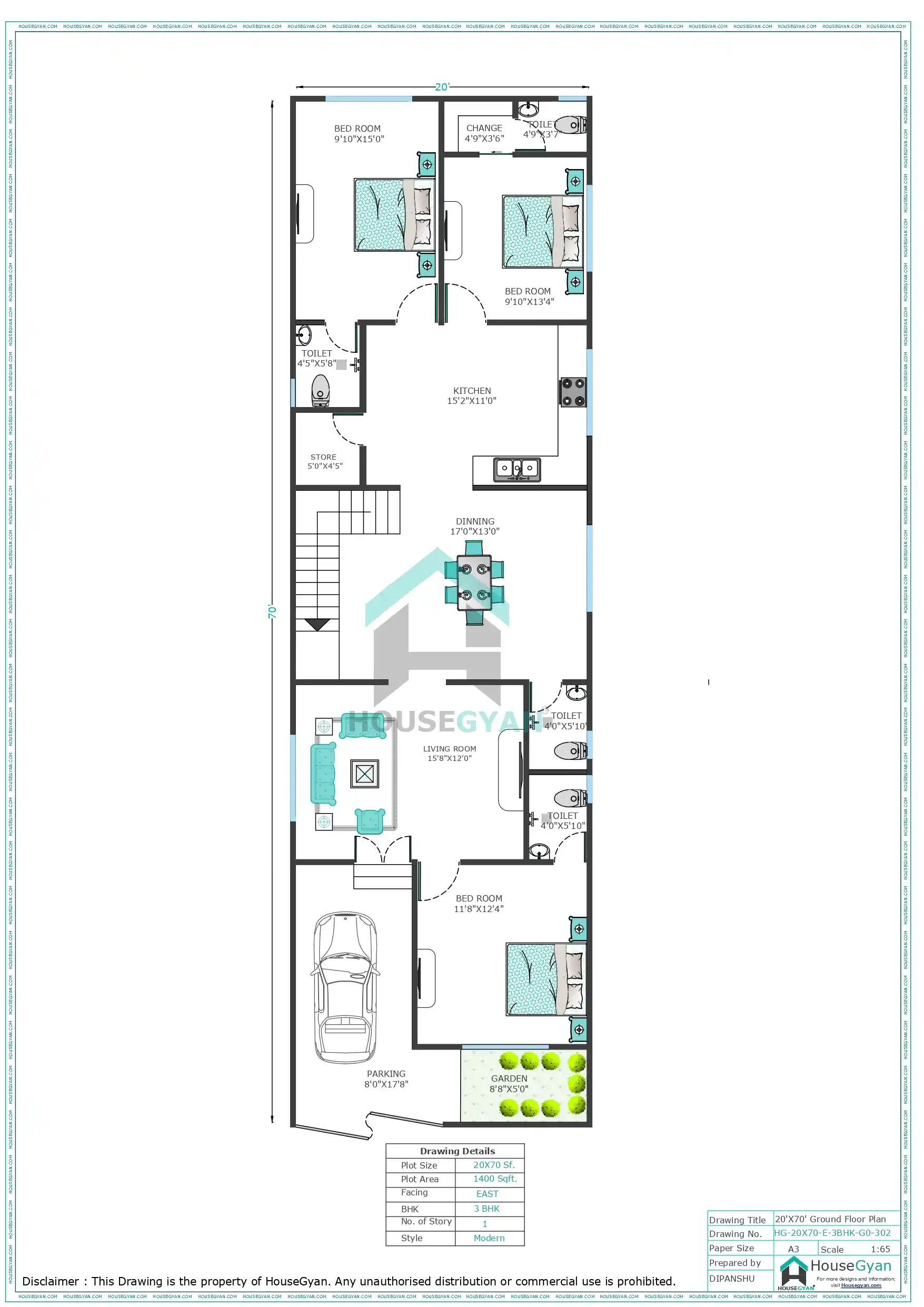
This 20X70 east-facing 3BHK ground floor house plan is designed to maximize space efficiently within a 1400 sqft plot. This house plan consists of 3 bedrooms,1 Hall and 4 bathrooms within 1400 square feet. If you're looking for a 20X70 house plan, you've come to the right place. Here at HouseGyan architects, we specialize in designing and creating floor plans for all types of 20X70 plot size houses. Whether you're looking for a traditional multi stories home or a more modern ranch-style home, we can help you create the perfect 20*70 floor plan for your needs.
Whether you're looking to build your dream home with a Custom House Drawing or want a compact, modern layout, this 1400 sqft floor plan is an excellent choice for a east-facing plot. To get an rough idea of the expenses, use our House Construction Price Calculator to estimate your costs effectively.
Ratings & Reviews
House Gyan all services
Loading...20X70 House Plan | 1400 Sqft Plot House Plan | 3BHK East Facing Ground Floor Plan
This 20X70 East Facing 3BHK Ground Floor House Plan is carefully designed for a 1400 sq ft plot, offering spacious interiors, modern amenities, and efficient space utilization. The house plan layout is ideal for families looking for a comfortable home with premium features within a long rectangular plot.
20X70 House Plan – East Facing Ground Floor Layout
The East-facing orientation ensures excellent natural light, proper ventilation, and a positive living environment. The ground floor layout includes:
3 Bedrooms designed for comfort, privacy, and ventilation
Living Room serving as the central family gathering space
Dining Area placed conveniently for daily use
Kitchen with practical workspace and storage planning
4 Toilets (attached + common) for enhanced convenience
Store Room for organized household storage
Pooja Room dedicated to spiritual activities
Change Room attached for added bedroom convenience
Staircase provision for future floor expansion
Parking Area ensuring vehicle safety and easy access
Garden Space adding greenery and natural freshness to the home
This layout maintains a perfect balance between private spaces and common areas.
Why Choose a 20X70 House Plan?
A 20X70 plot size is ideal for modern residential homes due to its flexibility and efficient zoning:
Perfect for spacious 3BHK layouts
Allows long, well-ventilated room arrangements
Includes outdoor features like parking and garden
Supports future vertical expansion
Suitable for urban and semi-urban residential areas
More 20X70 House Plan Options
At HouseGyan, you can explore multiple 20X70 house plan variations, including:
Ground floor, first floor, and duplex designs
Vastu-compliant layouts
Modern 2D floor plans & 3D elevation options
Fully custom house drawing
Find More House Plans at HouseGyan
HouseGyan offers:
Professional 2D & 3D house drawings
Quick delivery in PDF/CAD formats
Vastu-aligned architectural planning
Expert consultation for residential construction
Get Your Custom 20X70 House Plan Today!
Want to modify room sizes or add custom features?
HouseGyan provides personalized house plans based on your plot dimensions, family needs, and budget.
Final Thoughts
This 20X70 East Facing 3BHK Ground Floor House Plan on a 1400 sq ft plot is a perfect blend of comfort, functionality, and modern living. With 3 bedrooms, garden, parking, pooja room, and ample storage, it is an excellent choice for families seeking a spacious yet well-organized home.

The information contained on Housegyan.com is provided for general informational purposes only. While we strive to ensure that the content on our website is accurate and current, we make no warranties or representations of any kind, express or implied, about the completeness, accuracy, reliability, suitability, or availability with respect to the website or the information, products, services, or related graphics contained on the website for any purpose. Housegyan.com will not be liable for any loss or damage including, without limitation, indirect or consequential loss or damage, or any loss or damage whatsoever arising from loss of data or profits arising out of, or in connection with, the use of this website.
Third party logos and marks are registered trademarks of their respective owners. All rights reserved.













