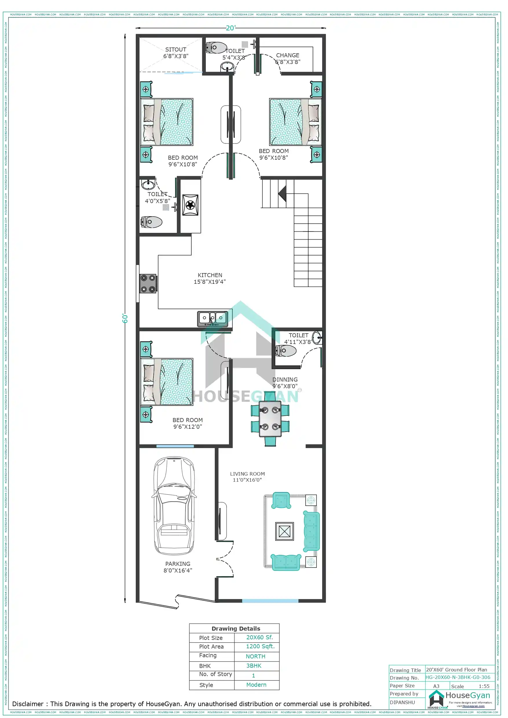
20X60 North Facing 3BHK Ground Floor House Plan | 1200 Sqft Plot Floor Plan
Description
This 20X60 north-facing 3BHK ground floor house plan is designed to maximize space efficiently within a 1200 sqft plot. This house plan consists of 3 bedroom, 1 hall, and 3 bathrooms within 1200 square feet. If you're looking for a 20X60 house plan, you've come to the right place. Here at HouseGyan architects, we specialize in designing and creating floor plans for all types of 20X60 plot size houses. Whether you're looking for a traditional single-story home or a more modern ranch-style home, we can help you create the perfect 20*60 floor plan for your needs.
Whether you're looking to build your dream home with a Custom House Drawing or want a compact, modern layout, this 1200 sqft floor plan is an excellent choice for a north-facing plot. To get an rough idea of the expenses, use our House Construction Price Calculator to estimate your costs effectively.
Ratings & Reviews
House Gyan all services
Loading...20X60 House Plan | 1200 Sqft Plot House Plan | 3BHK North Facing Ground Floor Plan
This 20X60 North Facing 3BHK Ground Floor House Plan is thoughtfully designed for a 1200 sq ft plot, offering spacious rooms, modern amenities, and a comfortable living environment. The house plan layout is ideal for families seeking a well-ventilated and vastu-friendly home.
20X60 House Plan – North Facing Ground Floor Layout
The North-facing orientation ensures balanced daylight, pleasant ventilation, and positive energy throughout the house. The well-planned ground floor layout includes:
3 Bedrooms designed for privacy and comfort
3 Toilets (attached + common) for everyday convenience
Living Room serving as a central family space
Dining Area placed close to the kitchen
Kitchen with efficient workspace and storage
Pooja Room dedicated to spiritual activities
Change Room attached for added bedroom convenience
Sit-out Area for relaxation and fresh air
Internal Staircase for future floor expansion
Parking Area ensuring vehicle safety and easy access
This layout maintains smooth circulation between common and private spaces while maximizing usability.
Why Choose a 20X60 House Plan?
A 20X60 plot size offers flexibility and efficient planning options, making it a popular residential choice:
Ideal for spacious 3BHK ground floor homes
Better ventilation and elongated room planning
Vastu-friendly layout possibilities
Scope for future vertical expansion
Cost-effective construction and maintenance
More 20X60 House Plan Options
At HouseGyan, you can explore various 20X60 house plan designs, including:
Ground floor, first floor, and duplex layouts
Vastu-compliant house plans
Modern 2D floor plans & 3D elevation designs
Fully customized home designs
Find More House Plans at HouseGyan
HouseGyan offers:
Professional 2D & 3D house drawings
Quick delivery in PDF/CAD formats
Vastu-aligned architectural planning
Expert consultation for residential projects
Get Your Custom 20X60 House Plan Today!
Looking to customize room sizes or add special features?
HouseGyan provides custom house plans tailored to your plot size, lifestyle, and budget.
Final Thoughts
This 20X60 North Facing 3BHK Ground Floor House Plan on a 1200 sq ft plot delivers a perfect blend of comfort, functionality, and modern living. With features like pooja room, sit-out, change room, and parking, it is an excellent choice for contemporary families.
Explore more 20X60 house plans and premium 3BHK designs only at HouseGyan!

The information contained on Housegyan.com is provided for general informational purposes only. While we strive to ensure that the content on our website is accurate and current, we make no warranties or representations of any kind, express or implied, about the completeness, accuracy, reliability, suitability, or availability with respect to the website or the information, products, services, or related graphics contained on the website for any purpose. Housegyan.com will not be liable for any loss or damage including, without limitation, indirect or consequential loss or damage, or any loss or damage whatsoever arising from loss of data or profits arising out of, or in connection with, the use of this website.
Third party logos and marks are registered trademarks of their respective owners. All rights reserved.













