20X60 East Facing 2BHK Ground Floor House Plan | 1200 Sqft Plot Floor Plan
Description
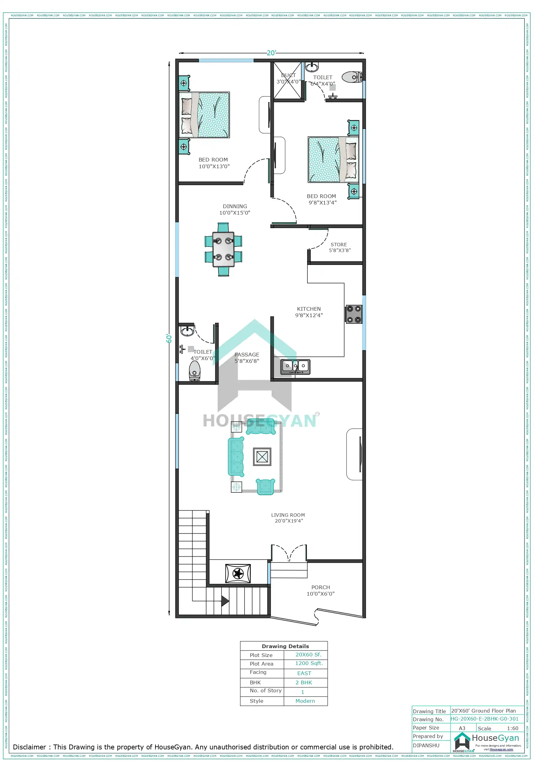
This 20X60 east-facing 2BHK ground floor house plan is designed to maximize space efficiently within a 1200 sqft plot. This house plan consists of 2 bedroom, 1 hall, and 2 bathrooms within 1200 square feet. If you're looking for a 20X60 house plan, you've come to the right place. Here at HouseGyan architects, we specialize in designing and creating floor plans for all types of 20X60 plot size houses. Whether you're looking for a traditional single-story home or a more modern ranch-style home, we can help you create the perfect 20*60 floor plan for your needs.
Whether you're looking to build your dream home with a Custom House Drawing or want a compact, modern layout, this 1200 sqft floor plan is an excellent choice for a east-facing plot. To get an rough idea of the expenses, use our House Construction Price Calculator to estimate your costs effectively.
Ratings & Reviews
House Gyan all services
Loading...20X60 House Plan | 1200 Sqft Plot House Plan | 2BHK East Facing Ground Floor Plan
This 20X60 East Facing 2BHK Ground Floor House Plan is well-planned for a 1200 sq ft plot, offering a balanced combination of comfort, functionality, and modern living. The house plan layout is ideal for small to medium families seeking a spacious yet efficient home design.
20X60 House Plan – East Facing Ground Floor Layout
The East-facing orientation allows abundant morning sunlight and positive energy, creating a bright and welcoming home environment. The ground floor layout includes:
2 Bedrooms designed for privacy and comfort
Living Room serving as the main family gathering space
Dining Area conveniently located near the kitchen
Kitchen with efficient workspace and storage planning
2 Toilets (attached + common) for daily convenience
Store Room for organized household storage
Pooja Room dedicated to prayer and peaceful moments
Staircase provision for future floor expansion
Porch Area enhancing entry and usability
This layout ensures smooth circulation and practical zoning of private and common areas.
Why Choose a 20X60 House Plan?
A 20X60 plot size is highly suitable for modern residential construction due to its flexible planning options:
Ideal for 2BHK family homes
Better space utilization with elongated layouts
Comfortable room sizes with proper ventilation
Scope for future vertical expansion
Cost-effective and easy to maintain
More 20X60 House Plan Options
At HouseGyan, you can explore multiple 20X60 house plan designs, including:
Ground floor, first floor, and duplex layouts
Vastu-compliant house plans
Modern 2D layouts and 3D elevation designs
Fully custom house plans as per lifestyle needs
Find More House Plans at HouseGyan
HouseGyan provides:
Professional 2D & 3D house drawings
Quick delivery in PDF/CAD formats
Vastu-aligned architectural planning
Expert consultation for residential projects
Get Your Custom 20X60 House Plan Today!
Need layout changes or custom room arrangements?
HouseGyan offers personalized house plans tailored to your plot size, family needs, and budget.
Final Thoughts
This 20X60 East Facing 2BHK Ground Floor House Plan on a 1200 sq ft plot offers a practical and comfortable living solution. With 2 bedrooms, pooja room, store, porch, and well-organized living spaces, it perfectly suits modern family requirements.
Explore more 20X60 house plans and premium 2BHK designs only at HouseGyan

The information contained on Housegyan.com is provided for general informational purposes only. While we strive to ensure that the content on our website is accurate and current, we make no warranties or representations of any kind, express or implied, about the completeness, accuracy, reliability, suitability, or availability with respect to the website or the information, products, services, or related graphics contained on the website for any purpose. Housegyan.com will not be liable for any loss or damage including, without limitation, indirect or consequential loss or damage, or any loss or damage whatsoever arising from loss of data or profits arising out of, or in connection with, the use of this website.
Third party logos and marks are registered trademarks of their respective owners. All rights reserved.













