20X56 West Facing 1BHK Ground Floor House Plan | 1120 Sqft Plot Floor Plan
Description
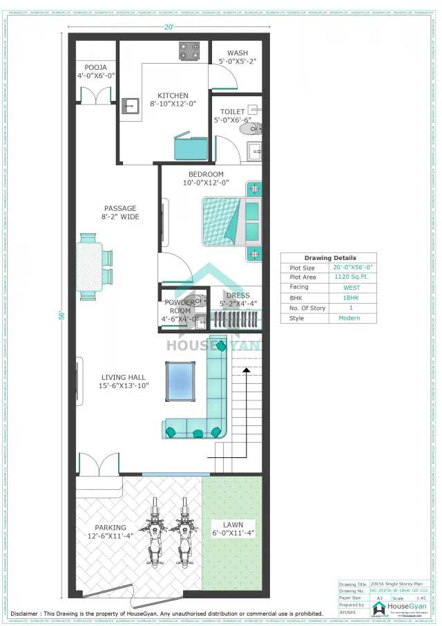
Looking for a 20x56 west-facing 1BHK house plan? This design makes full use of a 1120 sqft plot, featuring 1 bedrooms, a spacious hall, and 1 bathrooms—perfect for modern family living.
At HouseGyan, we create Custom House Drawing tailored to your lifestyle. Whether you want a compact single-storey home or a grand multi-storey structure, our expert architects can bring your vision to life. Before starting construction, use our House Construction Price Calculator to get a clear idea of your budget and plan efficiently.
Ratings & Reviews
House Gyan all services
Loading...20X56 House Plan | West Facing 1BHK Ground Floor House Plan | 1120 Sqft Plot Floor Plan
This 20X56 West Facing 1BHK Ground Floor House Plan is thoughtfully designed for an 1120 sq ft plot, offering a spacious and well-organized single-floor layout. With open green spaces, separate utility areas, and a dedicated pooja room, this house plan is ideal for small families, senior citizens, or peaceful independent living.
20X56 House Plan – West Facing Ground Floor Layout
The west-facing orientation is planned to ensure proper airflow, balanced lighting, and efficient space utilization. The ground floor layout includes:
Parking Area for safe and convenient vehicle space
Lawn Area adding greenery and visual openness
Living Hall serving as the main family sitting space
Passage Area ensuring smooth internal circulation
1 Bedroom designed for privacy and comfort
Toilet attached/common for daily use
Powder Room for guests and added convenience
Kitchen with efficient cooking and storage layout
Wash Area for household utility work
Pooja Room dedicated to spiritual activities
This house plan layout maintains a perfect balance between comfort, utility, and openness.
Why Choose a 20X56 West Facing House Plan?
A 20X56 plot size offers excellent flexibility for modern homes:
Ideal for a spacious 1BHK ground floor house
Separate powder room enhances functionality
Lawn and open areas improve ventilation and aesthetics
Comfortable single-floor living for all age groups
Budget-friendly construction and easy maintenance
Scope for future vertical expansion
More 20X56 House Plan Options
At HouseGyan, you can explore a wide range of 20X56 house plan designs, including:
1BHK & 2BHK ground floor layouts
Vastu-compliant residential plans
Modern 2D floor plans & premium 3D elevations
Fully customized house plan solutions
Find the Right House Plan with HouseGyan
HouseGyan offers:
Professional 2D & 3D architectural drawings
Fast delivery in PDF & CAD formats
Vastu-aligned planning for Indian homes
Expert guidance for residential construction
Get Your Custom 20X56 House Plan Today!
Want to resize rooms, redesign the kitchen, or add an extra bedroom later?
HouseGyan provides custom house plan services tailored to your plot size, lifestyle, and budget.
Final Thoughts
This 20X56 West Facing 1BHK Ground Floor House Plan on a 1120 sq ft plot offers a comfortable, airy, and future-ready living solution. With lawn, parking, pooja room, powder room, and utility spaces, it is a smart and practical choice for modern homeowners.
Explore more 20X56 house plans and modern 1BHK designs only at HouseGyan!

The information contained on Housegyan.com is provided for general informational purposes only. While we strive to ensure that the content on our website is accurate and current, we make no warranties or representations of any kind, express or implied, about the completeness, accuracy, reliability, suitability, or availability with respect to the website or the information, products, services, or related graphics contained on the website for any purpose. Housegyan.com will not be liable for any loss or damage including, without limitation, indirect or consequential loss or damage, or any loss or damage whatsoever arising from loss of data or profits arising out of, or in connection with, the use of this website.
Third party logos and marks are registered trademarks of their respective owners. All rights reserved.













