20X50 SouthEast Facing 1BHK Ground Floor House Plan | 1000 Sqft Plot Floor Plan
Description
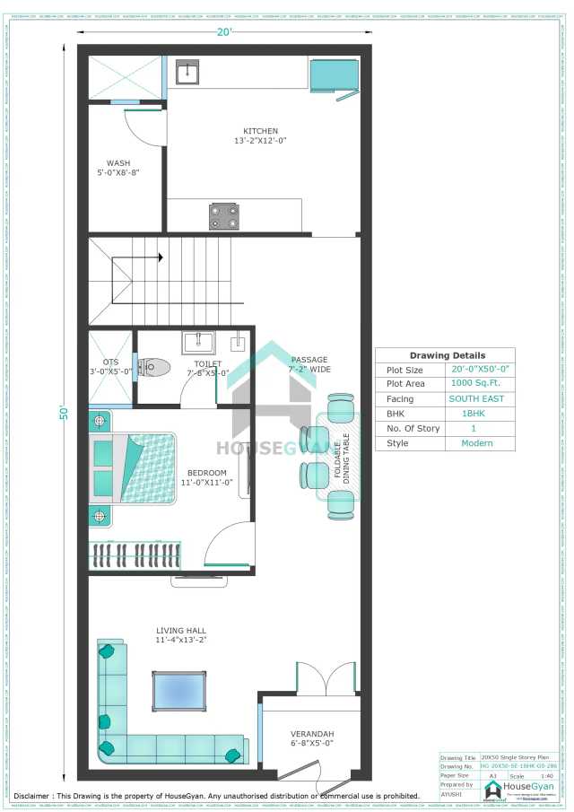
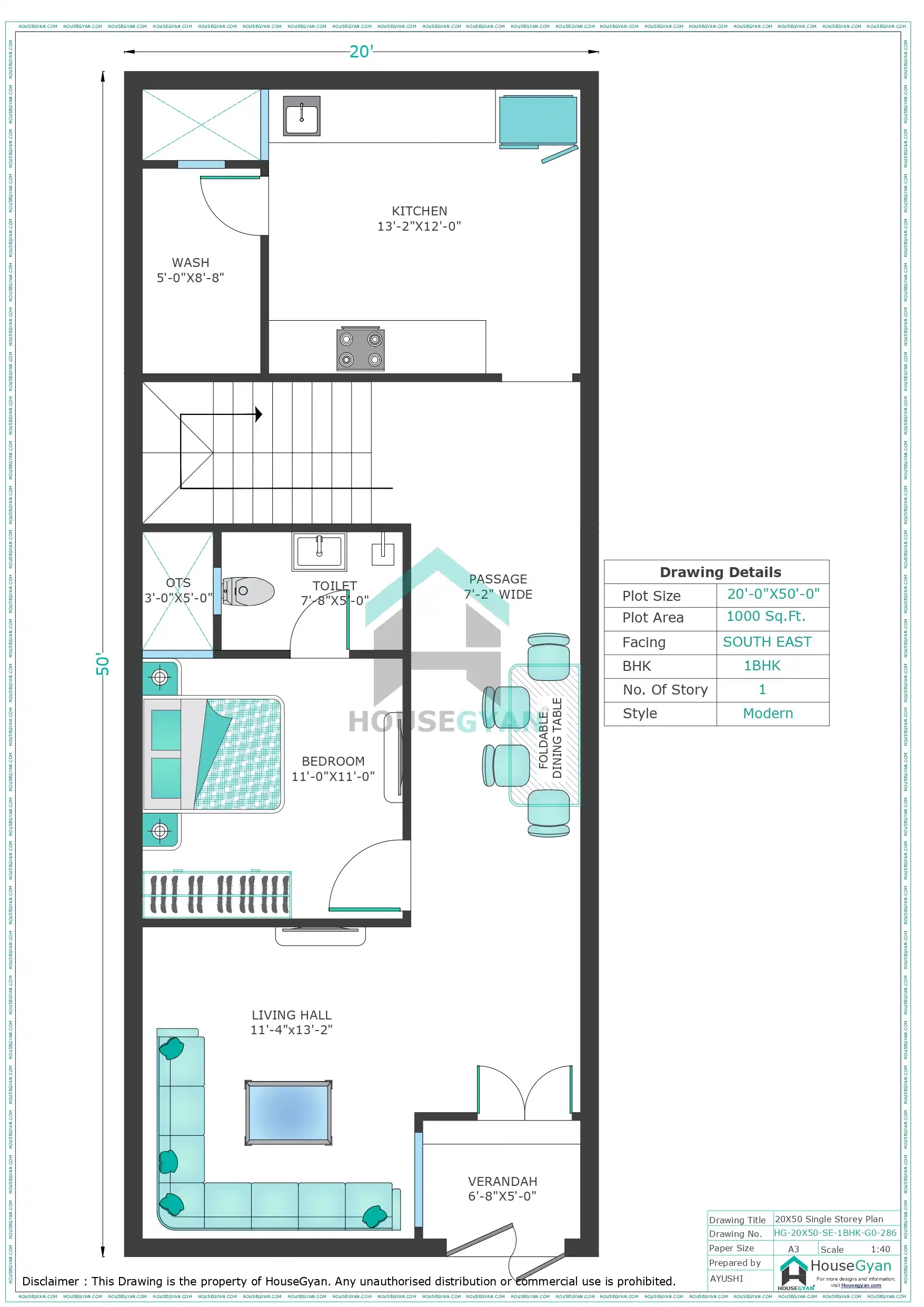
This 20x50 SouthEast Facing 1BHK Ground Floor House Plan is thoughtfully designed to utilize a 1000 sqft plot efficiently. The plan features 1 bedrooms, a spacious hall, and 1 bathrooms, making it an ideal choice for families looking for both comfort and functionality.
At HouseGyan Architects, we specialize in crafting customized 20x50 house plans that suit your lifestyle and preferences. Whether you prefer a traditional multi-storey home or a modern single-floor layout, our team can design the perfect 20x50 floor plan for your needs.
Whether you're looking to build your dream home with a Custom House Drawing or want a compact, modern layout, this 1000 sqft floor plan is an excellent choice for a southeast facing plot. To get an rough idea of the expenses, use our House Construction Price Calculator to estimate your costs effectively.
Ratings & Reviews
House Gyan all services
Loading...20X50 House Plan | 1000 Sqft Plot House Plan | 1BHK South East Facing Ground Floor Plan
This 20X50 South East Facing 1BHK Ground Floor House Plan is a smart and practical layout designed for small families, rental homes, or independent living. Built on a 1000 sq ft plot, this house plan ensures maximum space utilization with good ventilation and Vastu-friendly orientation.
20X50 House Plan – South East Facing Layout
The South East facing layout is planned to offer a balanced flow of natural light and air. The design includes:
1 Spacious Bedroom for comfortable living
Living Hall with proper ventilation
Dining Area connected to the living space
Functional Kitchen placed as per Vastu norms
Common Toilet with easy access
Wash Area for daily utility
This ground floor plan is ideal for urban plots where compact yet well-organized homes are required.
Why Choose a 20X50 House Plan?
Perfect for 1000 sq ft plots
Budget-friendly construction cost
Easy maintenance and efficient layout
Ideal for small families, senior citizens, or rental purposes
South East facing design supports positive energy and functionality
More 20X50 House Plan Options
At HouseGyan, you can explore multiple 20X50 house plans including:
1BHK, 2BHK, and 3BHK layouts
Ground floor and first floor plans
East, West, North, South, and Vastu-compliant designs
Modern, simple, and luxury custom house plan styles
Find More House Plans at HouseGyan
HouseGyan offers a wide collection of ready-made house plans, floor designs, and plot-size-based layouts to suit every requirement. Whether you want a compact home or a custom design, we’ve got you covered.
Get Your Custom 20X50 House Plan Today!
Want changes in room size, Vastu adjustments, or a personalized layout?
Get your custom 20X50 house plan designed by expert architects at HouseGyan according to your needs and budget.
Final Thoughts
This 20X50 South East Facing 1BHK Ground Floor House Plan is a perfect combination of simplicity, comfort, and smart planning. It’s an excellent choice for anyone looking to build a practical home on a 1000 sq ft plot with efficient space usage and modern design principles.

The information contained on Housegyan.com is provided for general informational purposes only. While we strive to ensure that the content on our website is accurate and current, we make no warranties or representations of any kind, express or implied, about the completeness, accuracy, reliability, suitability, or availability with respect to the website or the information, products, services, or related graphics contained on the website for any purpose. Housegyan.com will not be liable for any loss or damage including, without limitation, indirect or consequential loss or damage, or any loss or damage whatsoever arising from loss of data or profits arising out of, or in connection with, the use of this website.
Third party logos and marks are registered trademarks of their respective owners. All rights reserved.











