20X50 Northwest Facing 3BHK First Floor House Plan | 1000 Sqft Plot Floor Plan
Description
This 20x50 northwest-facing first floor plan offers a smart 3BHK layout within 1000 sqft.
It includes 3 bedrooms, 1 hall, and 3 bathrooms, designed to maximize every corner of your plot. At HouseGyan Architects, we help you design your dream home with a Custom House Drawing that perfectly matches your needs.
From modern layouts to traditional designs, we provide multiple options for 20x50 plots. To plan your expenses better, check out our House Construction Price Calculator—a simple tool to get a quick cost estimate before you begin.
Ratings & Reviews
House Gyan all services
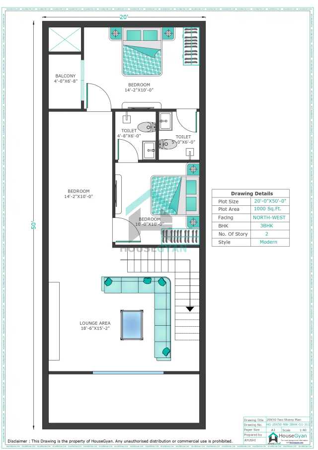
Loading...20X50 House Plan | 1000 Sqft Plot House Plan | 3BHK North West Facing First Floor Plan
This 20X50 North West Facing 3BHK First Floor House Plan is thoughtfully designed for a 1000 sq ft plot, offering comfortable interiors, open spaces, and a well-balanced layout. It is ideal for families seeking a modern first-floor home with outdoor elements and functional zoning.
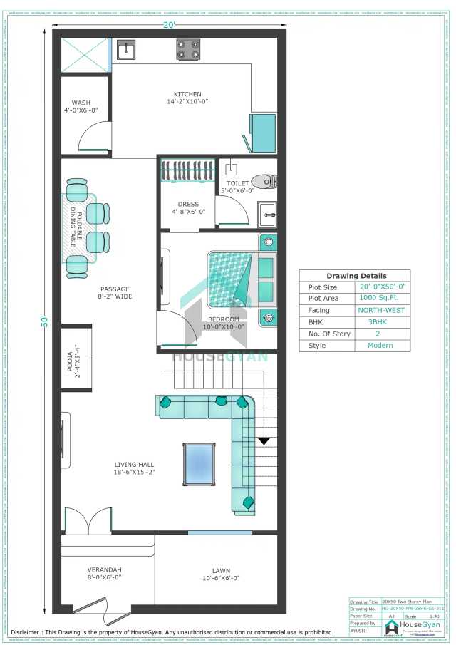
20X50 House Plan – North West Facing First Floor Layout
The North-West facing orientation provides good ventilation and a pleasant indoor environment throughout the day. The well-planned first-floor layout includes:
3 Bedrooms designed for comfort and privacy
Living Hall serving as the main family interaction space
Dining Area placed conveniently near the kitchen
Kitchen with efficient workspace and storage
Lounge Area for relaxation and informal gatherings
Pooja Room dedicated to spiritual activities
Balcony offering fresh air and outdoor views
Verandah adding charm and functional entry space
Lawn Area planned for greenery and visual openness
This house plan layout creates a perfect balance between indoor comfort and outdoor living.
Why Choose a 20X50 House Plan?
A 20X50 plot size is one of the most versatile residential dimensions, suitable for a variety of layouts:
Ideal for 3BHK first-floor homes
Efficient space utilization with premium features
Suitable for independent floors or duplex houses
Good scope for customization and future expansion
Budget-friendly construction and maintenance
More 20X50 House Plan Options
At HouseGyan, you can explore a wide range of 20X50 house plan designs, including:
Ground floor, first floor, and duplex layouts
Vastu-compliant house plans
Modern 2D floor plans & stylish 3D elevations
Fully customized architectural solutions
Find More House Plans at HouseGyan
HouseGyan offers:
Professional 2D & 3D house drawings
Quick delivery in PDF/CAD formats
Vastu-aligned architectural planning
Expert guidance for residential projects
Get Your Custom 20X50 House Plan Today!
Want to customize the layout or add more outdoor spaces?
HouseGyan provides custom house plans tailored to your plot size, lifestyle, and budget.
Final Thoughts
This 20X50 North West Facing 3BHK First Floor House Plan on a 1000 sq ft plot offers a comfortable and stylish living experience. With features like lawn, verandah, lounge, balcony, and pooja room, it is a great choice for modern families.
Explore more 20X50 house plans and premium 3BHK designs only at HouseGyan!

The information contained on Housegyan.com is provided for general informational purposes only. While we strive to ensure that the content on our website is accurate and current, we make no warranties or representations of any kind, express or implied, about the completeness, accuracy, reliability, suitability, or availability with respect to the website or the information, products, services, or related graphics contained on the website for any purpose. Housegyan.com will not be liable for any loss or damage including, without limitation, indirect or consequential loss or damage, or any loss or damage whatsoever arising from loss of data or profits arising out of, or in connection with, the use of this website.
Third party logos and marks are registered trademarks of their respective owners. All rights reserved.














