20X50 East Facing 2BHK First Floor House Plan | 1000 Sqft Plot Floor Plan
Description
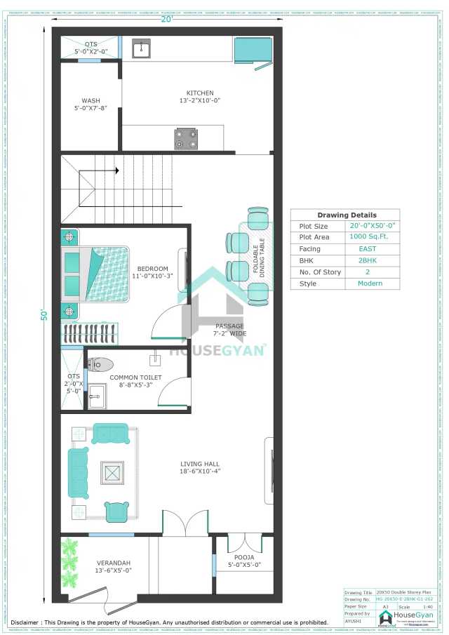
This 20x50 East Facing 2BHK First Floor House Plan is thoughtfully designed to utilize a 1000 sqft plot efficiently. The plan features 2 bedrooms, a spacious hall, and 3 bathrooms, making it an ideal choice for families looking for both comfort and functionality.
At HouseGyan Architects, we specialize in crafting customized 20x50 house plans that suit your lifestyle and preferences. Whether you prefer a traditional multi-storey home or a modern double-floor layout, our team can design the perfect 20x50 floor plan for your needs.
Whether you're looking to build your dream home with a Custom House Drawing or want a compact, modern layout, this 1000 sqft floor plan is an excellent choice for a east facing plot. To get an rough idea of the expenses, use our House Construction Price Calculator to estimate your costs effectively.
Ratings & Reviews
House Gyan all services
Loading...20X50 House Plan | 1000 Sqft Plot House Plan | 2BHK East Facing First Floor Plan
This 20X50 East Facing 2BHK First Floor House Plan is thoughtfully crafted for a 1000 sqft plot, offering a bright, compact, and highly functional layout. With 2 bedrooms, 3 toilets, a family lounge, gym, balcony, and a comfortable living area, this house plan is perfect for small families wanting efficient yet premium space utilization.
20X50 House Plan – East Facing First Floor Layout
The East-facing orientation channels abundant morning sunlight into the home, creating a healthy, vibrant living environment.
Plan Highlights
2 Bedrooms — cozy, well-planned, and naturally lit
3 Toilets — ideal combination of attached + common accessibility
Living Room — warm social hub for daily interactions
Kitchen — efficient working space with smooth movement
Family Lounge — an intimate corner for relaxation or entertainment
Gym Area — a dedicated space for fitness and well-being
Balcony — airy outdoor spot for tea breaks, plants, or seating
The arrangement ensures comfort, privacy, and fluid circulation throughout the first floor.
Why Choose a 20X50 House Plan?
A 20X50 plot is perfect for families who prefer a balance between built-up area and open space:
Efficiently supports 1BHK to 3BHK layouts
Ideal for compact Vastu-friendly planning
Suitable for single-floor or multi-floor homes
Easy to maintain and budget-friendly
Can include balconies, gyms, studies, or utility extensions
More 20X50 House Plan Options
You can explore:
20X50 Ground Floor House Plans
20X50 2BHK & 3BHK Designs
20X50 Duplex Concepts
Modern Elevation Plans for 20X50
Vastu-Aligned 20X50 House Layouts
Tell me which one you want—I’ll prepare it in the same format.
Find More House Plans at HouseGyan
HouseGyan provides:
Customized floor plans
2D/3D elevation drawings
Vastu consultation
PDF & CAD files
End-to-end architectural support
Get Your Custom 20X50 House Plan Today!
Want a personalized layout for your 20X50 plot with:
Extra rooms
Work-from-home spaces
Modern amenities
Vastu guidance
Interior planning
Share your requirements, and a custom house plan can be crafted for you.
Final Thoughts
This 20X50 East Facing 2BHK First Floor House Plan blends efficient planning with modern comforts like a gym, balcony, and family lounge. It is a smart choice for families seeking a well-lit, airy, and functional home on a 1000 sqft plot.

The information contained on Housegyan.com is provided for general informational purposes only. While we strive to ensure that the content on our website is accurate and current, we make no warranties or representations of any kind, express or implied, about the completeness, accuracy, reliability, suitability, or availability with respect to the website or the information, products, services, or related graphics contained on the website for any purpose. Housegyan.com will not be liable for any loss or damage including, without limitation, indirect or consequential loss or damage, or any loss or damage whatsoever arising from loss of data or profits arising out of, or in connection with, the use of this website.
Third party logos and marks are registered trademarks of their respective owners. All rights reserved.












