20X40 East Facing 1BHK Ground Floor House Plan | 800 Sqft Plot Floor Plan
Description
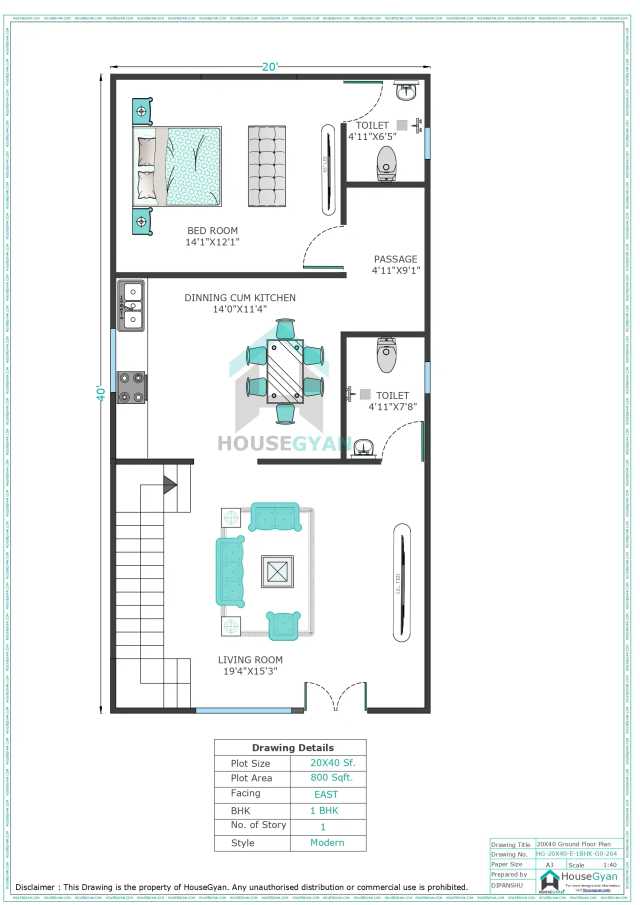
This 20X40 east-facing 1BHK ground floor house plan is designed to maximize space efficiently within a 800 sqft plot. This house plan consists of 1 bedrooms, 1 Hall and 2 bathrooms within 800 square feet. If you're looking for a 20X40 house plan, you've come to the right place. Here at HouseGyan architects, we specialize in designing and creating floor plans for all types of 20X40 plot size houses. Whether you're looking for a traditional multi stories home or a more modern ranch-style home, we can help you create the perfect 20*40 floor plan for your needs.
Whether you're looking to build your dream home with a Custom House Drawing or want a compact, modern layout, this 800 sqft floor plan is an excellent choice for a west-facing plot. To get an rough idea of the expenses, use our House Construction Price Calculator to estimate your costs effectively.
Ratings & Reviews
House Gyan all services
Loading...20X40 House Plan | 800 Sqft Plot Floor Plan | East Facing 1BHK Ground Floor House Plan
20X40 House Plan – East Facing Ground Floor Layout
This 20X40 East Facing 1BHK Ground Floor House Plan is designed for an 800 sqft plot, offering a compact yet comfortable space layout ideal for small families, couples, and rental units.
The house plan includes 1 bedroom, a functional kitchen, 2 toilets, a spacious living room, and a conveniently placed staircase for easy access to upper floors.
The east-facing entry ensures fresh morning light, creating a bright, positive, and vastu-friendly home environment.
Why Choose a 20X40 House Plan?
A 20X40 plot offers practical benefits for modern residential living:
Perfect for compact 1BHK layouts
Efficient space utilization without compromising comfort
Ideal for first-time homeowners or rental construction
Vastu-friendly orientation with an east-facing entrance
Easy to maintain and budget-friendly for construction
Allows future expansion to first or second floors
More 20X40 House Plan Options
At HouseGyan, you can explore multiple layout variations such as:
1BHK / 2BHK compact ground floor plans
East, west, north & south-facing plans
Ground + First floor duplex concepts
Plans with parking, porch, or small garden options
Modern & traditional layout choices
Each plan is crafted to offer optimal convenience within a small plot.
Find More House Plans at HouseGyan
HouseGyan provides:
Ready-to-use 2D floor plans
Customizable house map solutions
3D elevation designs
Vastu-based planning
Construction & material calculators
Your home design becomes simple, affordable, and completely personalized.
Get Your Custom 20X40 House Plan Today!
If you want a personalized 20X40 East Facing 1BHK layout, HouseGyan provides:
Custom house plan development
CAD & PDF deliverables
Vastu-aligned planning
Quick revisions
Expert architectural guidance
Just share your room requirements, and we’ll design it perfectly for your lifestyle.
Final Thoughts
This 20X40 East Facing 1BHK Ground Floor House Plan provides the ideal mix of simplicity, functionality, and smart planning—perfect for an 800 sqft plot. With a cozy living room, essential utilities, and scope for future floors, it’s a practical home design for compact urban plots.

The information contained on Housegyan.com is provided for general informational purposes only. While we strive to ensure that the content on our website is accurate and current, we make no warranties or representations of any kind, express or implied, about the completeness, accuracy, reliability, suitability, or availability with respect to the website or the information, products, services, or related graphics contained on the website for any purpose. Housegyan.com will not be liable for any loss or damage including, without limitation, indirect or consequential loss or damage, or any loss or damage whatsoever arising from loss of data or profits arising out of, or in connection with, the use of this website.
Third party logos and marks are registered trademarks of their respective owners. All rights reserved.













