15X60 East Facing 1BHK Ground Floor House Plan | 900 Sqft Plot Floor Plan
Description
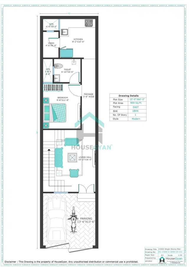
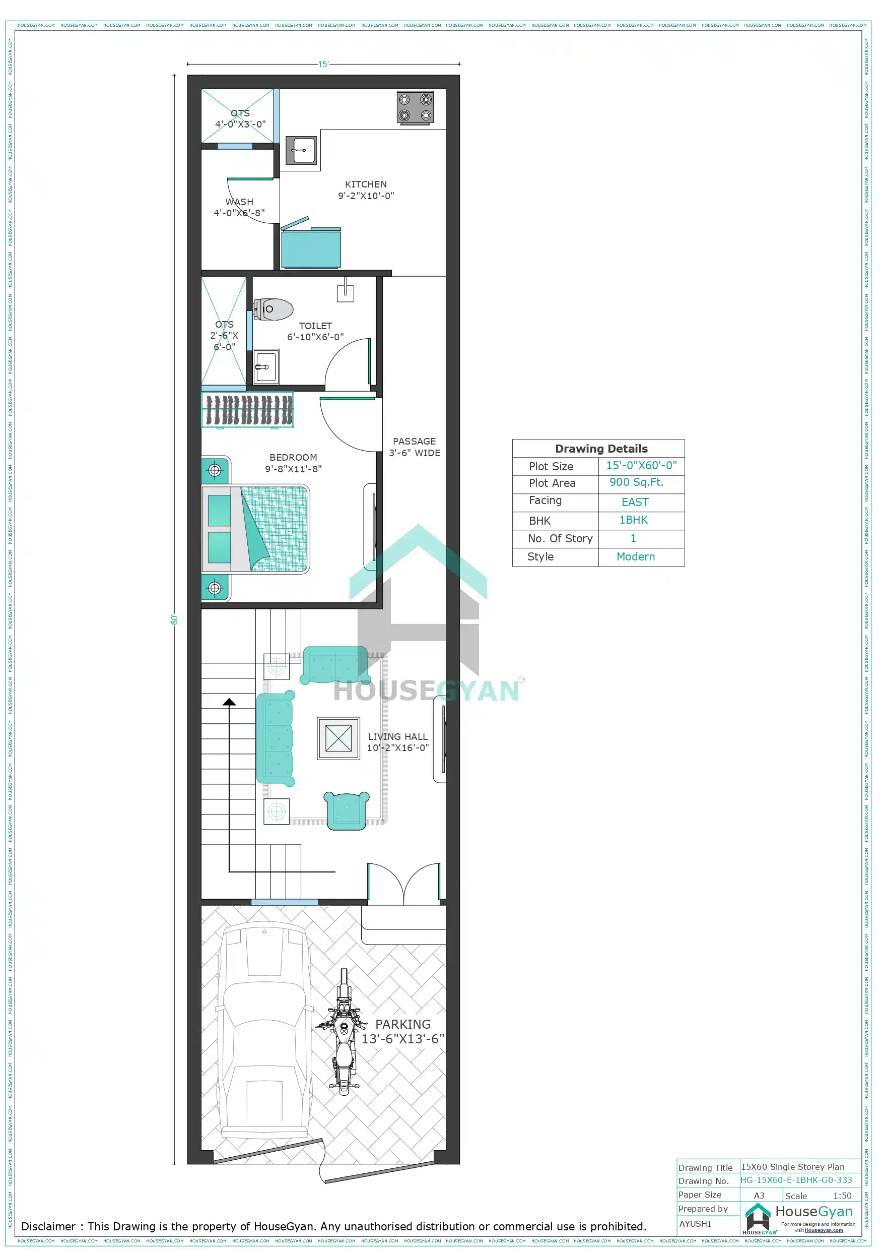
This 15X60 East-facing 1BHK ground floor house plan is designed to maximize space efficiently within a 900 sqft plot. This house plan consists of 1 bedrooms, 1 Hall and 1 bathrooms within 900 square feet. If you're looking for a 15X60 house plan, you've come to the right place. Here at HouseGyan architects, we specialize in designing and creating floor plans for all types of 15X60 plot size houses. Whether you're looking for a traditional single-story home or a more modern ranch-style home, we can help you create the perfect 15*60 floor plan for your needs.
Whether you're looking to build your dream home with a Custom House Drawing or want a compact, modern layout, this 900 sqft floor plan is an excellent choice for a East-facing plot. To get an rough idea of the expenses, use our House Construction Price Calculator to estimate your costs effectively.
Ratings & Reviews
House Gyan all services
Loading...HouseGyan is your trusted platform for everything related to home design, construction, and planning. We offer a complete range of services to help you build your dream home with ease and confidence.
Our Services
- Price Calculators: Plan your budget with our tools like Home Loan EMI Calculator, Tile Price Calculator, Brick Cost Calculator, and more.
- House Drawings & Plans: Explore ready-made house plans or get custom house drawings designed to fit your needs perfectly.
- Elevation Designs: Choose from modern elevation designs or request a custom elevation design for a unique look.
- Accurate Estimates: Get clear and accurate construction cost estimates to plan better.
- Shubh Muhurat & Vastu Tips: Follow our Shubh Muhurat and Vastu guidelines to bring positive energy and harmony to your home.
- DIY Home Repair Guides: Learn easy DIY tips to fix and maintain your home efficiently.
- Interior Design Ideas: Discover creative ideas for living rooms, bedrooms, kitchens, balconies, and more.
Why Choose HouseGyan?
- All-in-One Platform: From house plans to price calculators, we cover it all.
- Custom Solutions: Get personalized designs and estimates for your home.
- Expert Guidance: Access professional tips on Vastu, Shubh Muhurat, and construction materials.
- User-Friendly: Our tools and content are designed to simplify home building for everyone.

The information contained on Housegyan.com is provided for general informational purposes only. While we strive to ensure that the content on our website is accurate and current, we make no warranties or representations of any kind, express or implied, about the completeness, accuracy, reliability, suitability, or availability with respect to the website or the information, products, services, or related graphics contained on the website for any purpose. Housegyan.com will not be liable for any loss or damage including, without limitation, indirect or consequential loss or damage, or any loss or damage whatsoever arising from loss of data or profits arising out of, or in connection with, the use of this website.
Third party logos and marks are registered trademarks of their respective owners. All rights reserved.











