15X50 West Facing 4BHK First Floor House Plan | 750 Sqft Plot Floor Plan
Description
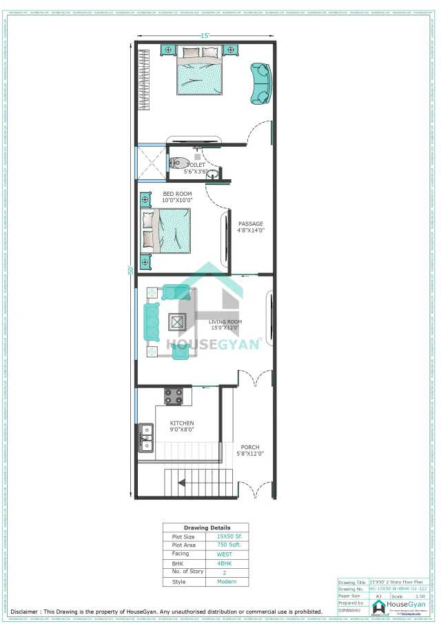
This 15X50 west-facing 4BHK first floor house plan is designed to maximize space efficiently within a 750 sqft plot. This house plan consists of 4 bedrooms, 1 Hall and 4 bathrooms within 750 square feet. If you're looking for a 15X50 house plan, you've come to the right place. Here at HouseGyan architects, we specialize in designing and creating floor plans for all types of 15X50 plot size houses. Whether you're looking for a traditional multi stories home or a more modern ranch-style home, we can help you create the perfect 15*50 floor plan for your needs.
Whether you're looking to build your dream home with a Custom House Drawing or want a compact, modern layout, this 750 sqft floor plan is an excellent choice for a west-facing plot. To get an rough idea of the expenses, use our House Construction Price Calculator to estimate your costs effectively.
Ratings & Reviews
House Gyan all services
Loading...15X50 West Facing 4BHK First Floor House Plan | 750 Sqft Plot Floor Plan
This 15X50 West Facing 4BHK First Floor House Plan is intelligently designed for a 750 sq ft plot, making excellent use of vertical space on a narrow frontage. The layout is ideal for joint families or rental purposes, offering multiple bedrooms with a practical first-floor living arrangement.
15X50 House Plan – West Facing First Floor Layout
The west-facing orientation is planned to ensure proper airflow and efficient internal movement. The first-floor layout includes:
4 Bedrooms designed to accommodate large or joint families
2 Toilets (common + shared) for daily convenience
Living Area serving as a comfortable family sitting space
Kitchen with functional cooking and storage layout
Passage Area allowing smooth circulation between rooms
2 Change Areas attached to bedrooms for added comfort
Internal Staircase providing access from the ground floor
Porch Area planned on the ground level
Open Terrace suitable for relaxation, utility use, or future development
This house plan layout balances space efficiency with everyday usability.
Why Choose a 15X50 West Facing House Plan?
A 15X50 plot size is highly suitable for urban residential areas:
Ideal for compact 4BHK first-floor homes
Efficient planning on narrow plots
Suitable for rental floors or multi-family living
Cost-effective construction and easy maintenance
Scope for terrace use and future expansion
More 15X50 House Plan Options
At HouseGyan, you can explore a variety of 15X50 house plan designs, including:
Ground floor & first floor layouts
Vastu-compliant residential plans
Modern 2D floor plans & premium 3D elevations
Fully customized architectural solutions
Find the Right House Plan with HouseGyan
HouseGyan offers:
Professional 2D & 3D house drawings
Fast delivery in PDF & CAD formats
Vastu-aligned planning for Indian homes
Expert support for residential construction
Get Your Custom 15X50 House Plan Today!
Want to adjust bedroom sizes, modify toilets, or redesign the terrace?
HouseGyan provides custom house plan services based on your plot size, family needs, and budget.
Final Thoughts
This 15X50 West Facing 4BHK First Floor House Plan on a 750 sq ft plot is a smart solution for large families on compact plots. With four bedrooms, change areas, living space, and an open terrace, it delivers functionality without compromising comfort.
Explore more 15X50 house plans and compact 4BHK designs only at HouseGyan!

The information contained on Housegyan.com is provided for general informational purposes only. While we strive to ensure that the content on our website is accurate and current, we make no warranties or representations of any kind, express or implied, about the completeness, accuracy, reliability, suitability, or availability with respect to the website or the information, products, services, or related graphics contained on the website for any purpose. Housegyan.com will not be liable for any loss or damage including, without limitation, indirect or consequential loss or damage, or any loss or damage whatsoever arising from loss of data or profits arising out of, or in connection with, the use of this website.
Third party logos and marks are registered trademarks of their respective owners. All rights reserved.














