15X50 East Facing 3BHK First Floor House Plan | 750 Sqft Plot Floor Plan
Description
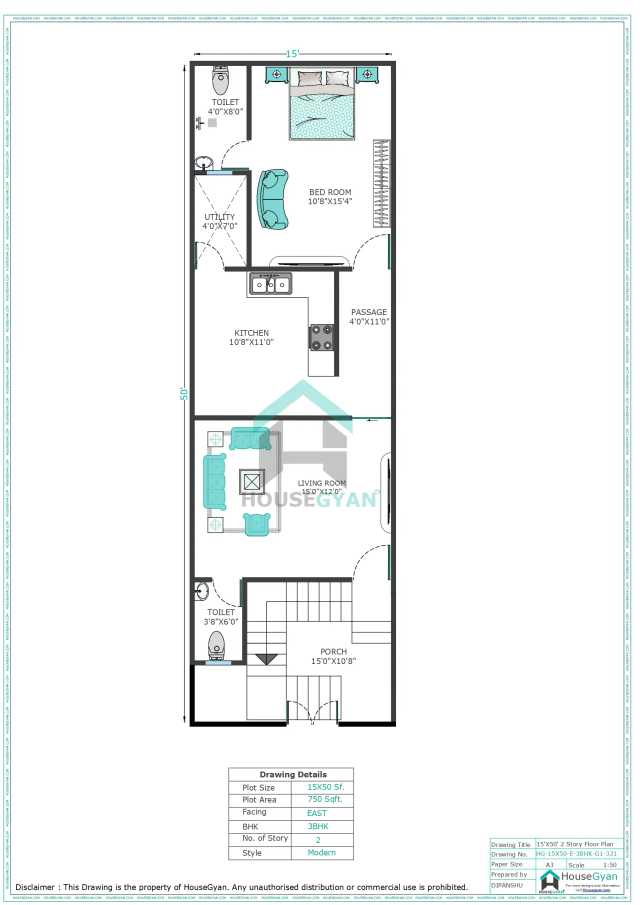
This 15X50 east-facing 3BHK first floor house plan is designed to maximize space efficiently within a 750 sqft plot. This house plan consists of 3 bedrooms, 1 Hall and 4 bathrooms within 750 square feet. If you're looking for a 15X50 house plan, you've come to the right place. Here at HouseGyan architects, we specialize in designing and creating floor plans for all types of 15X50 plot size houses. Whether you're looking for a traditional multi stories home or a more modern ranch-style home, we can help you create the perfect 15*50 floor plan for your needs.
Whether you're looking to build your dream home with a Custom House Drawing or want a compact, modern layout, this 750 sqft floor plan is an excellent choice for a east-facing plot. To get an rough idea of the expenses, use our House Construction Price Calculator to estimate your costs effectively.
Ratings & Reviews
House Gyan all services
Loading...15X50 House Plan | 750 Sqft Plot Floor Plan | 3BHK East Facing First Floor House Plan
This 15X50 East Facing 3BHK First Floor House Plan is smartly designed for a 750 sq ft plot, offering a compact yet well-organized first-floor layout. With efficient space planning, utility areas, and a private terrace, this plan is ideal for families seeking modern living on narrow plots.
15X50 House Plan – East Facing First Floor Layout
The east-facing orientation supports good daylight, ventilation, and vastu-aligned living. The first-floor layout includes:
3 Bedrooms planned for privacy and comfort
3 Toilets (attached + common) for daily convenience
Living Area as a comfortable family sitting space
Kitchen with efficient cooking and storage layout
Passage Area ensuring smooth internal movement
Utility Area for washing and daily chores
Lobby Space adding openness and circulation
Change Area attached to bedrooms for added comfort
Internal Staircase connecting ground and first floors
Porch Area planned on the ground level
Terrace for open-air relaxation and future use
This house plan layout maximizes usable space while maintaining privacy and functionality.
Why Choose a 15X50 East Facing House Plan?
A 15X50 plot size is perfect for urban areas with limited frontage:
Ideal for compact 3BHK first-floor homes
Vastu-friendly east-facing orientation
Suitable for rental floors or independent living
Efficient use of space on narrow plots
Lower construction and maintenance cost
Scope for future expansion
More 15X50 House Plan Options
At HouseGyan, you can explore a wide range of 15X50 house plan designs, including:
Ground floor & first floor layouts
Vastu-compliant house plans
Modern 2D floor plans & premium 3D elevations
Fully customized architectural solutions
Find the Right House Plan with HouseGyan
HouseGyan offers:
Professional 2D & 3D architectural drawings
Quick delivery in PDF & CAD formats
Vastu-based planning for Indian homes
Expert guidance for residential construction
Get Your Custom 15X50 House Plan Today!
Want to modify room sizes, adjust utility space, or redesign the terrace?
HouseGyan provides custom house plan services tailored to your plot size, family needs, and budget.
Final Thoughts
This 15X50 East Facing 3BHK First Floor House Plan on a 750 sq ft plot offers a perfect balance of privacy, functionality, and modern design. With three bedrooms, attached toilets, utility, lobby, and terrace, it is an excellent choice for compact yet comfortable urban living.
Explore more 15X50 house plans and smart 3BHK designs only at HouseGyan!

The information contained on Housegyan.com is provided for general informational purposes only. While we strive to ensure that the content on our website is accurate and current, we make no warranties or representations of any kind, express or implied, about the completeness, accuracy, reliability, suitability, or availability with respect to the website or the information, products, services, or related graphics contained on the website for any purpose. Housegyan.com will not be liable for any loss or damage including, without limitation, indirect or consequential loss or damage, or any loss or damage whatsoever arising from loss of data or profits arising out of, or in connection with, the use of this website.
Third party logos and marks are registered trademarks of their respective owners. All rights reserved.














